Well-presented two-bedroom starter terrace with recent roof and low-maintenance garden..
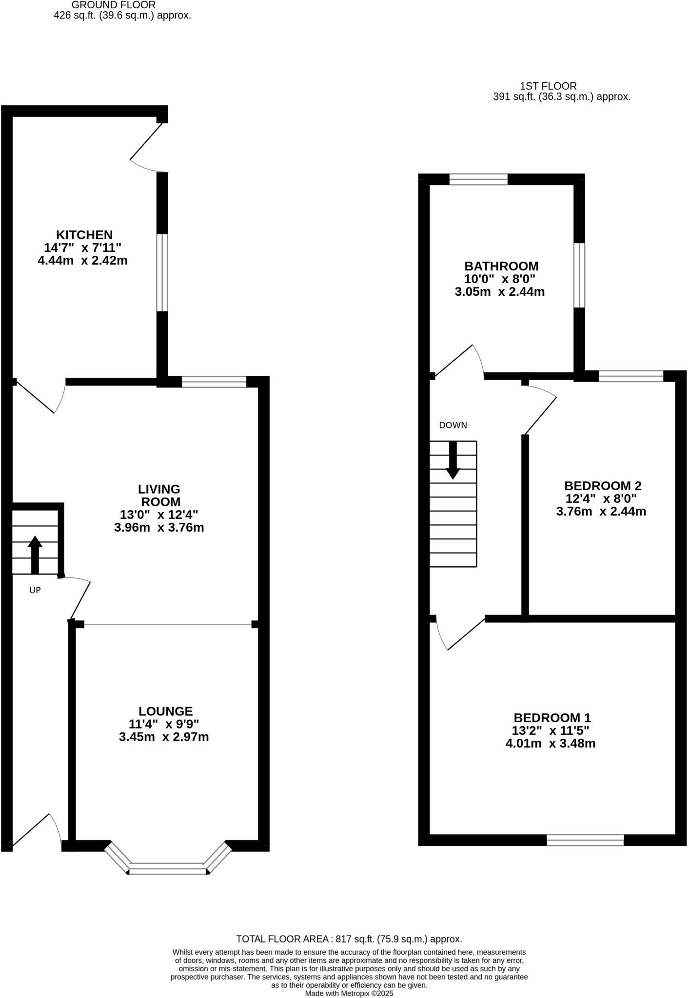
Freehold mid-terrace, circa 1900–1929, 817 sq ft
Recently re-roofed in 2024, damp-proof course applied where needed
uPVC double glazing and gas combi boiler, ready to heat
Two bedrooms, larger-than-average first-floor bathroom
Small rear garden, low-maintenance gravel and paving
Solid brick walls; no built-in cavity insulation (assumed)
Located in a very deprived area with higher local crime levels
Council Tax Band A — low local tax costs
A traditional two-bedroom mid-terrace on Daubney Street, offered freehold and recently re-roofed (2024). The house is presented with uPVC double glazing and gas central heating via a modern combi boiler, giving immediate, practical comfort for day-to-day living. Rooms are a sensible size for the build (about 817 sq ft total) and the layout includes a front lounge, linked living room and an extended-size first-floor bathroom.
This home suits first-time buyers or buyers seeking an affordable starter property close to local schools, shops and bus links. The rear garden is low-maintenance—gravel and paving—so upkeep is simple. There are useful practical benefits already in place, including a guaranteed damp-proof course where needed and recently refreshed roof covering.
Important considerations: the terrace was built circa 1900–1929 with solid brick walls and no built-in wall insulation (assumed), so heating costs could be higher than modern walls unless insulated. The area is in a very deprived ward with higher local crime levels; buyers should weigh neighbourhood factors and insurance costs. The plot is small and front and rear outside spaces are modest. Council Tax Band A means running costs for local tax are low.
Overall this is a sensible, well-presented starter home with character features such as a bay-windowed lounge and cast-iron fireplace (display only). It offers immediate occupation and short-term stability, with simple potential improvements (internal insulation, cosmetic updates) to improve comfort and long-term value.
3 bedroom terraced house for sale in Daubney Street, Cleethorpes, DN35 — £105,000 • 3 bed • 1 bath • 1061 ft²
2 bedroom terraced house for sale in Freeston Street, Cleethorpes, DN35 — £97,500 • 2 bed • 1 bath • 915 ft²
2 bedroom terraced house for sale in Ludford Street, Grimsby, DN32 — £85,000 • 2 bed • 1 bath • 882 ft²
2 bedroom terraced house for sale in Columbia Road, Grimsby, DN32 — £90,000 • 2 bed • 1 bath • 792 ft²
2 bedroom terraced house for sale in Lovett Street, Cleethorpes, DN35 — £100,000 • 2 bed • 1 bath • 937 ft²
2 bedroom terraced house for sale in Arthur Street, Grimsby, DN31 — £59,000 • 2 bed • 1 bath • 633 ft²






























































































































