SE3 7TW - 1 bedroom flat for sale in Wycombe Court, SE3

View on Property Piper

1 bedroom flat for sale in Wycombe Court, SE3

Summary - FLAT 14, WYCOMBE COURT, 14, ST JOHNS PARK SE3 7TW

1 bed 1 bath Flat

Move-in ready one-bedroom flat with garage near Blackheath and Greenwich Park.
Freshly refurbished one-bedroom flat, new boiler, rewiring and plumbing
Large floor-to-ceiling windows; excellent natural light throughout
Herringbone wood flooring in hall, reception and bedroom
Includes single garage and access to communal garden
Share of freehold, 101 years remaining, no ground rent
Service charge £1,298 pa; EPC rating C
Block exterior dated 1970s — may need future modernisation
Average broadband speeds and local crime rated average
A bright, freshly refurbished one-bedroom flat on the first floor of a well-maintained 1970s purpose-built block. The apartment has large floor-to-ceiling windows in the reception and bedroom, herringbone wood flooring, a newly fitted kitchen and bathroom, and a new gas-fired combination boiler — ready to move into with minimal immediate work required.

Set on a quiet, tree-lined stretch of St Johns Park, the location is a major draw: a short walk to Blackheath and Westcombe Park stations, local shops at Blackheath Standard, and the south-east entrance to Greenwich Park. The flat includes a single garage and access to communal gardens, offering rare outdoor/parking benefits for a one-bedroom property in this area.

Practical ownership details are straightforward: share of freehold, 101 years remaining on the lease, no ground rent and a service charge of £1,298 per year. EPC rating C and mains gas central heating help keep running costs reasonable; council tax band C is described as affordable.

Considerations: the block’s exterior shows its mid-20th-century origins and could benefit from external modernisation over time. Broadband speeds are average and crime is recorded as average for the area. The property is best suited to a single buyer or couple seeking a low-maintenance central home or a buy-to-let investor targeting strong rental demand near transport and parks.

Property Details

Brochure Descriptions

Image Descriptions

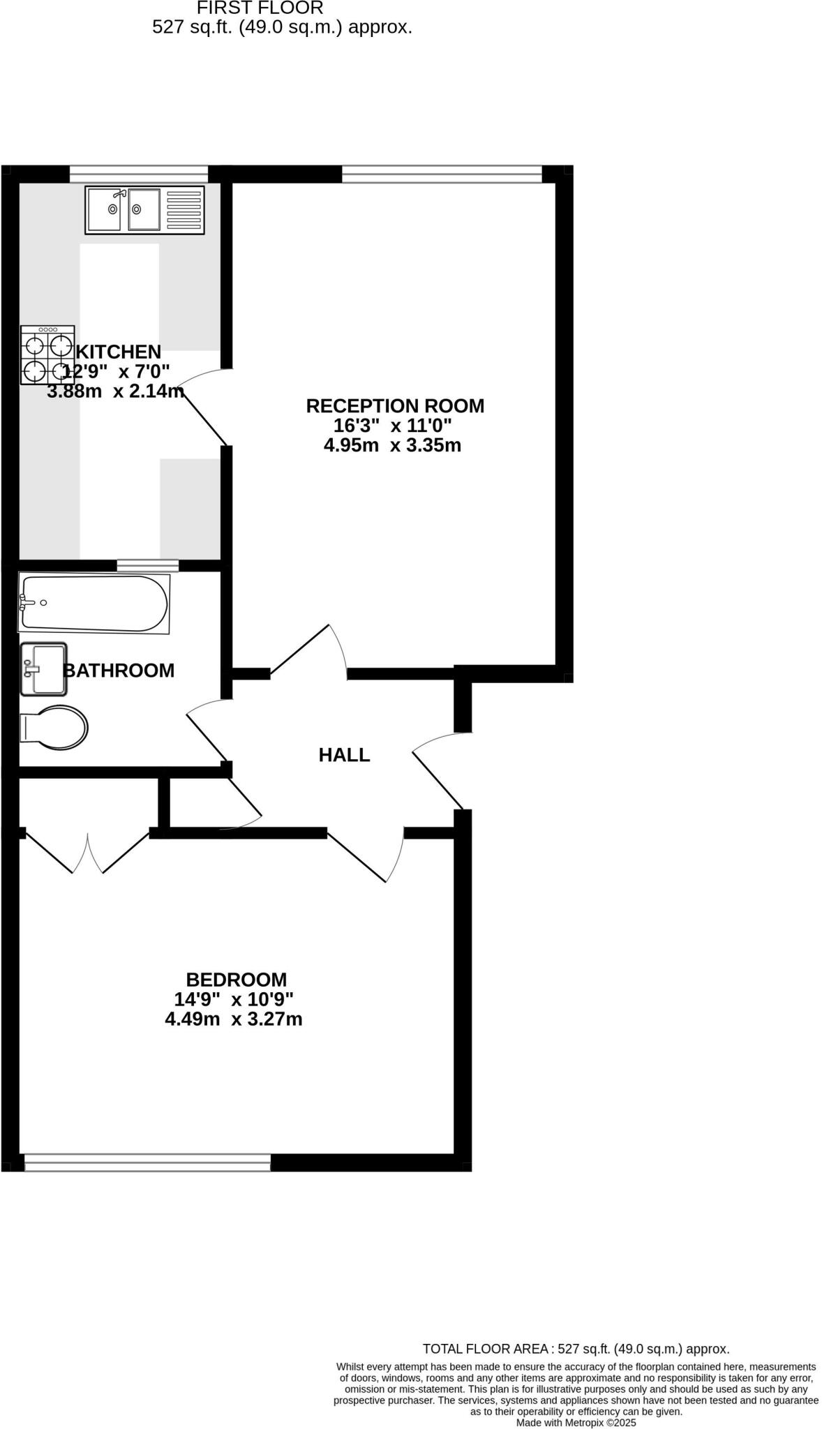
Floorplan Description

Rooms

Textual Property Features

Target Audience

AI Tags

Detected Visual Features

EPC Details

Nearby Schools

Nearest Bars And Restaurants

,,,,}

Nearest General Shops

,,}

Nearest Grocery shops

,,}

Nearest Supermarkets

,,}

Nearest Religious buildings

,,}

Nearest Medical buildings

,,,}

Nearest Airports

,,}

Nearest Leisure Facilities

,,,,}

Nearest Tourist attractions

,,}

Nearest Train stations

,,,,}

Nearest Bus stations and stops

,,,,}

Nearest Hotels

,,}

Tags

Local Market Stats

AirBnB Data

Similar Properties

Meta

High Res Images

Compatible Images

Low res Images

Thumbnails

Raw Images

High Res Floorplan Images

Compatible Floorplan Images

Low res Floorplan Images

FloorplanImages Thumbnail

Raw Floorplan Images