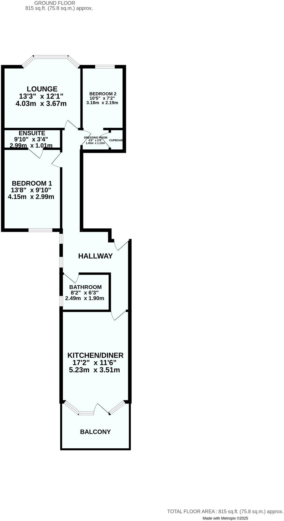
Two double bedrooms and two bathrooms, circa 815 sq ft
A well-proportioned two-bedroom Victorian upper-floor apartment close to Plymouth city amenities. Bay windows and high ceilings retain period character while a new boiler and recent uPVC double glazing improve energy performance. The flat extends to about 815 sq ft including two bathrooms and a balcony, offering comfortable living or rental potential in a lively student and professional neighbourhood.
Practical benefits include allocated off-street parking for two cars, fast broadband and excellent mobile signal. The property is chain-free and sold with a long lease (circa 92 years) and a modest ground rent of £50. Council tax is described as very cheap, helping running costs for owner-occupiers or landlords.
Buyers should note the tenure is leasehold (long lease remaining) despite some marketing wording; the building is a late-Victorian granite terrace likely without cavity wall insulation. The apartment is a solid, average-sized home that will suit first-time buyers, commuters or investors prepared to accept a period property in a very deprived but well-connected urban area.
With neutral décor and a functional modern kitchen and bathroom, the flat is ready to occupy but offers scope to add value through cosmetic updating and insulation improvements. For those seeking a central, affordable city-base with parking and period charm, this apartment is a practical and economical choice.
2 bedroom flat for sale in Percy Terrace, Plymouth, Devon, PL4 — £110,000 • 2 bed • 1 bath • 593 ft²
2 bedroom flat for sale in Baring Street, Plymouth Charming period ground floor flat, PL4 — £140,000 • 2 bed • 1 bath • 635 ft²
2 bedroom apartment for sale in Connaught Avenue, Plymouth, PL4 — £150,000 • 2 bed • 1 bath • 1066 ft²
2 bedroom flat for sale in Connaught Avenue, PLYMOUTH, PL4 — £140,000 • 2 bed • 1 bath • 700 ft²
2 bedroom flat for sale in Embankment Road, Plymouth. Stylish 2-Bedroom Top Floor Flat in Central Plymouth walking distance to City Center., PL4 — £90,000 • 2 bed • 1 bath • 563 ft²
2 bedroom flat for sale in Ford Park Road, Plymouth, Devon, PL4 — £125,000 • 2 bed • 1 bath • 640 ft²


























































