W6 9AG - 2 bed ground floor twobedroom in Great West Road, W6 9AG

View on Property Piper

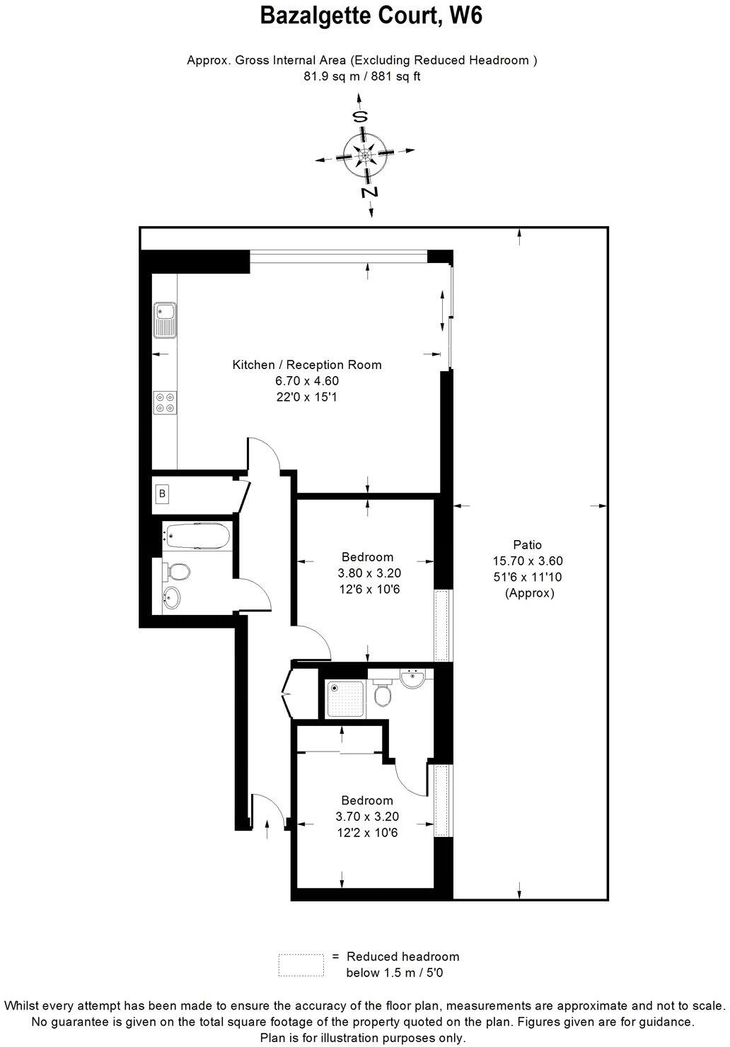
2 bedroom flat for sale in Bazalgette Court, Great West Road, W6

Summary - BAZALGETTE COURT FLAT 9 GREAT WEST ROAD LONDON W6 9AG

2 bed 2 bath Flat

Large private terrace, gated parking and modern fixtures near excellent transport links.
West-facing 51'6" x 11'10" private decked terrace
Allocated gated parking and concierge on site
Spacious open-plan kitchen/reception, 881 sq ft total
Two double bedrooms and two bathrooms, one en-suite
Very long lease: 978 years remaining
Electric room heating — potentially higher running costs
Ground rent £500; council tax described as expensive
Located in area with very high crime statistics
This bright ground-floor apartment occupies 881 sq ft within a period conversion that combines character brickwork with contemporary fittings. The open-plan kitchen/reception opens onto a substantial west-facing decked terrace, creating genuine indoor–outdoor living and rare outdoor space for central London. Two double bedrooms and two bathrooms (one en-suite) suit sharers, couples or a small family.

Practical benefits include allocated gated parking, an extremely long lease (978 years) and double glazing. The flat is largely well maintained with modern finishes and wood flooring throughout, making it move-in ready for buyers seeking convenience and city living near Ravenscourt Park and Hammersmith transport links.

Buyers should note a few material factors: heating is electric via room heaters, which can be more expensive than gas systems; council tax is described as expensive; and ground rent is £500 (described as average). The property is leasehold and situated in an area with very high crime statistics and signs of local deprivation — factors to consider for lifestyle, insurance and lettability.

Overall this apartment offers a rare combination of substantial private outdoor space, secure parking and a long lease in a well-appointed period-to-modern conversion. It will appeal to first-time buyers and investors prioritising space, transport access and strong natural light, but those sensitive to running costs or concerned about local crime should factor these into their decision.

Property Details

Brochure Descriptions

Image Descriptions

Floorplan Description

Rooms

Textual Property Features

Target Audience

AI Tags

Detected Visual Features

EPC Details

Nearby Schools

Nearest Bars And Restaurants

,,,,}

Nearest General Shops

,,}

Nearest Grocery shops

,,}

Nearest Supermarkets

,,}

Nearest Religious buildings

,,}

Nearest Medical buildings

,,,}

Nearest Airports

,,}

Nearest Leisure Facilities

,,,,}

Nearest Tourist attractions

,,}

Nearest Train stations

,,,,}

Nearest Bus stations and stops

,,,,}

Nearest Hotels

,,}

Tags

Local Market Stats

AirBnB Data

Similar Properties

Meta

High Res Images

Compatible Images

Low res Images

Thumbnails

Raw Images

High Res Floorplan Images

Compatible Floorplan Images

Low res Floorplan Images

FloorplanImages Thumbnail

Raw Floorplan Images