Spacious family living with large garden and sweeping city views.
Panoramic London views from loft-conversion master bedroom
Park-side position overlooking Grangewood Park
Generous private garden with raised decking for entertaining
Expansive conservatory adds flexible living space
Period Tudor Revival features — leaded windows, exposed beams
Solid brick walls assumed without added insulation (may need upgrading)
Double glazing present; installation date unknown
Bathroom count conflicted in information — confirm before purchase
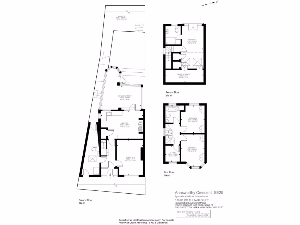
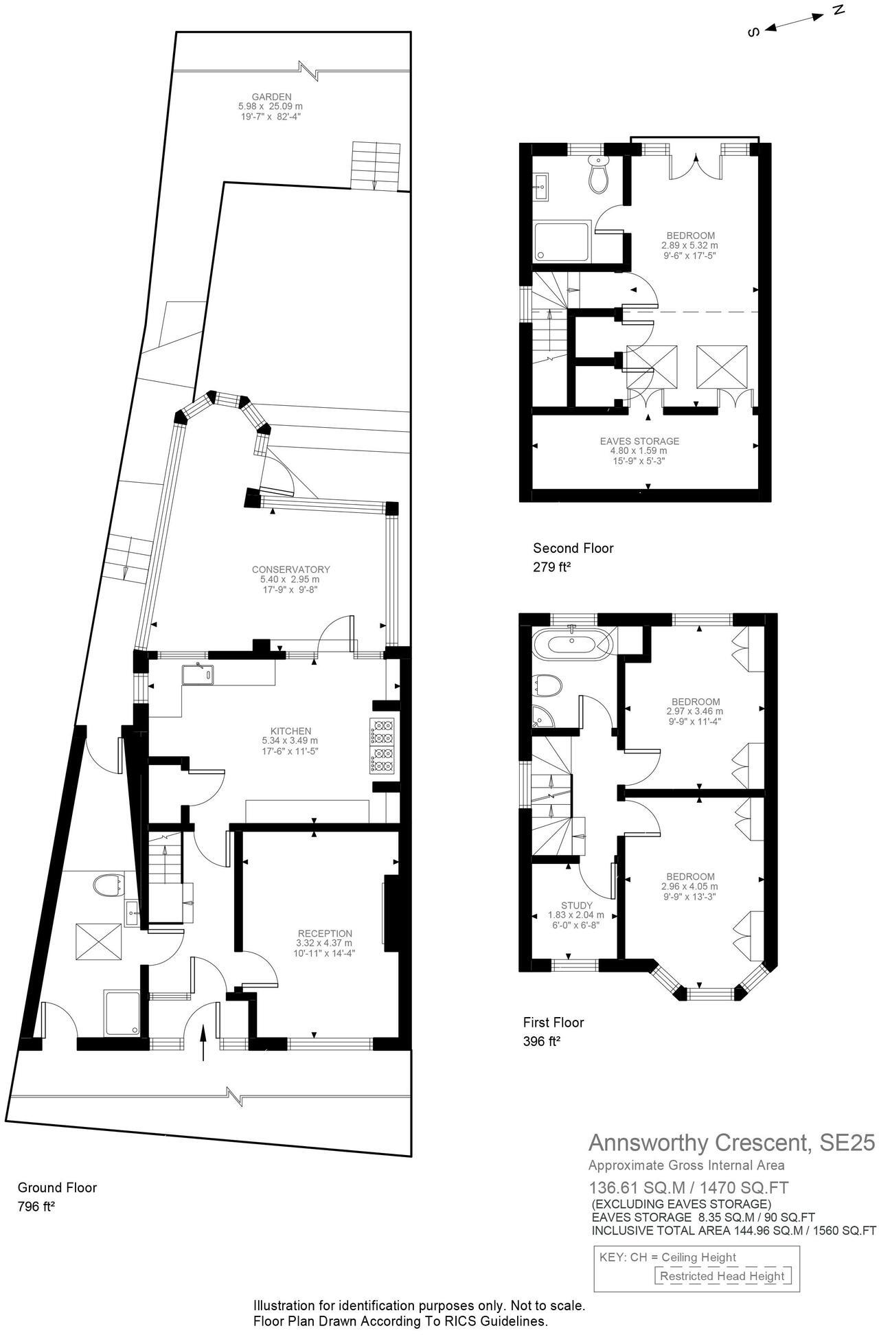
Set on Annsworthy Crescent and overlooking Grangewood Park, this 1930s end-of-terrace house offers wide panoramic views across London from a loft-conversion master bedroom. The layout suits a growing family or commuters: three double bedrooms plus a single currently used as an office, large kitchen, separate living room and an expansive conservatory that opens to a generous private garden with raised decking.
Period Tudor Revival features — leaded windows, exposed beams and a stone fireplace — give the house character and warmth. Practical benefits include double glazing (install date unknown), mains gas boiler with radiators and excellent mobile and broadband connectivity for home working and streaming. Local transport links and several well-regarded schools are within easy reach, making daily life convenient for families.
Buyers should note a few material points: the property’s solid brick walls are assumed to have no added cavity insulation, and the glazing install date is unknown, so energy-efficiency upgrades may be needed. There is conflicting information about bathroom numbers; the structured data records one bathroom while a room-level description references multiple bathrooms — this should be verified. Council tax banding is not provided.
Overall, this freehold family home combines period charm, outside space and excellent views with clear potential for targeted improvements to boost comfort and efficiency.
4 bedroom end of terrace house for sale in Grange Road, South Norwood, London, SE25 — £600,000 • 4 bed • 1 bath • 1348 ft²
4 bedroom semi-detached house for sale in Wharncliffe Road, London, SE25 6SL, SE25 — £650,000 • 4 bed • 2 bath • 1467 ft²
4 bedroom house for sale in Tudor Road, London, SE25 — £575,000 • 4 bed • 2 bath • 1345 ft²
4 bedroom terraced house for sale in Wharncliffe Gardens, London, SE25 — £700,000 • 4 bed • 2 bath • 1700 ft²
2 bedroom character property for sale in Ross Road, London, SE25 — £300,000 • 2 bed • 1 bath • 415 ft²
3 bedroom terraced house for sale in Buller Road, Thornton Heath, CR7 — £450,000 • 3 bed • 1 bath • 1200 ft²






















































































