Chain-free modern family home within walking distance of Tremough campus.
Three generous double bedrooms, master with ensuite
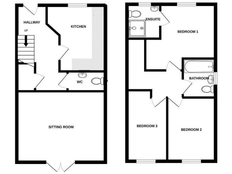
A practical three-bedroom semi-detached home built in 2015 and offered with no onward chain. The house provides well-proportioned living space including a full-width lounge with patio doors, a fitted kitchen/breakfast room with integrated appliances, and a useful ground-floor cloakroom — all arranged over two storeys to suit family life.
The first floor hosts three generous double bedrooms; the principal bedroom benefits from an ensuite and fitted wardrobes. Heating is gas-fired via boiler and radiators, and the property has UPVC double glazing throughout. Off-street parking for two or three vehicles and an enclosed, low-maintenance rear garden with decking and sheds add practical outdoor space.
This location is convenient for Tremough campus (a short walk) and within easy reach of Penryn and Falmouth amenities, local buses and schools rated Good. The home sits on a small plot within a managed development built to NHBC standards, with an estate management charge of about £366 pa.
Considerations: the plot is modest and the house is a modern, efficient design rather than a character property; the area is described as an ageing suburban neighbourhood and crime levels are average. Prospective buyers should confirm measurements, service details and management arrangements before committing.
3 bedroom end of terrace house for sale in Mabe, TR10 — £315,000 • 3 bed • 2 bath • 644 ft²
3 bedroom semi-detached house for sale in Kingston Way, Mabe Burnthouse, TR10 — £320,000 • 3 bed • 2 bath • 861 ft²
3 bedroom terraced house for sale in Kingston Way, Mabe Burnthouse, TR10 — £300,000 • 3 bed • 2 bath • 889 ft²
3 bedroom end of terrace house for sale in Kingston Way, Mabe Burnthouse, TR10 — £305,000 • 3 bed • 2 bath • 905 ft²
3 bedroom semi-detached bungalow for sale in Summerheath, Mabe Burnthouse, TR10 — £300,000 • 3 bed • 1 bath • 506 ft²
3 bedroom detached house for sale in Mabe Burnthouse, Penryn, TR10 — £395,000 • 3 bed • 2 bath • 1518 ft²






















































