Bright home with garden and parking, ideal for getting onto the property ladder.
Bright lounge with French doors to private rear garden
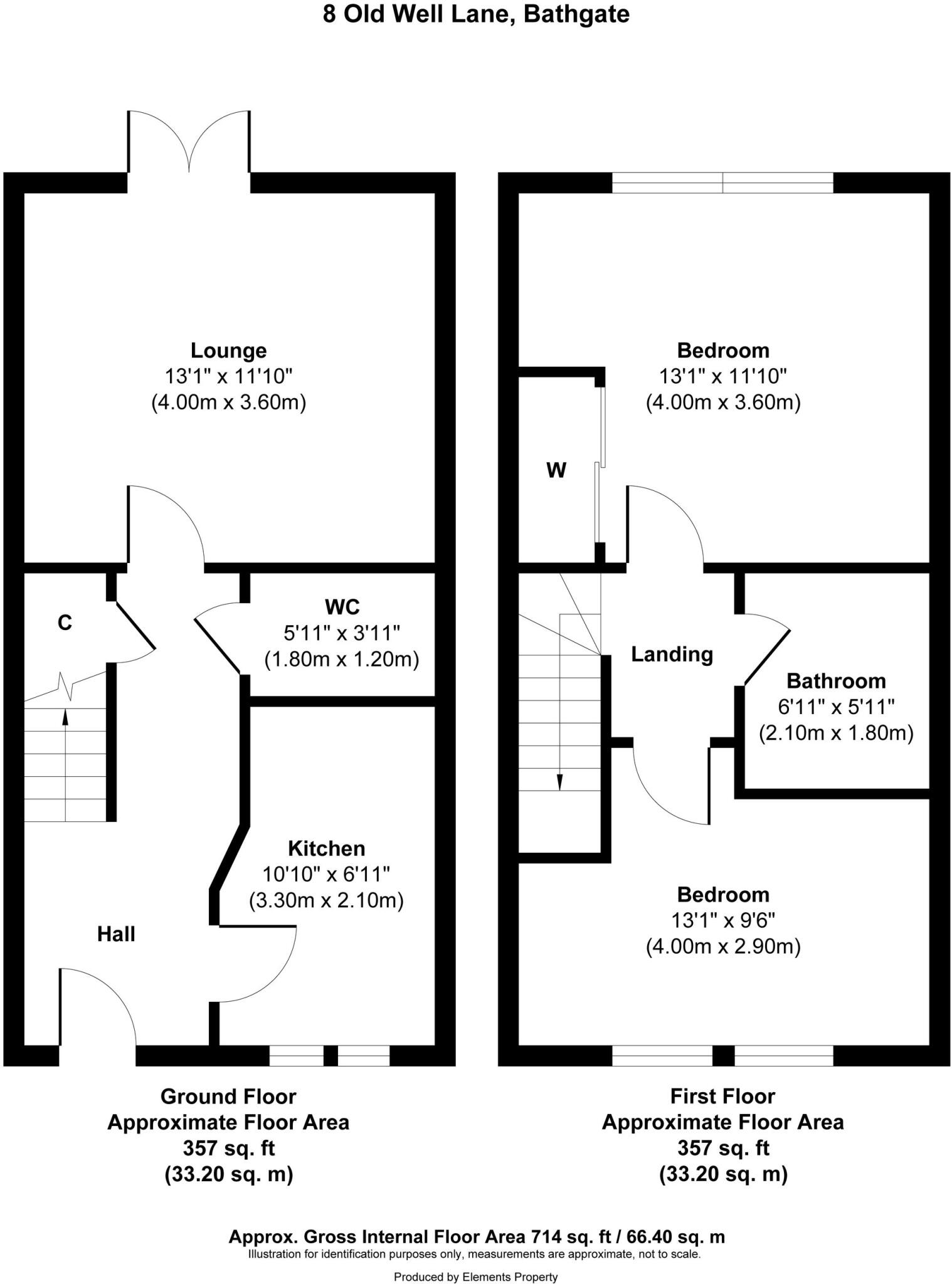
A bright, well-proportioned two-bedroom mid-terraced house in the Wester Inch development, arranged over two floors. The ground floor features a spacious lounge/diner with French doors that open onto a private rear garden and a fitted kitchen with integral appliances. Upstairs are two good-sized bedrooms (master with fitted mirrored wardrobes), a family bathroom with mains shower over bath and a useful downstairs WC.
Practical everyday living is supported by gas central heating, double glazing, loft storage with boarding and a pull-down ladder, plus an allocated off-street parking space. Broadband speeds are fast, making the house suitable for home working; mobile signal is average.
This property will suit first-time buyers or small families seeking an affordable entry into Bathgate. Note the local neighbourhood is classified as very deprived, which may affect long-term resale and local services. Council tax band is moderate. Overall the home is modern and ready to occupy, with no obvious structural issues reported from the provided information.
2 bedroom terraced house for sale in Hill Crescent, Bathgate, EH48 — £135,000 • 2 bed • 1 bath • 807 ft²
2 bedroom terraced house for sale in Whitelaw Drive, Bathgate, EH48 — £120,000 • 2 bed • 1 bath • 753 ft²
2 bedroom apartment for sale in Mill Road, Bathgate, EH48 — £125,000 • 2 bed • 1 bath • 585 ft²
2 bedroom apartment for sale in Russell Place, Bathgate, EH48 — £135,000 • 2 bed • 2 bath • 2251 ft²
2 bedroom flat for sale in Stuart Terrace, Bathgate, West Lothian, EH48 1EG, EH48 — £135,000 • 2 bed • 1 bath • 796 ft²
2 bedroom terraced house for sale in Falside Crescent, Bathgate, EH48 — £140,000 • 2 bed • 1 bath • 596 ft²






























































































