**Standout Features:**
- Two-bedroom ground floor apartment with open-plan living
- Freehold ownership with no onward chain
- Modern kitchen with integrated appliances, including oven and fridge
- Allocated off-street parking
- Close proximity to town centre and train station
- Garden space
**Concerns:**
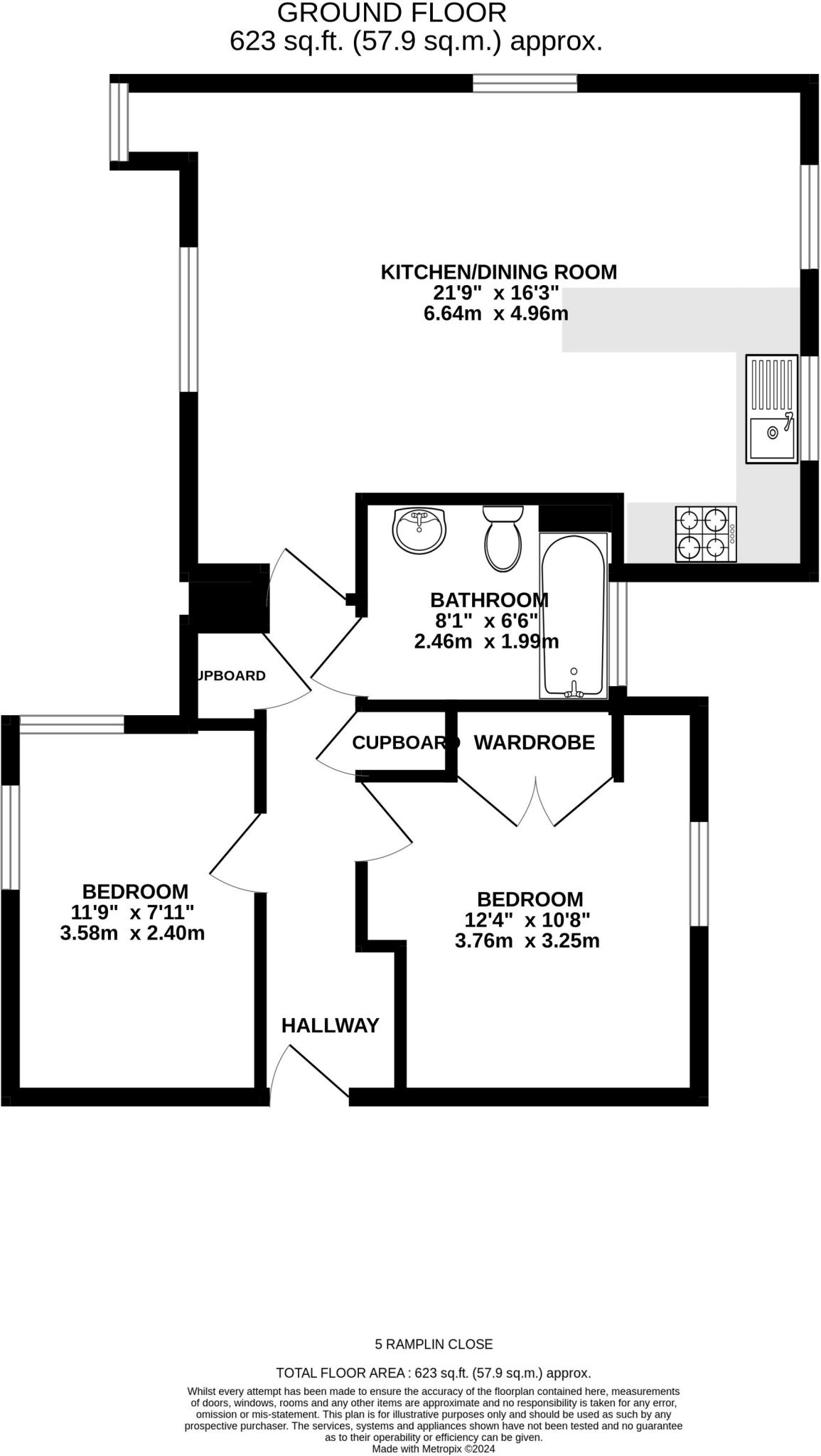
- Average-sized living space (623 sq ft)
- Council rating indicates high crime in the area, though it is affluent overall
- Local schools have mixed Ofsted ratings
This charming two-bedroom ground floor apartment presents an exceptional opportunity for first-time buyers or investors seeking a low-maintenance, modern living space in a vibrant location. With its airy open-plan kitchen, dining, and living area, you can enjoy a contemporary lifestyle while still being close to Bury St Edmunds’ town centre and station. The stylish kitchen is equipped with essential integrated appliances, making meal preparations a breeze, while each bedroom offers comfortable space—the master featuring fitted wardrobes and the second being dual aspect for ample natural light.
Outside, you'll find allocated parking and the added benefit of a garden, perfect for enjoying warm evenings. Being offered chain-free, this property allows for a quick move-in. However, prospective buyers should be aware of the local crime rate, as well as the mixed ratings of nearby schools, which may impact future resale value. Don’t miss out on this opportunity to secure a modern property in a desirable area that offers both comfort and convenience!
2 bedroom ground floor flat for sale in Trinity Mews, Bury St Edmunds, IP33 — £165,000 • 2 bed • 1 bath • 463 ft²
2 bedroom apartment for sale in Stephenson Place, Bury St Edmunds, IP32 — £190,000 • 2 bed • 1 bath • 624 ft²
2 bedroom flat for sale in Bury St. Edmunds, Suffolk, IP33 — £185,000 • 2 bed • 1 bath • 396 ft²
2 bedroom apartment for sale in Maltings Way, Bury St. Edmunds, IP32 — £185,000 • 2 bed • 2 bath • 630 ft²
2 bedroom flat for sale in Mermaid Close, Bury St. Edmunds, IP32 — £160,000 • 2 bed • 1 bath
2 bedroom apartment for sale in Winthrop Road, Bury St Edmunds, IP33 — £160,000 • 2 bed • 1 bath • 523 ft²














































