Renovated three-bed family home, moments from Central Park and schools.
- Edwardian mid-terrace circa 1911, full of period features
- Recently renovated with modern kitchen and quality bathroom
- Spacious lounge with bay window and feature fireplace
- Three bedrooms; two are good-sized doubles
- Mature front garden and long walled rear courtyard
- Large single garage providing parking and storage
- Solid brick walls assumed uninsulated; potential insulation work
- Small plot size; no indication of additional en-suite bathrooms
Set in prime Peverell just steps from Central Park, this attractively renovated Edwardian mid-terrace blends period charm with modern convenience. High ceilings, bay windows and original fireplaces sit alongside timber floors and a contemporary fitted kitchen, creating comfortable living space for family life.
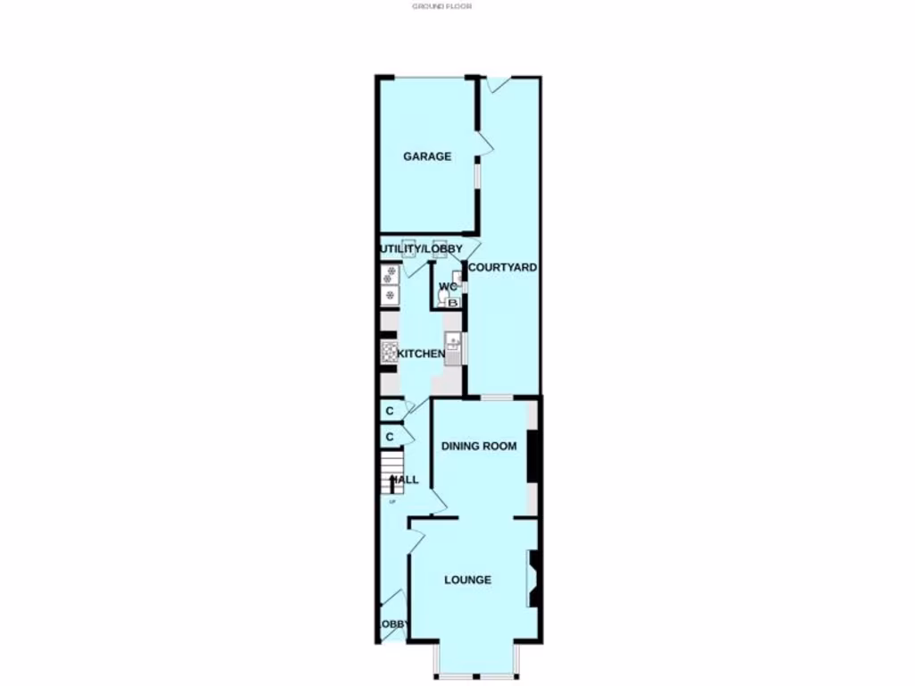
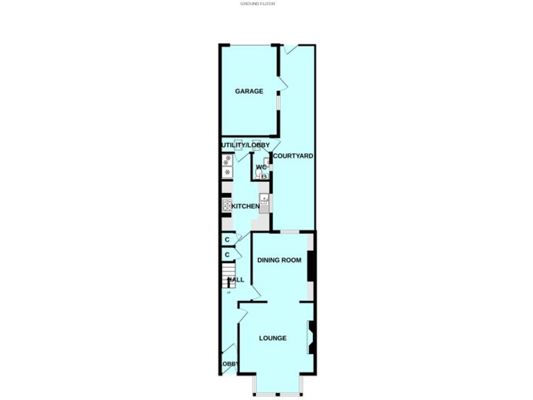
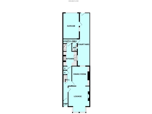
The ground floor offers a generous lounge with box bay and fireplace, a good-sized dining room, utility/rear lobby and downstairs WC. Upstairs there are three bedrooms and an impressive, well-appointed bathroom with vaulted ceiling and Velux roof light. The property benefits from double glazing and a Worcester boiler for mains gas central heating.
Outside, a mature front garden and a long walled rear courtyard give useful outdoor space, while a large single garage provides valuable off-street parking and storage. The house has been extensively upgraded and is ready to move into, making it suitable for growing families wanting space close to schools and local amenities.
Notable considerations: the mid-terrace sits on a relatively small plot and the original solid brick walls are assumed uninsulated, so further insulation works could improve energy efficiency. The layout provides one principal bathroom; buyers wanting an additional en-suite should verify bathroom arrangements. Council Tax Band C is affordable and the area records very low crime and fast broadband speeds.
3 bedroom terraced house for sale in Endsleigh Park Road, Peverell , Plymouth, PL3 — £300,000 • 3 bed • 1 bath • 865 ft²
4 bedroom character property for sale in Edgcumbe Park Road, Plymouth, PL3 — £310,000 • 4 bed • 2 bath • 1176 ft²
4 bedroom terraced house for sale in Torr View Avenue, Peverell, Plymouth. Stylish 4-Bedroom Family Home in the Heart of Peverell with parking!, PL3 — £300,000 • 4 bed • 2 bath • 1352 ft²
3 bedroom end of terrace house for sale in Ganna Park Road, Peverell, Plymouth, PL3 — £250,000 • 3 bed • 1 bath
3 bedroom terraced house for sale in Bickham Park Road, Peverell, Plymouth. A gorgeous 3 bedroomed family home with sunny garden and character NO CHAIN!, PL3 — £290,000 • 3 bed • 1 bath • 1134 ft²
5 bedroom terraced house for sale in Burleigh Park Road, Plymouth, PL3 — £425,000 • 5 bed • 2 bath • 1966 ft²










































































































