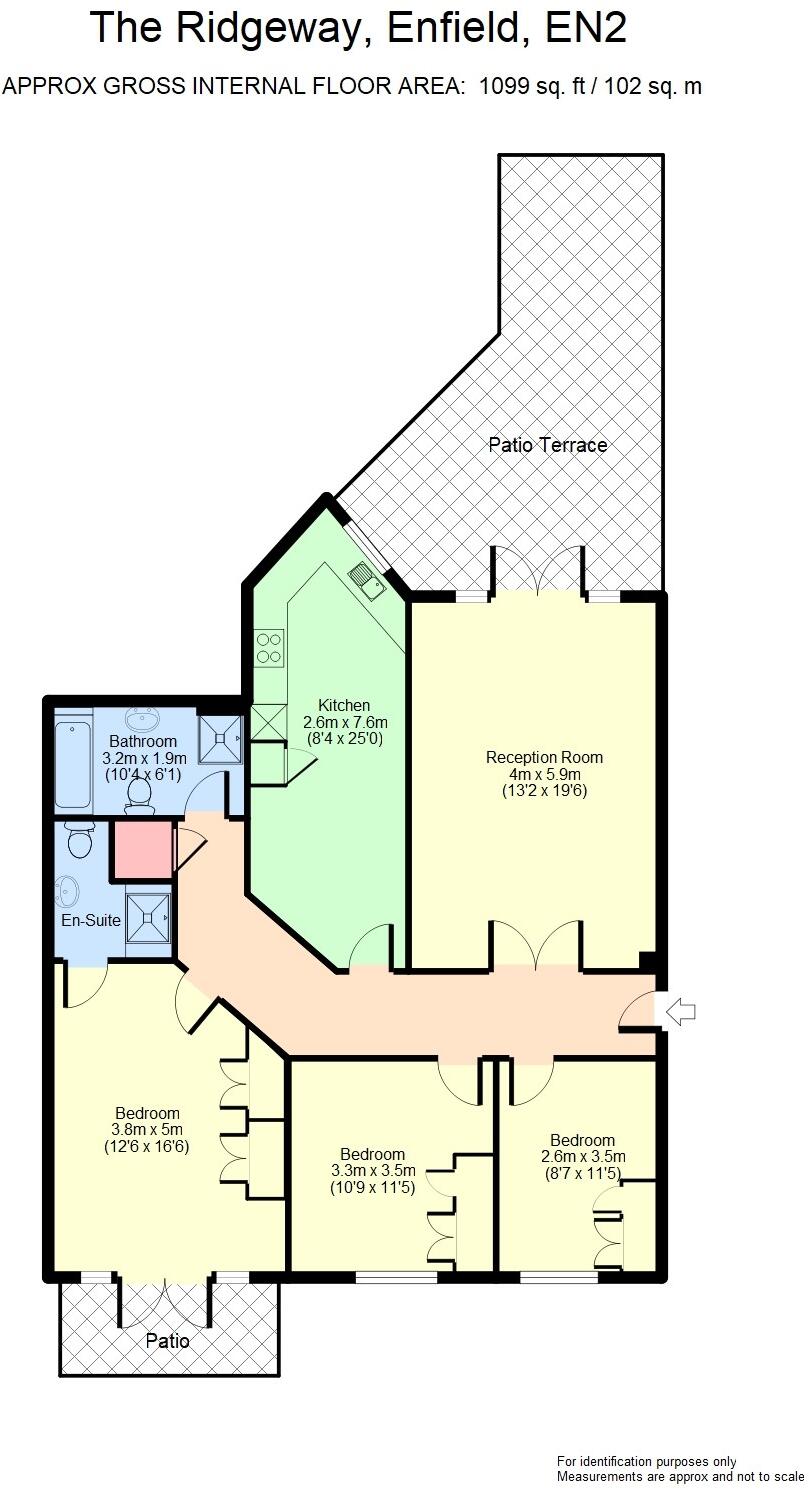
Chain-free ground-floor home with large terrace, long lease and parking..
Chain-free ground-floor apartment with over 100 sq m (1,099 sq ft)
Large south-facing paved terrace off lounge
25' integrated kitchen/diner with AEG appliances
Main bedroom with balcony and en-suite shower room
Secure underground parking (two spaces stated) and lift access
163-year lease remaining and no ground rent
Above-average service charge £5,066 pa — factor into costs
Average broadband speeds; glazing installed before 2002
This chain-free, ground-floor three-bedroom apartment in Enfield offers over 100 sq m (1,099 sq ft) of living space with a large south-facing paved terrace off the lounge and a private balcony from the main bedroom — ideal for families who value outdoor space without a garden to maintain. The 25' integrated kitchen/diner is fitted with quality AEG appliances and integrated white goods, creating an open, sociable hub for daily life and entertaining.
Practical features include a long 163-year lease with no ground rent, gas central heating, double glazing and secure underground parking (two spaces stated), plus lift access to the communal hallway and car park. The main bedroom benefits from an en-suite shower room; the property sits in an area served by several Good and Outstanding local schools and has low local crime and excellent mobile signal.
Notable costs and limitations are the above-average annual service charge of £5,066 and an unspecified council tax band — factor these into running costs. Broadband speeds are average, and the building’s double glazing was installed before 2002. Overall, this apartment suits families or buyers wanting spacious, low-maintenance living with strong local amenities, but budget-conscious purchasers should allow for service charges and potential modernisation over time.
 3 bedroom apartment for sale in The Ridgeway, Enfield, Middlesex, EN2 — £650,000 • 3 bed • 2 bath • 1201 ft²
 3 bedroom apartment for sale in The Ridgeway, Enfield, Middlesex, EN2 — £650,000 • 3 bed • 2 bath • 1201 ft² 3 bedroom apartment for sale in The Ridgeway, Enfield, EN2 — £650,000 • 3 bed • 2 bath • 1126 ft²
 3 bedroom apartment for sale in The Ridgeway, Enfield, EN2 — £650,000 • 3 bed • 2 bath • 1126 ft² 2 bedroom flat for sale in Blueberry Court, 37 Bycullah Road, Enfield, EN2 — £435,000 • 2 bed • 2 bath • 1011 ft²
 2 bedroom flat for sale in Blueberry Court, 37 Bycullah Road, Enfield, EN2 — £435,000 • 2 bed • 2 bath • 1011 ft² 3 bedroom apartment for sale in Village Road, Enfield, EN1 — £700,000 • 3 bed • 2 bath • 1098 ft²
 3 bedroom apartment for sale in Village Road, Enfield, EN1 — £700,000 • 3 bed • 2 bath • 1098 ft² 3 bedroom apartment for sale in Slades Hill, Enfield, EN2 — £700,000 • 3 bed • 2 bath • 1199 ft²
 3 bedroom apartment for sale in Slades Hill, Enfield, EN2 — £700,000 • 3 bed • 2 bath • 1199 ft² 2 bedroom apartment for sale in Uplands Park Road, Enfield, EN2 — £925,000 • 2 bed • 2 bath • 1487 ft²
 2 bedroom apartment for sale in Uplands Park Road, Enfield, EN2 — £925,000 • 2 bed • 2 bath • 1487 ft²


































































