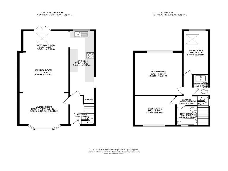
Three genuine double bedrooms with fitted wardrobes in master
Open-plan reception, dining and living area with bay front
Large private rear garden, detached garage with power and plumbing
Driveway parking plus right of use of communal car park
Recently refreshed internally and externally; chain free
System-built walls with external insulation (construction note)
Double glazing install date unknown — check warranties/condition
Wider area classified as very deprived; consider resale implications
This spacious three-bedroom semi-detached house offers an open-plan living and dining space with bay windows, skylight and French doors leading to a large, private garden. A double-storey rear extension creates three genuine double bedrooms, including a master with fitted wardrobes, plus a contemporary fully tiled shower room and separate bathroom. The detached brick garage has power and plumbing for utilities; driveway parking and right-of-use of a communal car park add practical parking options.
The property has been recently refreshed internally and externally and is offered chain free, ready for immediate occupation. Nearby Fog Lane and Ladybarn parks, Didsbury Village and Metrolink are all within walking distance, while a mix of good and outstanding schools suit families. Excellent transport links include bus routes, nearby train stations, and easy access to the M60 and Manchester Airport.
Notable construction details and considerations are stated plainly: the house is a 1930s/40s system-built property with external wall insulation and double glazing of unknown install date. The wider area is classified as very deprived, which may affect long-term resale prospects. Overall, this is a roomy, well-presented family home with useful outbuildings and scope for small improvements or adaptations.







































































































