Three-bedroom cul-de-sac home with garden and driveway, close to Belper amenities.
Three bedrooms including master with en-suite
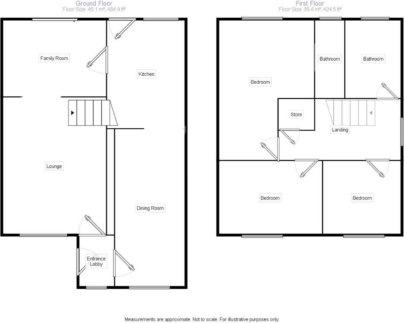
Set back in a quiet cul-de-sac, this three-bedroom detached home offers sensible family living in a sought-after Belper suburb. The ground floor provides a lounge with a focal flame-effect fire, separate dining room with sliding doors to the garden, and a modern galley-style kitchen with built-in appliances — practical spaces for everyday family life and entertaining.
Upstairs the master bedroom benefits from built-in wardrobes and an en-suite shower; two further bedrooms and a family bathroom complete the first floor. The property has PVCu double glazing, mains gas central heating with a modern combi boiler, and a good EPC (Band B), so running costs are competitive for the area.
Outside there is a tarmac driveway offering off-street parking, a detached garage and an enclosed rear garden with decking, lawn and patio — a low-maintenance outdoor space for children and pets. The house sits approximately a mile from Belper centre with good local schools, regular bus services and a rail link to Derby and beyond.
Practical points: the total internal area is modest at about 909 sq ft, so some families may find the space tighter than larger modern builds. Built in the 1980s, the property is well maintained but reflects its era; buyers seeking a fully contemporary specification may wish to refurbish certain finishes. Viewing is recommended to judge layout and storage against individual needs.
4 bedroom detached house for sale in Ashford Rise, Belper, Derbyshire, DE56 — £350,000 • 4 bed • 2 bath • 1004 ft²
3 bedroom semi-detached house for sale in Redhill Court, Belper, DE56 — £229,950 • 3 bed • 1 bath • 532 ft²
3 bedroom detached house for sale in Sandbed Lane, Belper, Derbyshire, DE56 — £325,000 • 3 bed • 1 bath • 1037 ft²
4 bedroom detached house for sale in Heydon Close, Belper, DE56 — £399,950 • 4 bed • 2 bath • 1254 ft²
3 bedroom link detached house for sale in Abbots Grove, Belper, DE56 — £210,000 • 3 bed • 1 bath • 754 ft²
3 bedroom detached house for sale in Naseby Road, Belper, Derbyshire, DE56 — £220,000 • 3 bed • 1 bath • 702 ft²














































































