M26 2QJ - 3 bedroom terraced house for sale in Dumers Lane, Radcliffe…

View on Property Piper

3 bedroom terraced house for sale in Dumers Lane, Radcliffe, Manchester, M26

Summary - 226 DUMERS LANE RADCLIFFE MANCHESTER M26 2QJ

3 bed 2 bath Terraced

Chain-free three-bed family home with modern kitchen and bathroom.
Three double bedrooms, including ground-floor bedroom with ensuite
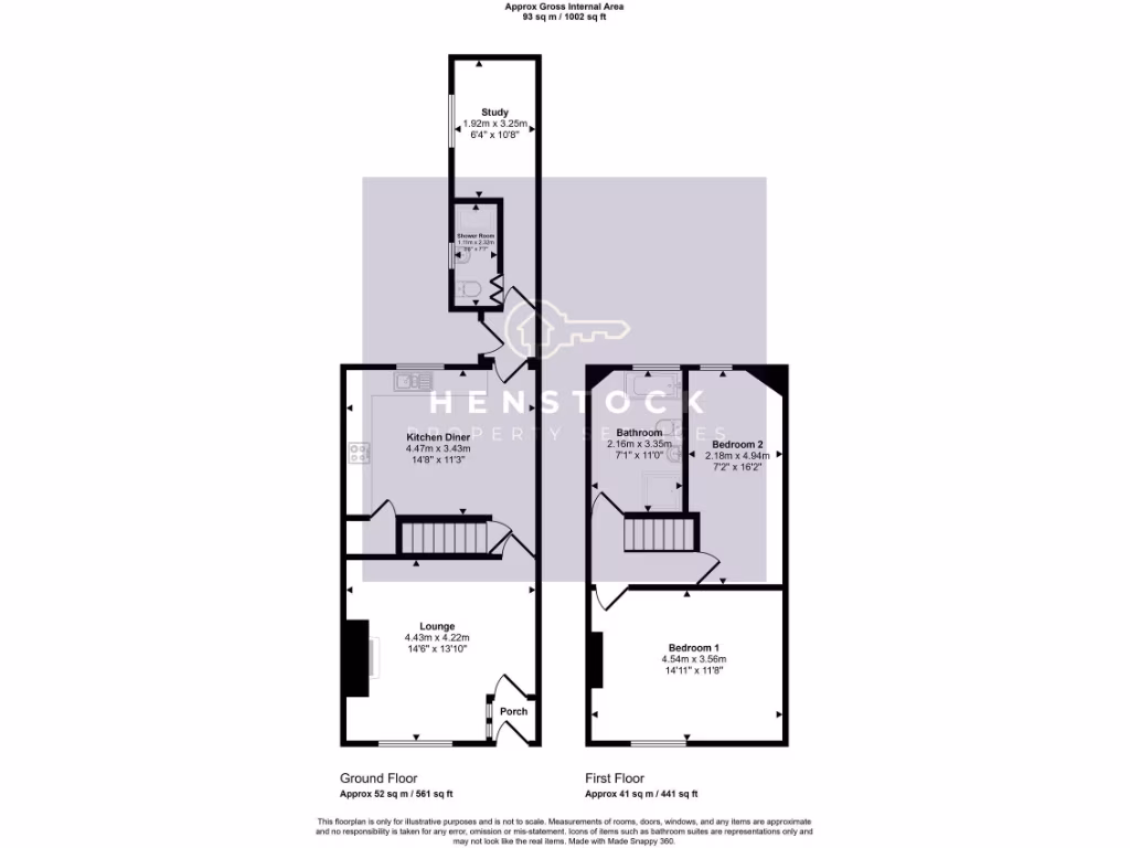
A three-bedroom end-terrace on Dumers Lane that suits a growing family or first-time buyers looking for ready-to-live-in space with scope to personalise. The ground floor includes a naturally bright living room with a bay window and feature fireplace, plus a double ground-floor bedroom with its own ensuite — useful for multi-generational living or guests. A recently refitted kitchen and a contemporary family bathroom reduce immediate renovation needs.

At about 1,002 sq ft, the layout is practical and well-proportioned for daily family life. The property is freehold and sold chain-free, with gated rear access and a small outdoor space. Broadband and mobile signal are strong, and the home lies within easy reach of schools, shops, bus routes and the M60/M62.

Buyers should be aware of a few material points: the property sits in a generally deprived area and the EPC rating is D. External photos and descriptions indicate some dated elements and potential damp in parts — further inspection is recommended. There is a medium flood risk for the location and only a small garden/plot.

Overall, this end-terrace offers immediate family-friendly features combined with period character and freshly updated wet rooms. It will suit buyers who want a usable home now with the option to modernise remaining rooms over time.

Property Details

Image Descriptions

Floorplan Description

Rooms

Textual Property Features

Target Audience

AI Tags

Detected Visual Features

EPC Details

Nearby Schools

Nearest Bars And Restaurants

,,,,}

Nearest General Shops

,,}

Nearest Grocery shops

,,}

Nearest Supermarkets

,,}

Nearest Religious buildings

,,}

Nearest Medical buildings

,,,}

Nearest Airports

}

Nearest Leisure Facilities

,,,,}

Nearest Tourist attractions

,,}

Nearest Train stations

,,,,}

Nearest Bus stations and stops

,,,,}

Nearest Hotels

,,}

Tags

Local Market Stats

Similar Properties

Meta

High Res Images

Compatible Images

Low res Images

Thumbnails

Raw Images

High Res Floorplan Images

Compatible Floorplan Images

Low res Floorplan Images

FloorplanImages Thumbnail

Raw Floorplan Images