**Standout Features:**
- Mixed-use property with commercial and residential potential
- Freehold with no chain and vacant possession
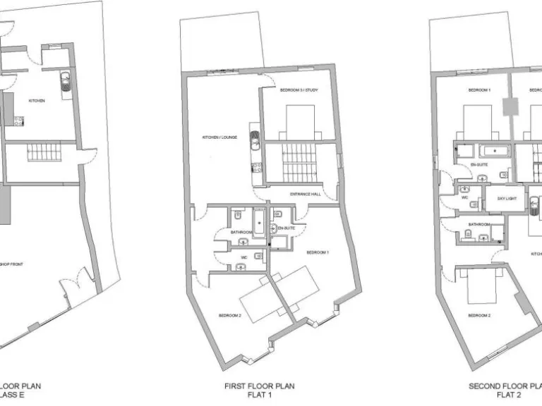
- Planning permission approved for two self-contained flats
- Prime corner location in the heart of Bideford
- Large footprint of approximately 3,769 square feet
- Council Tax Band A, offering low overhead costs
- Close proximity to local amenities and schools with good ratings
**Potential Downsides:**
- Upper floors require renovation
- Historic high crime rates in the local area
- Some areas of the wider classification indicate economic constraints
Discover an exciting development opportunity in Bideford with this mixed residential and commercial property on Mill Street. Spanning over 3,769 square feet, this freehold, chain-free property offers a unique chance to convert its upper floors into two self-contained flats while continuing to operate the established commercial space below. Enjoy the central location surrounded by bustling independent shops, cafes, and restaurants, as well as easy access to outdoor activities along the scenic Tarka Trail, with beaches just a short distance away.
The property is currently configured as a fish and chip shop and includes a spacious restaurant and take-away area with excellent street exposure. While the upper levels are in need of refurbishment, the approved planning (ref: 1/0203/2023/FUL, granted April 2023) allows for flexible use under Class E, presenting endless possibilities to maximize its potential in this expanding area. Benefit from competitively low council tax and the appeal of being close to quality schools and local amenities.
Invest in your future today with this promising property that blends residential comfort and commercial viability in a growing and vibrant locale!
5 bedroom semi-detached house for sale in Mill Street, Bideford, EX39 — £200,000 • 5 bed • 1 bath • 3793 ft²
4 bedroom character property for sale in Mill Street, Bideford, EX39 — £275,000 • 4 bed • 4 bath • 2268 ft²
Commercial property for sale in North Road, Bideford, EX39 — £150,000 • 1 bed • 1 bath • 463 ft²
High street retail property for sale in High Street, Bideford, Devon, EX39 — £299,950 • 1 bed • 1 bath • 1659 ft²
Commercial property for sale in Commercial Opportunity, High Street, Bideford, EX39 — £325,000 • 6 bed • 3 bath • 3783 ft²
1 bedroom house for sale in North Road, Bideford, EX39 — £150,000 • 1 bed • 1 bath • 463 ft²






































































































