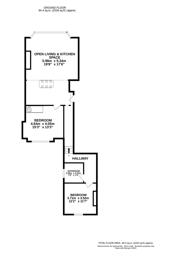
**Standout Features:**
- Ground floor apartment
- Two double bedrooms
- Open plan layout
- Stunning direct sea views
- Excellent decorative order
- Located in a highly sought-after area on the Esplanade
- Close to South Bay Beach and local amenities
- Chain-free sale with no pets permitted
- 946 years remaining on lease
- Spacious living and dining areas with plenty of natural light
This spacious ground floor apartment offers a unique blend of classic Victorian elegance and modern comfort, perfect for professionals or small families seeking a coastal retreat. With its open plan layout, the apartment features a stylish kitchen and a generous living area bathed in natural light, thanks to large bay windows that frame picturesque sea views.
Perfectly positioned on the iconic Esplanade, this property is just moments from South Bay Beach and surrounded by essential amenities, including shops, dining, and beautiful walking routes. The well-kept communal hallway leads you to two sizeable double bedrooms and a contemporary four-piece bathroom, offering everything needed for a comfortable lifestyle. Although pets are not permitted, this charming residence is ready to move into and provides not only a home but a lifestyle to be envied. Act quickly; properties in this desirable location don’t last long!
2 bedroom flat for sale in Esplanade, Scarborough, YO11 — £290,000 • 2 bed • 2 bath • 796 ft²
2 bedroom apartment for sale in Esplanade, Scarborough, YO11 — £220,000 • 2 bed • 1 bath • 1036 ft²
2 bedroom apartment for sale in Prince of Wales Terrace, Scarborough, YO11 — £180,000 • 2 bed • 1 bath • 787 ft²
2 bedroom flat for sale in Esplanade Gardens, Scarborough, YO11 — £180,000 • 2 bed • 1 bath • 515 ft²
2 bedroom apartment for sale in Esplanade, Scarborough, North Yorkshire, YO11 — £215,000 • 2 bed • 1 bath • 1038 ft²
2 bedroom flat for sale in Castle Road, Scarborough, YO11 — £180,000 • 2 bed • 1 bath • 550 ft²










































