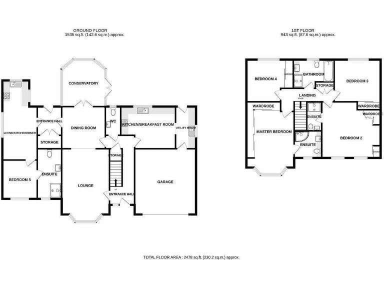
**Property Highlights:**
- Spacious 5-bedroom detached house (4 double bedrooms plus an annexe)
- Modern design with wheelchair access in the annexe
- Three updated bathrooms
- Large double garage and additional off-road parking
- Prime corner plot in a tranquil neighborhood with excellent local schools
- Well-maintained gardens featuring a summerhouse and paved patio area
- Low crime rate and strong community feel
Welcome to this beautifully presented and generously sized detached home located in the sought-after area of Redbrook, Barnsley. With four spacious double bedrooms, including two with en-suites, and a self-contained annexe boasting independent wheelchair access, this property is perfect for families or those seeking additional living space. Enjoy the modern comforts throughout, from the inviting lounge with its bay window and elegant fireplace to the convenient, fully fitted kitchen and utility area.
Set on a desirable corner plot, the home includes a double garage and ample off-road parking, ensuring a secure environment for your vehicles. Families will appreciate the excellent catchment area for well-regarded schools and the array of nearby amenities, all amidst a comfortable suburban setting with low crime rates. The garden provides a private oasis, ideal for relaxation or hosting gatherings, while the annexe presents lucrative rental potential or the flexibility needed for added comfort.
While the property is in excellent condition, it offers further potential for personalization and expansion, giving you the freedom to create a home tailored to your lifestyle. Don't miss out on this exclusive opportunity—the perfect blend of space, comfort, and future possibilities awaits!
5 bedroom detached house for sale in Belridge Close, Barnsley, S75 — £585,000 • 5 bed • 3 bath • 2120 ft²
5 bedroom detached house for sale in Park Road, Barnsley, S70 1QL, S70 — £435,000 • 5 bed • 3 bath • 1754 ft²
4 bedroom detached house for sale in Doncaster Road, Barnsley, S71 5EF, S71 — £575,000 • 4 bed • 3 bath
5 bedroom detached house for sale in Springfield Way, Millhouse Green, Sheffield, S36 9AH, S36 — £495,000 • 5 bed • 4 bath • 1328 ft²
4 bedroom detached house for sale in Intake Gardens, Barnsley, S75 2DP, S75 — £450,000 • 4 bed • 3 bath • 1492 ft²
5 bedroom detached house for sale in Dog Kennel Hill, Sheffield, S26 — £800,000 • 5 bed • 3 bath • 2685 ft²


























































































































































































