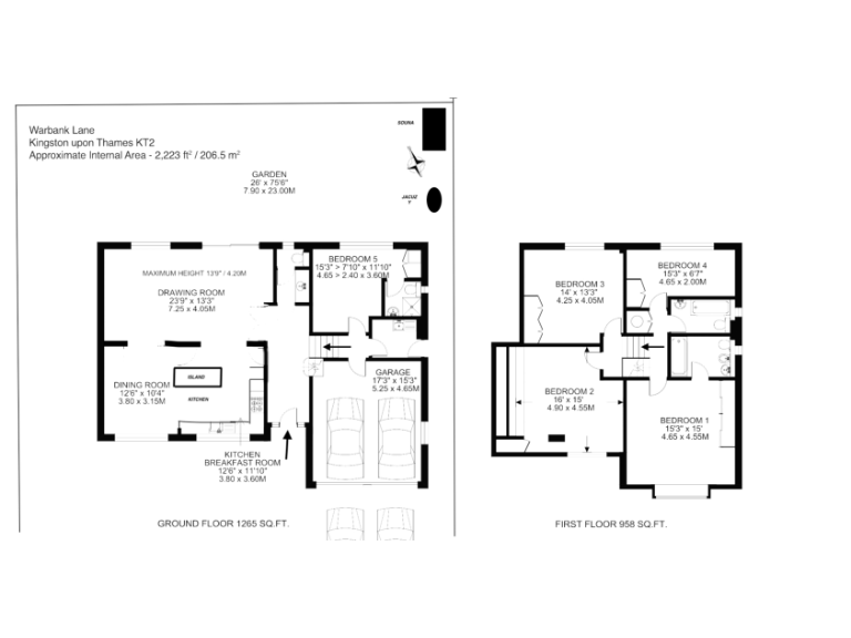
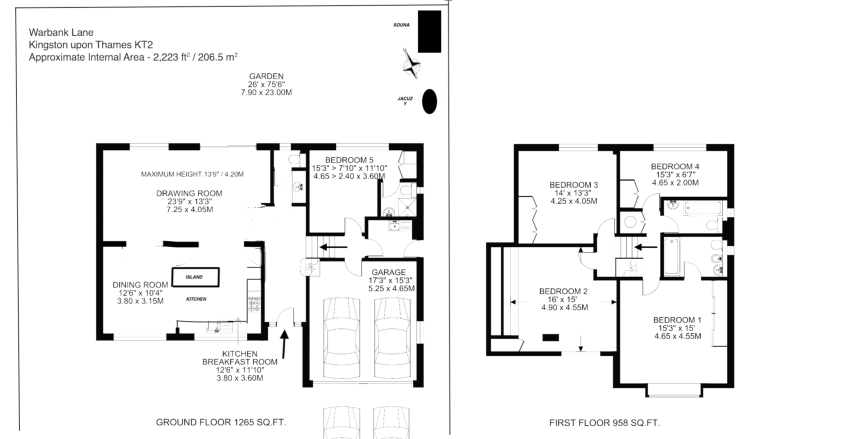
Large family home with big garden and double garage in sought-after KT2..
- Five bedrooms including ground-floor bedroom for guests or multigenerational use
- Four bathrooms (including en-suite); four separate WCs
- Large private rear garden with multiple patio/decking areas
- Private double garage plus driveway for two cars
- Open-plan kitchen and dining; large high-ceiling living room
- Freehold tenure; total internal size approx. 2,223 sq ft (20 rooms)
- Broadband speeds reported as slow locally; mobile signal excellent
- Offered furnished or unfurnished; maintenance appears typical for modern home
This spacious five-bedroom detached home in KT2 offers flexible family living across two floors with modern fittings and generous outdoor space. The layout includes a ground-floor bedroom and bathroom for guests or multi-generational arrangements, plus a large master suite with en-suite and fitted wardrobes upstairs.
The property sits on a large plot with a private garden and multiple patio areas suitable for entertaining and family life. A double private garage and driveway provide secure parking and useful storage. Internally the open-plan kitchen and dining area and a large living room deliver bright, sociable spaces with high ceilings to the reception rooms.
Practical points to note: the home is freehold with a comfortable 2,223 sq ft / approx. 20-room footprint, but broadband speeds in the area are reported as slow. Mobile signal is excellent. The property is offered furnished or unfurnished, allowing buyers to move straight in or tailor interiors to their taste.
Located within the desirable Kingston upon Thames area (KT2), the house is close to a wide choice of well-regarded primary and secondary schools and local amenities. This is a family-oriented property for buyers seeking roomy, well-laid-out accommodation on a substantial plot, with easy access to town facilities and green spaces.
5 bedroom detached house for sale in Warbank Lane, Kingston Upon Thames, KT2 — £1,890,000 • 5 bed • 4 bath • 2223 ft²
6 bedroom detached house for sale in Eastcott Close, Kingston Hill, Kingston Upon Thames, Surrey, KT2 — £3,250,000 • 6 bed • 4 bath • 4004 ft²
5 bedroom detached house for sale in Kings Road, Kingston Upon Thames, KT2 — £2,000,000 • 5 bed • 3 bath • 2401 ft²
5 bedroom detached house for sale in Warbank Lane, Kingston Upon Thames, KT2 — £1,125,000 • 5 bed • 3 bath • 2300 ft²
4 bedroom detached house for sale in Tangmere Grove, Kingston Upon Thames, KT2 — £1,200,000 • 4 bed • 2 bath • 15898 ft²
7 bedroom detached house for sale in Coombe Lane West, Kingston upon Thames, Surrey, KT2 — £2,600,000 • 7 bed • 4 bath • 3613 ft²






































































