RG42 2EN - 4 bed extended four bedroom home in Trumbull Road, RG42 2EN

View on Property Piper

4 bedroom semi-detached house for sale in Trumbull Road, Bracknell, Berkshire, RG42

Summary - 36 TRUMBULL ROAD BRACKNELL RG42 2EN

4 bed 3 bath Semi-Detached

Versatile family home with annexe, large garden, and multiple parking spaces close to Bracknell centre..
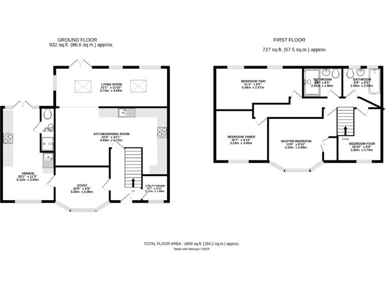
Four bedrooms plus separate self-contained annexe with kitchen and wet room
A spacious four-bedroom semi-detached home with a rare self-contained annexe, ideal for multi-generational living or rental income. The ground floor has been extended to create a bright open-plan kitchen, dining and living area with skylights and French doors that open onto a large deck and lawn — a practical layout for family life and entertaining.

Practical features include a wide paved driveway with space for multiple vehicles, three bathrooms across the house and annexe, and a separate office/utility room. The property is presented well throughout and sits within walking distance of Bracknell town centre, the Lexicon, the mainline station and several well-rated schools, which will suit commuting families.

Built in the mid-20th century and fitted with double glazing installed before 2002, the home is structurally conventional (cavity walls, mains gas boiler and radiators) but some original components may approach their expected lifespan. The annexe provides flexibility but has separate access and a wet room, so purchasers should consider how they intend to use or adapt that space.

Overall this is a practical, well-proportioned family house with substantial outdoor space and versatile accommodation. Buyers looking for a move-in-ready family home with income or multi-generational potential will find clear advantages; those seeking a fully modernised new-build finish should budget for gradual modernisation of older fittings and glazing over time.

Property Details

Brochure Descriptions

Image Descriptions

Floorplan Description

Rooms

Textual Property Features

Target Audience

AI Tags

Detected Visual Features

EPC Details

Nearby Schools

Nearest Bars And Restaurants

,,,,}

Nearest General Shops

,,}

Nearest Grocery shops

,,}

Nearest Supermarkets

,,}

Nearest Religious buildings

,,}

Nearest Medical buildings

,,,}

Nearest Airports

}

Nearest Leisure Facilities

,,,,}

Nearest Tourist attractions

,,}

Nearest Train stations

,,,,}

Nearest Bus stations and stops

,,,,}

Nearest Hotels

,,}

Tags

Local Market Stats

AirBnB Data

Similar Properties

Meta

High Res Images

Compatible Images

Low res Images

Thumbnails

Raw Images

High Res Floorplan Images

Compatible Floorplan Images

Low res Floorplan Images

FloorplanImages Thumbnail

Raw Floorplan Images