Affordable project home with good rental potential and easy local amenities.
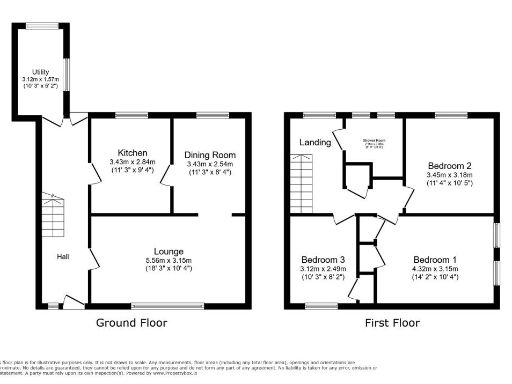
Three bedrooms upstairs with separate shower room and WC
18 ft lounge with feature fireplace; separate dining room
Front lawn and rear yard; small plot, on-street parking
Freehold tenure; Council Tax Band B keeps costs low
Requires cosmetic modernisation and general refurbishment
Probate sale — probate obtained; legal checks recommended
Double glazing present; installation date unknown
Fast broadband and excellent mobile signal in area
This deceptively spacious end-terrace presents an affordable entry into Newton Aycliffe with good rental potential. The house offers three upstairs bedrooms, an 18 ft lounge with feature fireplace and separate dining room, plus a utility and yard — all on a freehold title. The property is a probate sale and has been priced to reflect cosmetic and modernization work required.
Practical positives include a lawned front garden, rear yard, double glazing, gas central heating with boiler and radiators, fast broadband and excellent mobile signal. Local amenities and several well-rated schools are within easy reach, and on-street parking keeps costs low. Council Tax Band B helps running costs remain modest.
The home does need renovation and updating throughout: cosmetic redecoration, modern kitchen and bathroom improvements, and general refurbishment are required to realise value. Buyers should note this is sold following probate; purchasers are advised to commission a chartered survey to confirm condition and any structural or safety matters.
For first-time buyers this is a realistic route onto the ladder with scope to personalise. For investors the layout and local rental demand could produce a healthy yield after refurbishment. The position and price point make it attractive to buyers prepared to carry out improvement works.
3 bedroom terraced house for sale in Whinlatter Place, Newton Aycliffe, DL5 — £68,000 • 3 bed • 1 bath • 926 ft²
3 bedroom terraced house for sale in Elmfield Place, Newton Aycliffe, DL5 — £90,000 • 3 bed • 1 bath • 943 ft²
3 bedroom terraced house for sale in Zetland Hunt, Newton Aycliffe, DL5 — £110,000 • 3 bed • 1 bath • 751 ft²
3 bedroom terraced house for sale in Oakfield, Newton Aycliffe, DL5 — £90,000 • 3 bed • 1 bath • 968 ft²
3 bedroom terraced house for sale in Stead Close, Newton Aycliffe, Durham, DL5 — £60,000 • 3 bed • 1 bath • 782 ft²
3 bedroom terraced house for sale in Eden Road, Newton Aycliffe, DL5 5RL, DL5 — £110,000 • 3 bed • 1 bath • 1044 ft²






































