Ready-to-move-in terrace close to Greenwich shops and transport.
Newly renovated with modern fixtures throughout
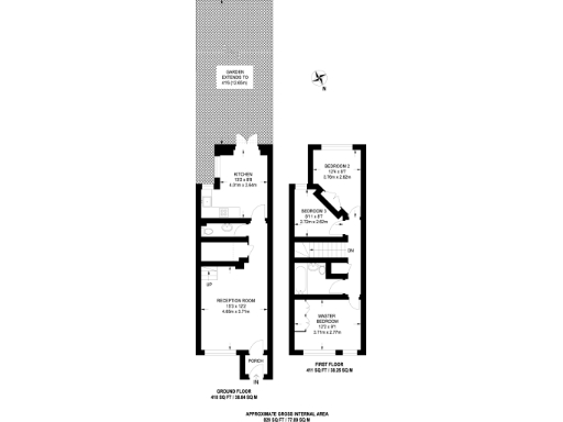
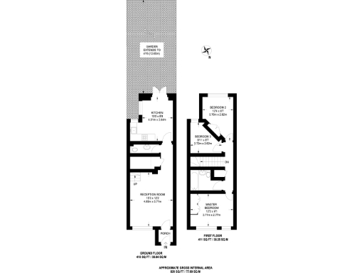
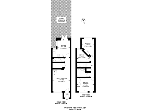
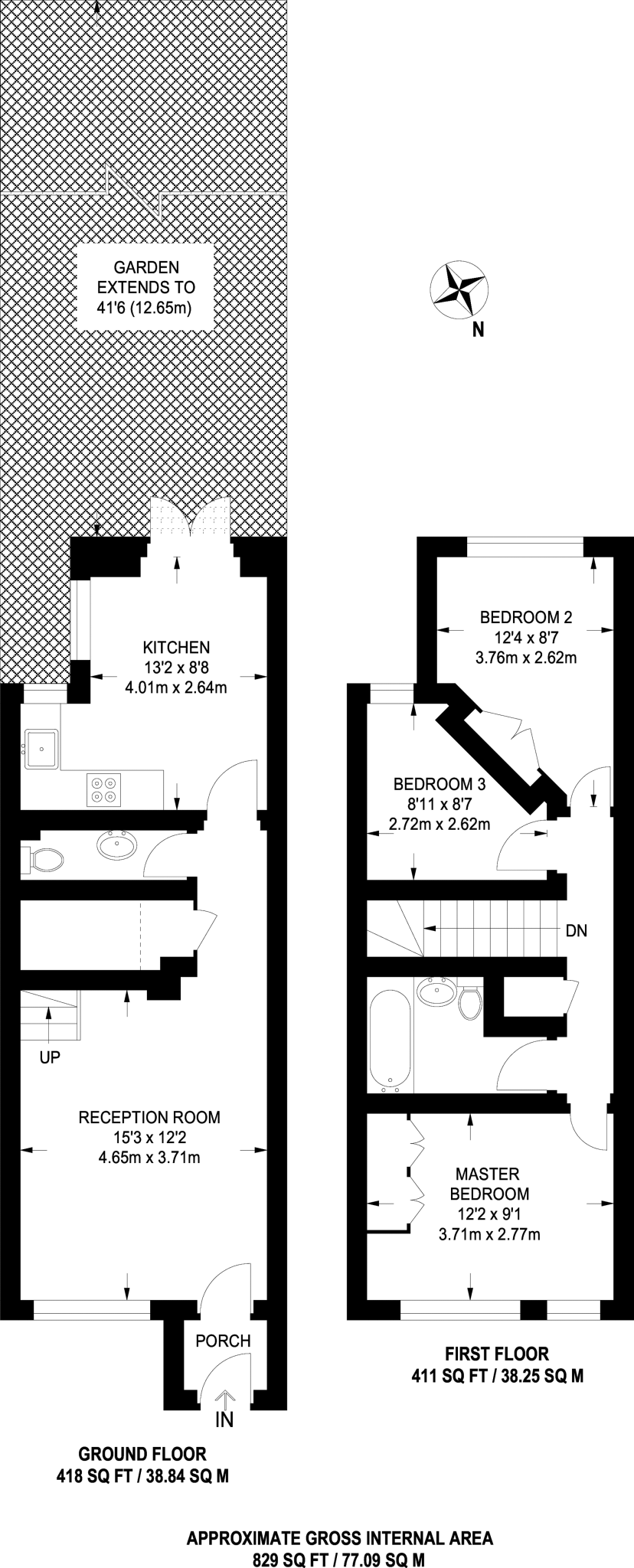
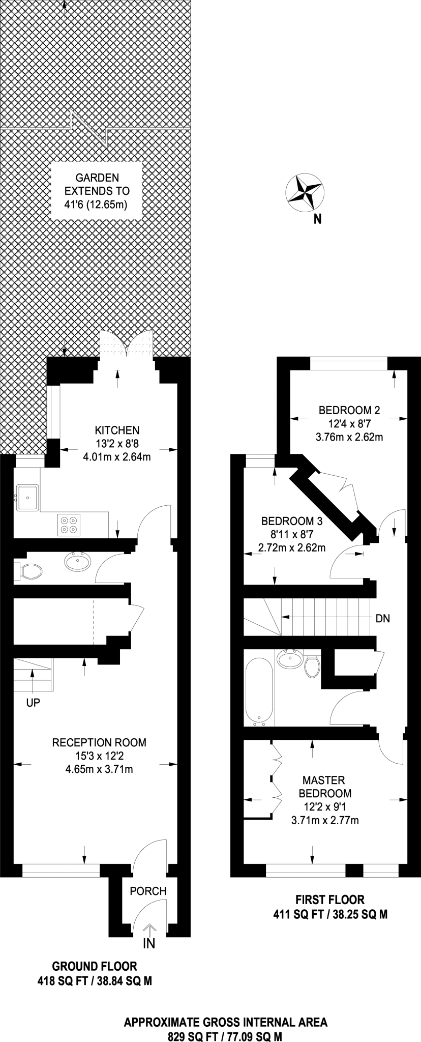
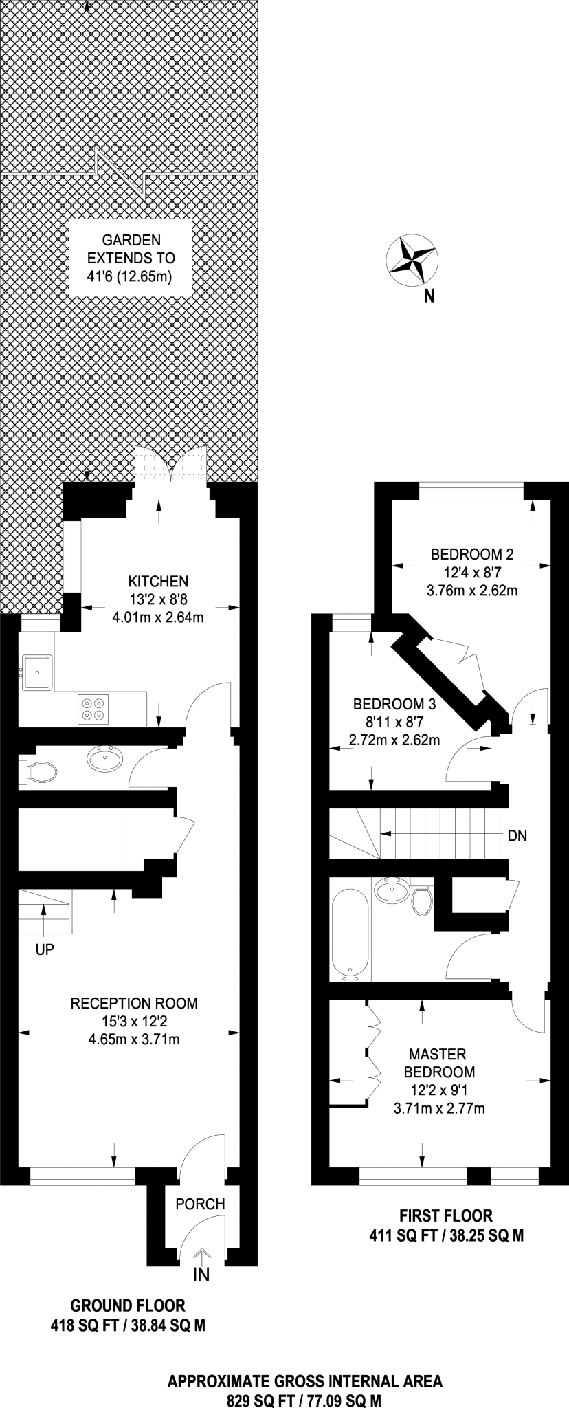
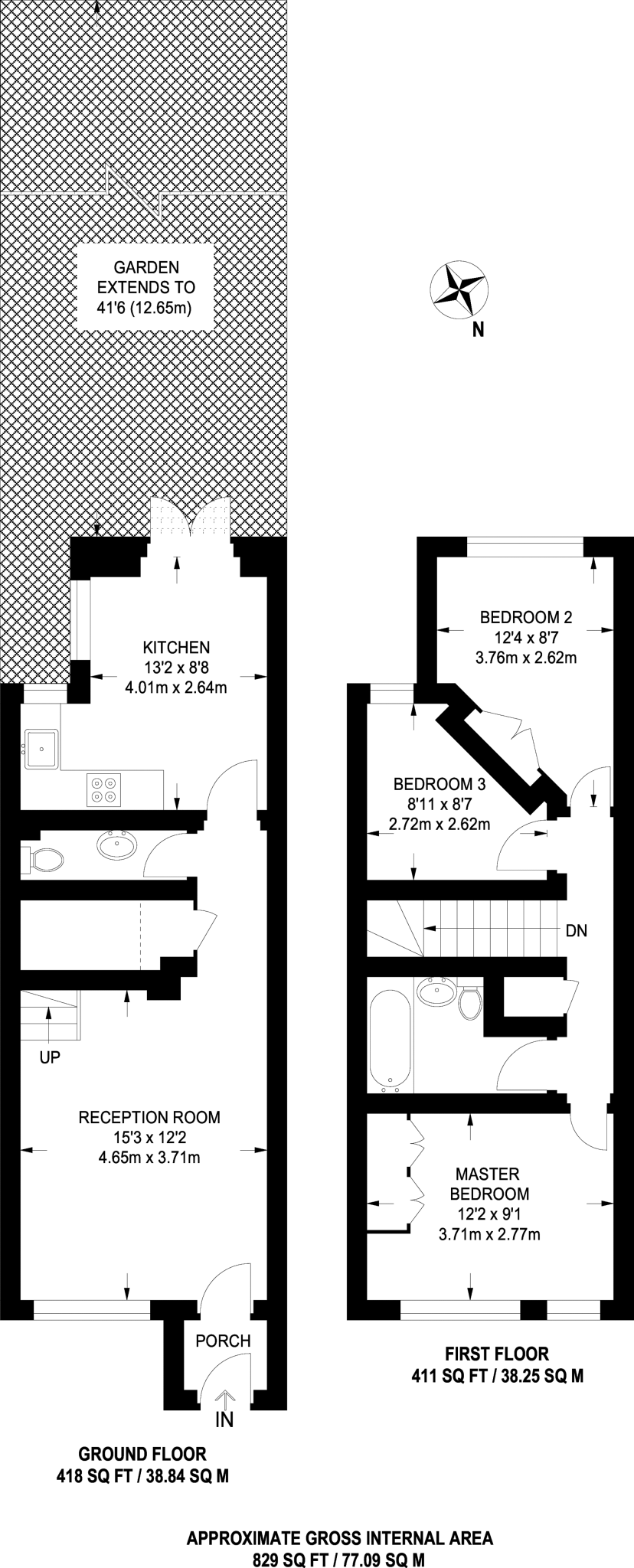
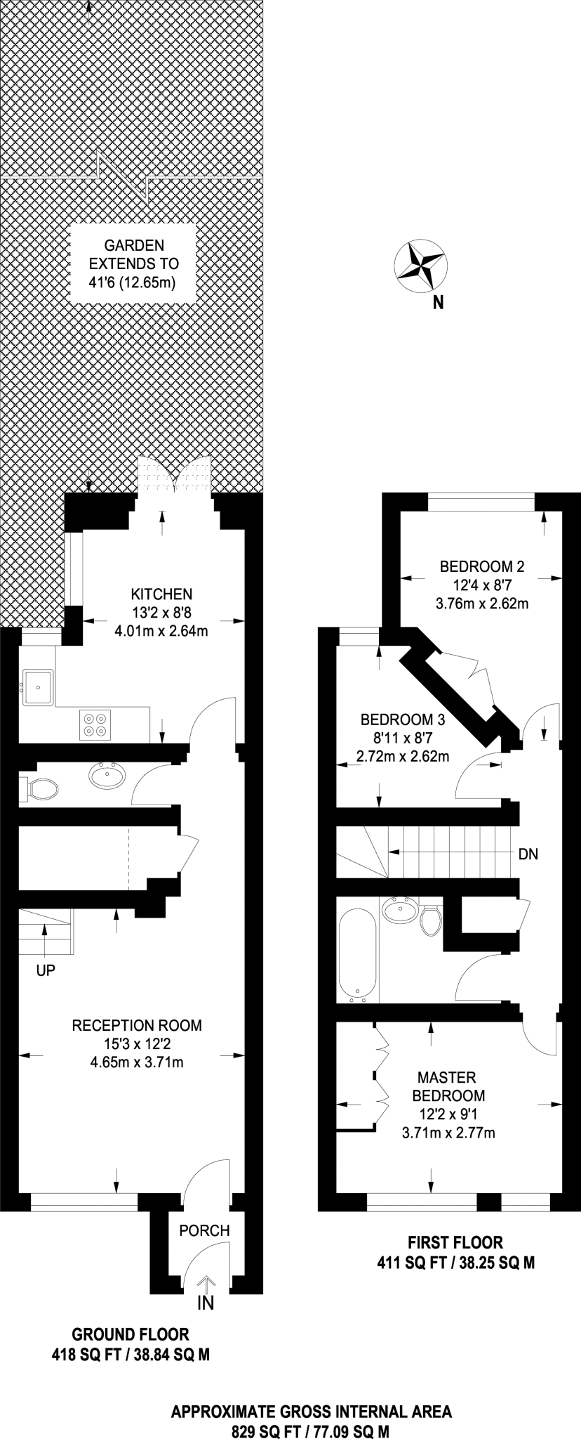
Approximately 829 sq ft across multiple storeys
South-facing rear garden, small plot size
Off-street parking available on the driveway
Three well-proportioned bedrooms, one family bathroom
Freehold tenure with double glazing and gas central heating
Close to Greenwich amenities and Westcombe Park station
Slow broadband speeds — may affect remote working
This newly renovated mid-terrace house on Tunnel Avenue offers a bright, modern interior across approximately 829 sq ft. The ground floor features a contemporary kitchen with space to dine and a light living room leading to a south-facing rear garden — an appealing outdoor spot for children or container plants. Off-street parking adds practical convenience in this inner-city location.
Upstairs are three well-proportioned bedrooms and a smart family bathroom. The property is freehold and benefits from double glazing and mains gas central heating with a boiler and radiators. Its size and layout suit a young family or buyers seeking a ready-to-move-in home near Greenwich Village’s shops, cafés and transport links, including Westcombe Park station.
Notable limitations are a single bathroom for three bedrooms and a small plot size, which restricts garden expansion. Broadband speeds are reported slow, which may affect home working. Overall the house presents a low-maintenance, modern home in a convenient, established neighbourhood with good local schools and ample amenities.
3 bedroom end of terrace house for sale in Tunnel Avenue, Greenwich, SE10 — £675,000 • 3 bed • 1 bath • 1153 ft²
3 bedroom terraced house for sale in Greenwich Park Street, London, SE10 — £865,000 • 3 bed • 1 bath • 1001 ft²
2 bedroom semi-detached house for sale in Winforton Street, SE10 — £625,000 • 2 bed • 1 bath • 648 ft²
4 bedroom terraced house for sale in Lemmon Road, Greenwich, London, SE10 — £775,000 • 4 bed • 2 bath • 1124 ft²
4 bedroom house for sale in Crosslet Vale, Greenwich, SE10 — £800,000 • 4 bed • 2 bath • 1200 ft²
3 bedroom terraced house for sale in Hornfair Road, Charlton, SE7 — £525,000 • 3 bed • 1 bath • 645 ft²














































































































































































































































































































































































































