Spacious character flat near Whitby Abbey; share of freehold and long lease.
Top-floor two-bedroom flat with high ceilings and tall sash windows
Share of freehold with a very long lease (961 years)
Rear rooms offer views towards Whitby Abbey and countryside
Functional mid-20th-century kitchen; some dated fixtures need updating
Main bedroom benefits from extensive built-in wardrobes and storage
Shared rear parking: two spaces for four flats, first-come, first-served
Holiday letting prohibited—suitable for long-term rental or owner-occupation
Located in an area with high deprivation; consider local market dynamics
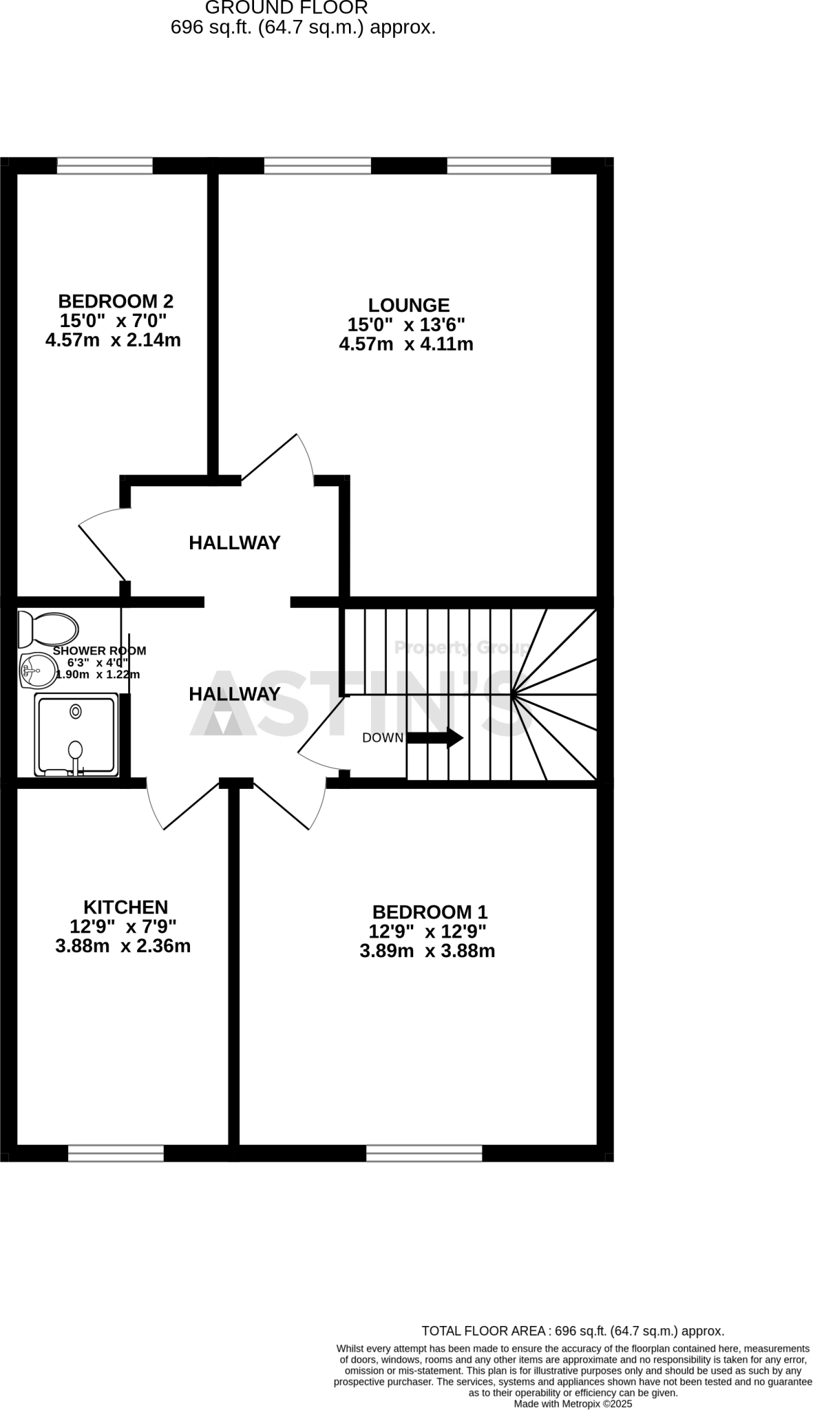
Set within a handsome Georgian terrace on Whitby’s West Cliff, this two-bedroom top-floor flat offers generous rooms, high ceilings and tall sash windows that flood the living space with light. The property is part of a small block of four flats and occupies the top level, with attractive street views and distant sights of Whitby Abbey from the rear rooms.
Practical features include a functional, mid-20th-century kitchen with space for freestanding appliances, built-in wardrobes in the main bedroom and a separate shower room. Parking is available to the rear with two shared spaces for the block, offered on a first-come, first-served basis. The long lease (961 years) and share of freehold give strong tenure security.
This flat suits a first-time buyer, couple or buy-to-let investor seeking a well-proportioned period property close to town amenities and schools. Note: holiday letting is not permitted. The kitchen and some internal fittings are dated and buyers should expect cosmetic updates; the building sits in an area described as having constrained local aspiration and relatively high deprivation levels.
Practical positives include fast broadband, low crime and very cheap council tax, while negatives to weigh are the limited shared parking, the need for modernisation in places, and the local area’s socioeconomic challenges. Overall, this is a characterful, well-located apartment offering scope to personalise and add value.
2 bedroom flat for sale in 1 East Terrace, WHITBY, North Yorkshire, YO21 — £99,995 • 2 bed • 1 bath • 664 ft²
2 bedroom flat for sale in Mount Square, Whitby, YO21 — £155,000 • 2 bed • 1 bath • 534 ft²
2 bedroom apartment for sale in Upgang Lane, Whitby, YO21 — £160,000 • 2 bed • 1 bath • 978 ft²
1 bedroom flat for sale in Flowergate, Whitby, North Yorkshire, YO21 — £117,000 • 1 bed • 1 bath • 451 ft²
1 bedroom apartment for sale in Bagdale, Whitby, YO21 — £140,000 • 1 bed • 1 bath • 596 ft²
2 bedroom flat for sale in Flat 3, 15 Prospect Hill, Whitby, North Yorkshire, YO21 — £180,000 • 2 bed • 2 bath • 579 ft²














































