Four double bedrooms, double garage and generous garden in desirable Netherton location.
Detached four-bedroom family home on a large, private plot
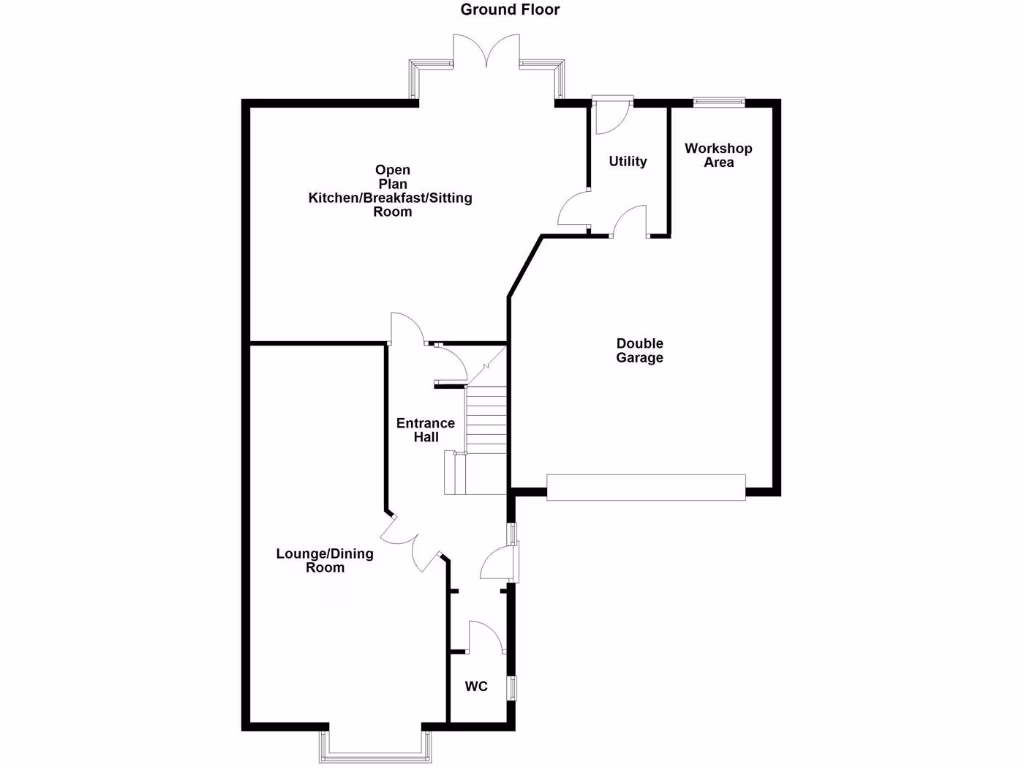
A substantial four-bedroom detached family home set on a large plot in the sought-after village of Netherton. The house offers generous, well-proportioned rooms including a long lounge/dining room and a modern open-plan kitchen/breakfast/sitting room with central island, integrated appliances and French doors onto an enclosed rear garden. Practical features include an integral double garage with workshop space, driveway parking for two cars and a separate utility room.
The first floor provides four double bedrooms, two with en suites and a large principal suite with dressing room/walk-in wardrobe. The property benefits from underfloor heating throughout many rooms, double glazing, mains gas central heating and an EPC rating of C (69). Outside is a private lawned garden with patio and summerhouse, ideal for family outdoor living.
Notable considerations: the house was constructed before 1900 with solid brick walls and is assumed to have no wall insulation, which may affect running costs and future retrofit works. Council Tax Band F is relatively expensive. Internal inspection is recommended to fully assess layout and condition. Overall, the home suits a family wanting space, convenient commuter access and scope to personalise.
5 bedroom detached house for sale in Blacker Lane, Netherton, Wakefield, WF4 — £675,000 • 5 bed • 2 bath • 2229 ft²
5 bedroom detached house for sale in Brookfields, Netherton, Wakefield, WF4 — £425,000 • 5 bed • 2 bath • 1112 ft²
4 bedroom detached house for sale in Bourn View Road, Netherton, Huddersfield, West Yorkshire, HD4 — £475,000 • 4 bed • 3 bath • 1293 ft²
3 bedroom detached house for sale in Upper Lane, Netherton, WF4 — £330,000 • 3 bed • 1 bath • 980 ft²
4 bedroom detached house for sale in Goldcrest Court, Netherton, Huddersfield, HD4 — £340,000 • 4 bed • 1 bath • 865 ft²
5 bedroom detached house for sale in Coppice Drive, Netherton, HD4 — £650,000 • 5 bed • 3 bath • 1195 ft²


























































































































































































