Stylish three-bed family home with landscaped garden and attic dressing room.
Three-bedroom semi-detached family home, well presented
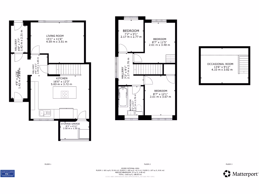
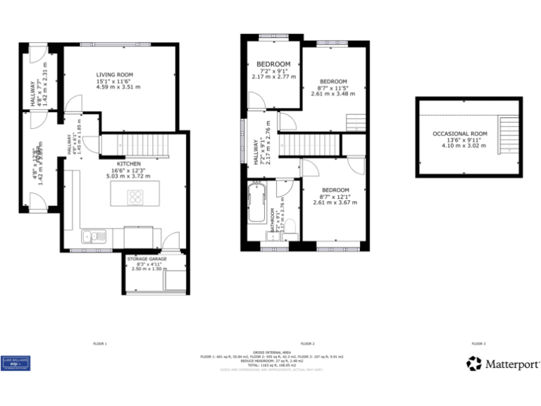
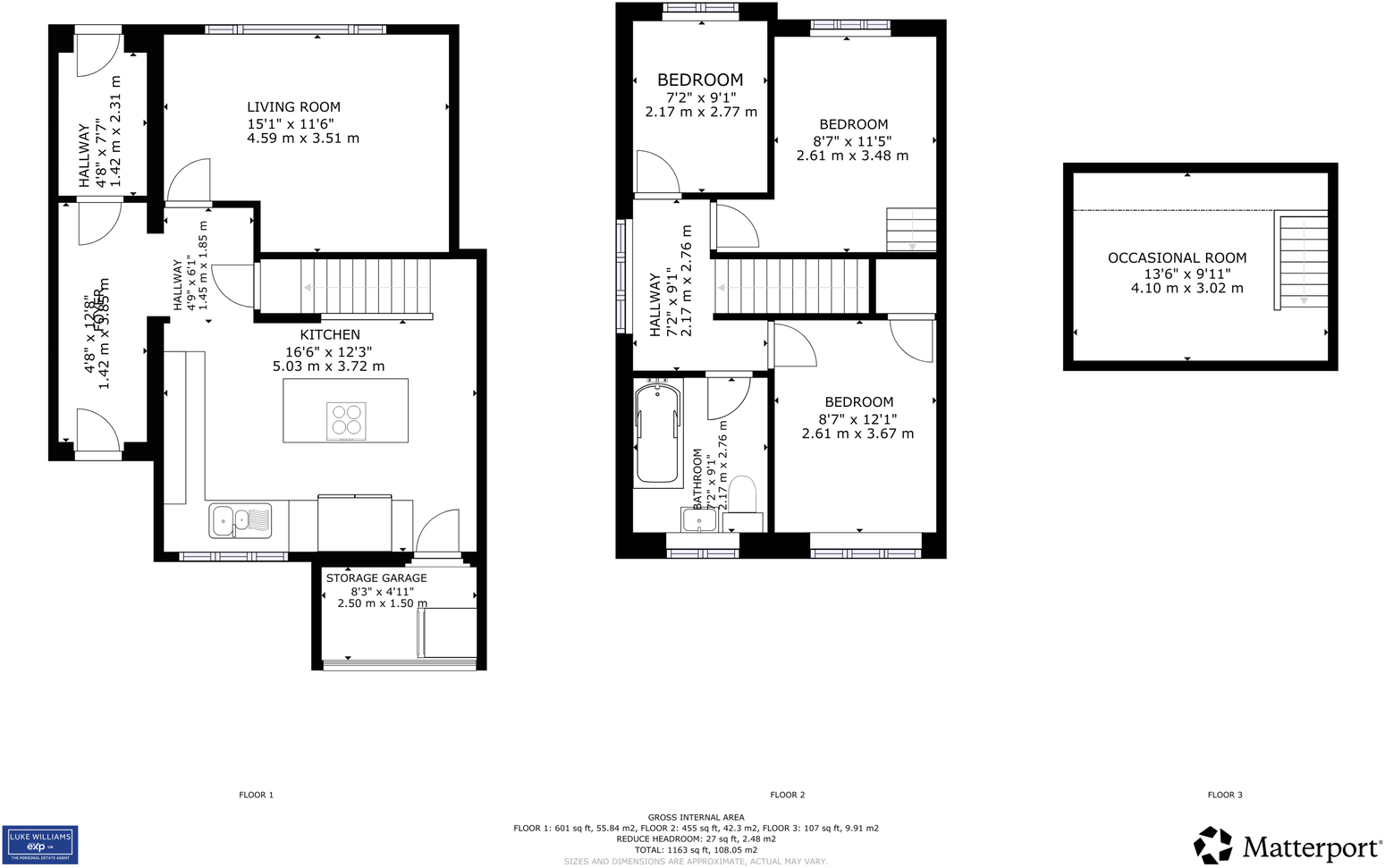
This well-presented three-bedroom semi-detached home in Wadsley Bridge suits growing families seeking move-in-ready space with scope to personalise. The open-plan kitchen diner with central island forms a sociable hub, flowing to a bright living room that overlooks a landscaped rear garden and patio — ideal for family meals and outdoor entertaining.
Upstairs there are three good-sized bedrooms and a contemporary family bathroom. The master bedroom benefits from a private staircase up to a useful attic dressing room, offering flexible storage or a quiet retreat. A driveway and adjacent storage garage provide practical off-street parking and extra space for bikes or tools.
Practical details are straightforward: the property is leasehold with 747 years remaining and a modest £25 per year ground rent, and council tax is described as low. Transport links into Sheffield are excellent and several local primary schools are rated Good, making the location family-friendly.
Notable considerations: the house is in an area with higher recorded crime, and there is only one family bathroom. The home has average overall size and is post-war in style — attractive for buyers wanting comfortable, contemporary living rather than period features. Buyers should review full property information and the video/3D Matterport tour for layout and measurements.
3 bedroom semi-detached house for sale in Halifax Road, Wadsley Bridge, S6 — £200,000 • 3 bed • 1 bath • 826 ft²
3 bedroom semi-detached house for sale in Laird Road, Wadsley, Sheffield, S6 4BS, S6 — £290,000 • 3 bed • 1 bath • 1065 ft²
3 bedroom town house for sale in Baxter Drive, Wadsley Bridge, Sheffield, S6 — £230,000 • 3 bed • 1 bath • 869 ft²
3 bedroom semi-detached house for sale in Grove Avenue, Wadsley, Sheffield, S6 — £325,000 • 3 bed • 1 bath • 1156 ft²
3 bedroom terraced house for sale in Parson Cross Road, Sheffield, S6 — £180,000 • 3 bed • 1 bath • 905 ft²
4 bedroom semi-detached house for sale in Laird Avenue, Sheffield, S6 — £375,000 • 4 bed • 1 bath • 1543 ft²










































































































