Period farmhouse with barn conversion consent and sizeable grounds for renovation or development.
8-bedroom period farmhouse arranged over three floors, substantial flexible accommodation
2.21 acres immediate grounds; larger productive grassland available in the holding
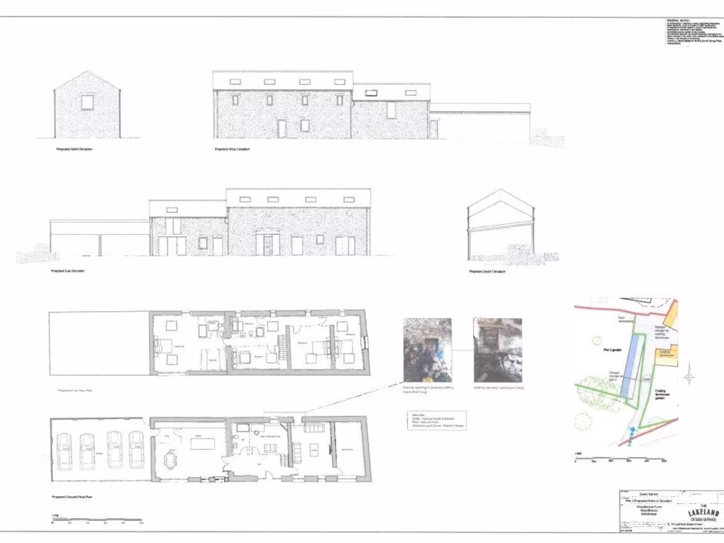
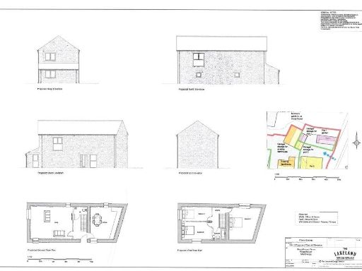
Planning consent (2024/1141/FPA) to convert stone barns into three dwellings
Single bathroom for eight bedrooms; property needs full modernisation and refurbishment
Stone walls likely uninsulated; oil-fired boiler and radiators (oil supply, private)
Range of traditional outbuildings plus steel cubicle building and silage clamp
Garage and garaging included with farmhouse and proposed barn conversions
Expensive council tax; buyers should budget for significant upgrade costs
Woodhouse Farm is a substantial period farmhouse set within about 2.21 acres of immediate grounds, forming part of a larger productive holding in a desirable Milnthorpe location. The principal house provides eight bedrooms across three floors and generous flexible rooms ready for a comprehensive modernisation programme. The property retains traditional granite stone construction and strong rural character with distant estuary/coastal views and easy access to A6/M6 corridors.
The steading includes a range of traditional stone barns with planning consent (ref. 2024/1141/FPA) to convert into three independent dwellings — a 3-bed, a 4-bed and a 5-bed unit with gardens and garaging — offering clear development upside for a developer or investor. There is also a steel portal cubicle building, silage clamp and yard areas that provide further scope subject to consents. Overall plot size and surrounding pasture suit livestock, equestrian or amenity uses and support a premium rural valuation.
The house requires full modernisation: single bathroom for eight bedrooms, assumed uninsulated stone walls, oil-fired boiler and radiators, and likely electrical and thermal upgrades. Buyers should allow for substantial capital expenditure to bring the farmhouse and outbuildings up to contemporary standards despite the planning consent for the barns. Council tax is noted as expensive. This lot therefore suits purchasers seeking a hands-on renovation/development project with significant scale and rural appeal.
Land for sale in Woodhouse, Milnthorpe, Cumbria, LA7 — £150,000 • 1 bed • 1 bath
4 bedroom farm house for sale in Mireside Farm, Crosthwaite, Kendal, LA8 8BT, LA8 — £820,000 • 4 bed • 1 bath • 7339 ft²
Commercial development for sale in Thwaite House Farm , Carnforth, LA5 9EL, LA5 — POA • 1 bed • 1 bath • 3191 ft²
Land for sale in Woodhouse, Milnthorpe, Cumbria, LA7 — £300,000 • 1 bed • 1 bath
Land for sale in Woodhouse, Milnthorpe, Cumbria, LA7 — £90,000 • 1 bed • 1 bath
3 bedroom detached house for sale in High House Farm, Gawthrop, Sedbergh, Cumbria, LA10 — £675,000 • 3 bed • 1 bath






























































































































