Bright two-bedroom flat with parking and communal gardens in desirable Horsforth.
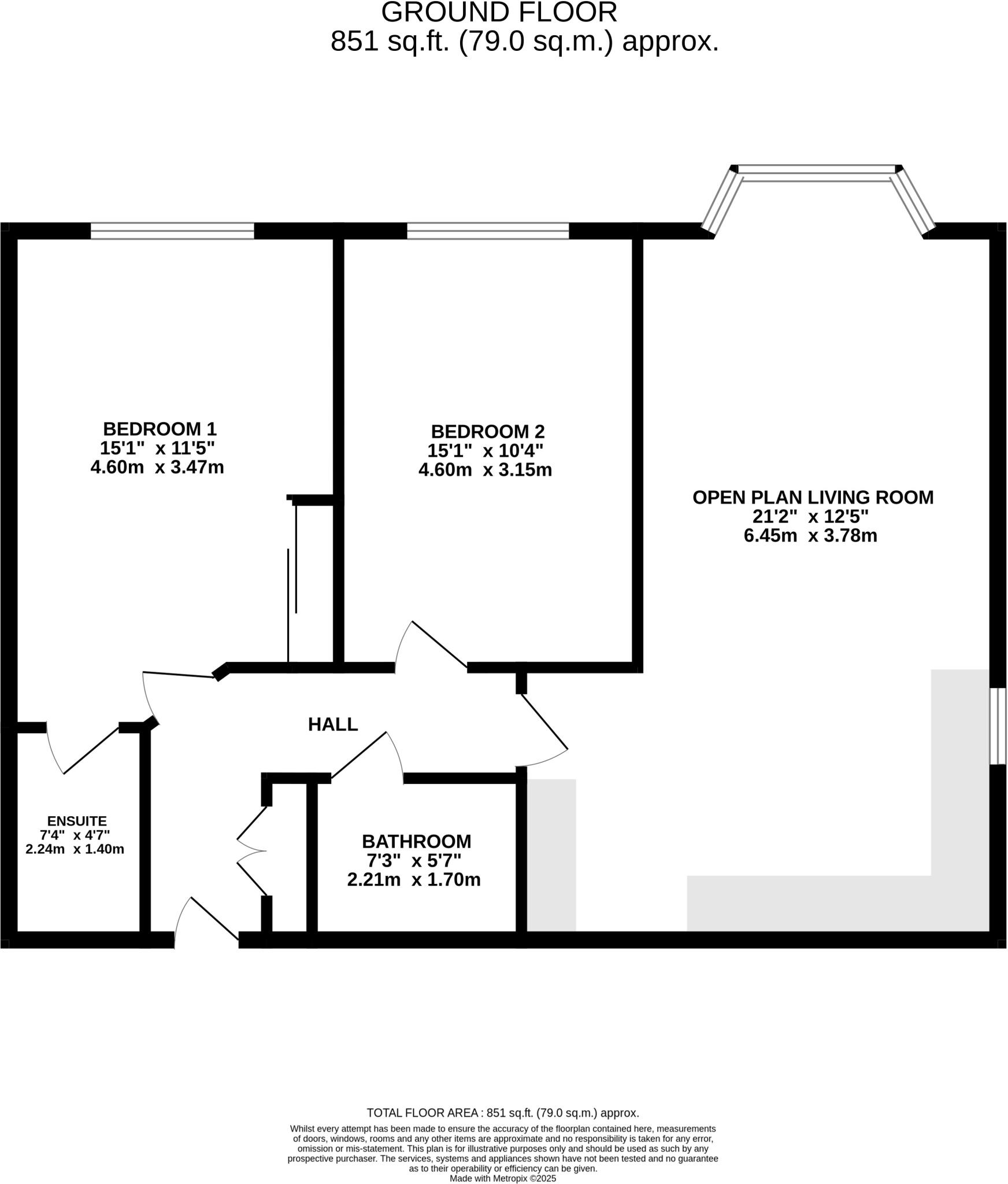
Ground-floor two-bedroom apartment with ensuite to master
A modern ground-floor two-bedroom apartment in desirable Horsforth, designed for first-time buyers and professionals seeking low-maintenance, well-located living. The open-plan living, dining and kitchen provides bright, flexible space, with a bay window and room for dining and relaxation. The master bedroom includes built-in wardrobes and an ensuite; a second double bedroom and a fully tiled family bathroom complete the layout.
Practical features include allocated parking and communal gardens, double glazing and a long remaining lease (about 237 years). The property is electrically heated using room heaters, which keeps installation simple but can be more expensive than gas. Service charges and a modest ground rent apply — the current service charge is c. £1,750 and ground rent rises are written into the lease.
Horsforth offers strong local amenities, excellent schools and good transport links, making this a convenient commuter base. The apartment is in a modern block built in the 2000s, but some cosmetic updating would refresh the living areas and kitchen for long-term appeal. Overall this is a straightforward, well-proportioned starter home with clear potential and predictable running costs to factor into budgeting.
2 bedroom flat for sale in Cornmill View, Horsforth, Leeds, West Yorkshire, LS18 — £165,000 • 2 bed • 2 bath • 691 ft²
2 bedroom apartment for sale in Manor Fold, Horsforth, Leeds, West Yorkshire, LS18 — £215,000 • 2 bed • 2 bath • 674 ft²
2 bedroom apartment for sale in Town Square, Horsforth, Leeds, LS18 — £198,850 • 2 bed • 2 bath • 679 ft²
2 bedroom flat for sale in The Square, Horsforth, Leeds, LS18 — £150,000 • 2 bed • 2 bath • 646 ft²
2 bedroom flat for sale in The Square, Horsforth, Leeds, West Yorkshire, LS18 — £180,000 • 2 bed • 1 bath • 536 ft²
2 bedroom apartment for sale in Town Square, Kerry Garth, Horsforth, Leeds, LS18 — £189,950 • 2 bed • 2 bath • 644 ft²






























































































