BA11 5HF - 6 bedroom detached house for sale in Witham Friary, Frome,…

View on Property Piper

6 bedroom detached house for sale in Witham Friary, Frome, BA11

Summary - MULBERRY HOUSE WITHAM FRIARY FROME BA11 5HF

6 bed 4 bath Detached

**Standout Features:**
- Characterful Grade II Listed detached home built in 1830
- Over 4,000 sq. ft. of versatile living space across three floors
- Six spacious double bedrooms, including a principal suite with en-suite
- Four reception rooms with period features and modern elements
- Large private garden with wildlife-friendly areas
- Double garage with EV charging point
- Planning permission granted for extension from utility room

**Summary:**
Discover a blend of historic charm and modern family living in this impressive Grade II Listed detached home located in the sought-after village of Witham Friary. Spanning over 4,000 sq. ft., this residence offers six generously sized double bedrooms and four well-appointed bathrooms, ensuring comfort for large families. The layout promotes a harmonious flow with spacious reception rooms, ideal for entertaining, while the substantial kitchen/breakfast room serves as a welcoming hub for daily gatherings.

Set on a generous plot, the property features a large private garden perfect for children and pets to explore, alongside a double garage and a gated driveway for ample parking. While the home requires some ongoing maintenance due to its historic status, the existing character—exposed timbers, sash windows, and deep sills—adds unique charm that could be beautifully preserved in future renovations. Enjoy the tranquility of village life, with easy access to community amenities and highly regarded schools in the surrounding area. Don’t miss this opportunity to own a significant piece of local heritage, blending comfort, character, and potential for future enhancement.

Property Details

Brochure Descriptions

Image Descriptions

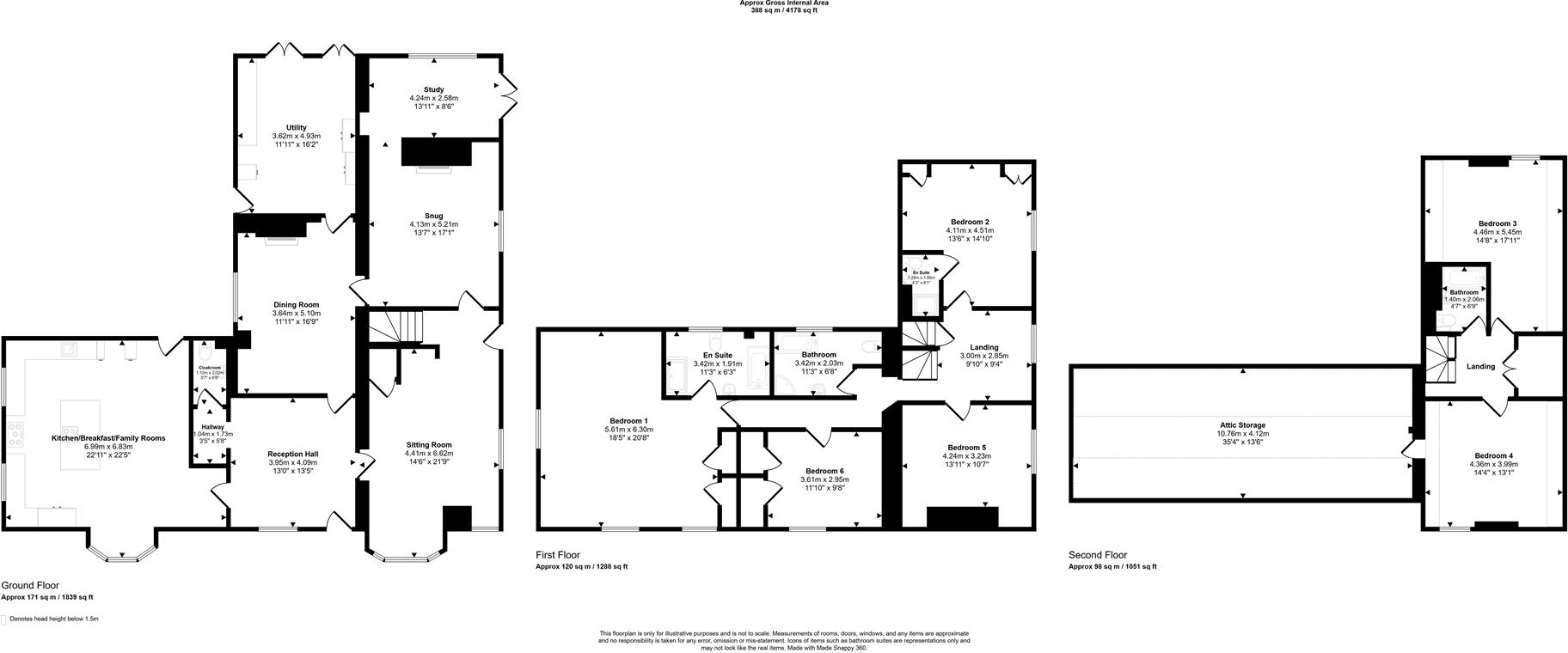
Floorplan Description

Rooms

Textual Property Features

Detected Visual Features

EPC Details

Nearby Schools

Nearest Bars And Restaurants

,,,,}

Nearest General Shops

,,}

Nearest Grocery shops

,,}

Nearest Supermarkets

,,}

Nearest Religious buildings

,,}

Nearest Medical buildings

,,,}

Nearest Airports

}

Nearest Leisure Facilities

,,,,}

Nearest Tourist attractions

,,}

Nearest Train stations

,,,,}

Nearest Bus stations and stops

,,,,}

Nearest Hotels

,,}

Tags

Local Market Stats

AirBnB Data

Similar Properties

Meta

High Res Images

Compatible Images

Low res Images

Thumbnails

Raw Images

High Res Floorplan Images

Compatible Floorplan Images

Low res Floorplan Images

FloorplanImages Thumbnail

Raw Floorplan Images