Flexible layout with sunny private rear garden and extensive parking.
Detached corner plot with wraparound gardens
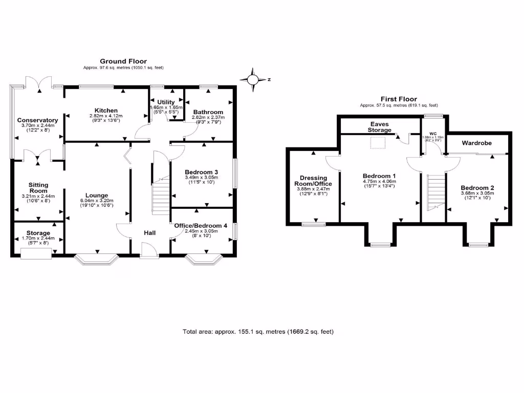
A deceptively spacious detached house occupying a prime corner plot in a sought-after Helsby location. Built in 1987 for the original owners, the house offers over 1,650 sq ft of flexible accommodation across two floors, ideal for larger families, home workers or anyone who needs distinct living and working zones.
The ground floor has two living rooms, a conservatory and a roomy kitchen with adjoining utility, plus two ground-floor bedrooms and the family bathroom. Upstairs are two large double bedrooms, a dressing room/study and a separate WC, with good eaves and former garage storage. Gas central heating and double glazing are fitted throughout.
Outside, the wraparound gardens provide lawned front and side borders and a private sunny rear terrace for barbecues and relaxation. Two separate driveways give ample off-road parking for several vehicles. The location is handy for Helsby Quarry Woodland Park, nearby shops and schools, with regular rail links to Chester, Warrington, Liverpool and Manchester.
Practical points to note: there is a single family bathroom for four bedrooms and council tax is above average. The house is presented as a solid, adaptable home rather than a newly renovated property, so buyers seeking contemporary finish may wish to update some areas to suit personal taste.
4 bedroom detached house for sale in Hornsmill Way, Helsby, Frodsham, Cheshire, WA6 — £420,000 • 4 bed • 2 bath • 1458 ft²
3 bedroom detached house for sale in Chester Road, Helsby, Frodsham, WA6 — £460,000 • 3 bed • 2 bath • 1004 ft²
4 bedroom detached house for sale in Old Chester Road, Helsby, Frodsham, WA6 — £635,000 • 4 bed • 2 bath • 2088 ft²
5 bedroom semi-detached house for sale in The Rock, Helsby, Frodsham, WA6 — £350,000 • 5 bed • 2 bath • 1665 ft²
3 bedroom detached house for sale in Chester Road, Helsby, Frodsham, Cheshire, WA6 — £350,000 • 3 bed • 1 bath • 1261 ft²
4 bedroom town house for sale in Neston Close, Helsby, Frodsham, Cheshire, WA6 — £270,000 • 4 bed • 2 bath • 1252 ft²


























































































