Spacious two-bedroom raised-ground flat near West Hampstead stations and shops.
Two double bedrooms with high ceilings and period features
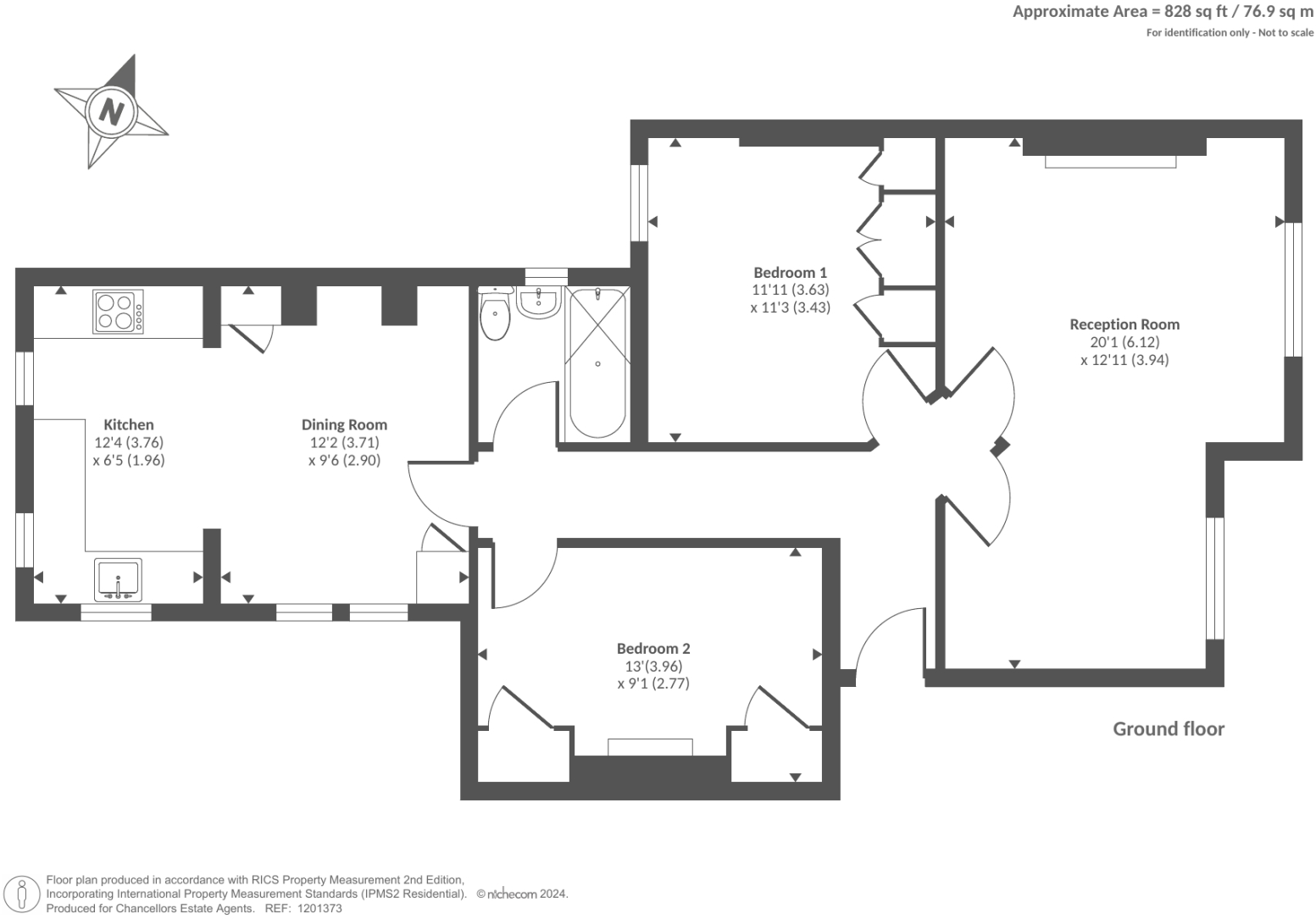
Set on the raised ground floor of a red-brick Victorian mansion block, this two-double-bedroom flat offers classic period proportions and high ceilings throughout. At about 828 sq ft, the apartment has a generous reception/dining room, an eat-in kitchen and a well-proportioned family bathroom — a comfortable layout for a couple or young family.
The location is a genuine strength: West End Lane’s shops, cafés and amenities are close by, with West Hampstead Jubilee line and Thameslink connections giving fast routes into central London. Broadband speeds are fast and mobile signal is excellent, useful for home workers. The leasehold is long (reported 945 years remaining — please check title for confirmation).
Buyers should note some practical considerations: the building dates from before 1900 and the external walls are solid brick with no assumed insulation, so heating performance may lag modern standards. The service charge is £5,500 pa (above average) and council tax is above average — factor these running costs into affordability calculations. There is a single family bathroom and no defined glazing upgrade information.
This property will suit buyers after period character and location rather than a turnkey modern finish. There is potential to personalise the kitchen and decorative finishes, and sensible investment in insulation or double glazing could improve comfort and running costs. Viewings are recommended to appreciate the ceiling heights and room proportions in person.
2 bedroom apartment for sale in West End Lane, West Hampstead, London, NW6 — £600,000 • 2 bed • 1 bath • 812 ft²
2 bedroom flat for sale in Embassy House, West Hampstead, London, NW6 — £485,000 • 2 bed • 1 bath • 758 ft²
2 bedroom apartment for sale in St Cuthberts Road, London, NW2 — £460,000 • 2 bed • 1 bath • 646 ft²
2 bedroom flat for sale in Cholmley Gardens, London, NW6 — £800,000 • 2 bed • 1 bath • 1076 ft²
3 bedroom apartment for sale in Holmdale Road, London, NW6 — £950,000 • 3 bed • 2 bath • 1249 ft²
2 bedroom apartment for sale in West End Lane, West Hampstead, NW6 — £495,000 • 2 bed • 1 bath • 630 ft²










































