**Standout Features:**
- Unique self-build luxury home
- 5 spacious bedrooms, 4 modern bathrooms
- Bright and airy layout with high ceilings
- Large garden with scenic outdoor views
- Off-street mono-block driveway for ample parking
- Contemporary design with luxurious fixtures
**Notable Concerns:**
- Broadband speed is noted as slow
- Area classified as very deprived
**Summary:**
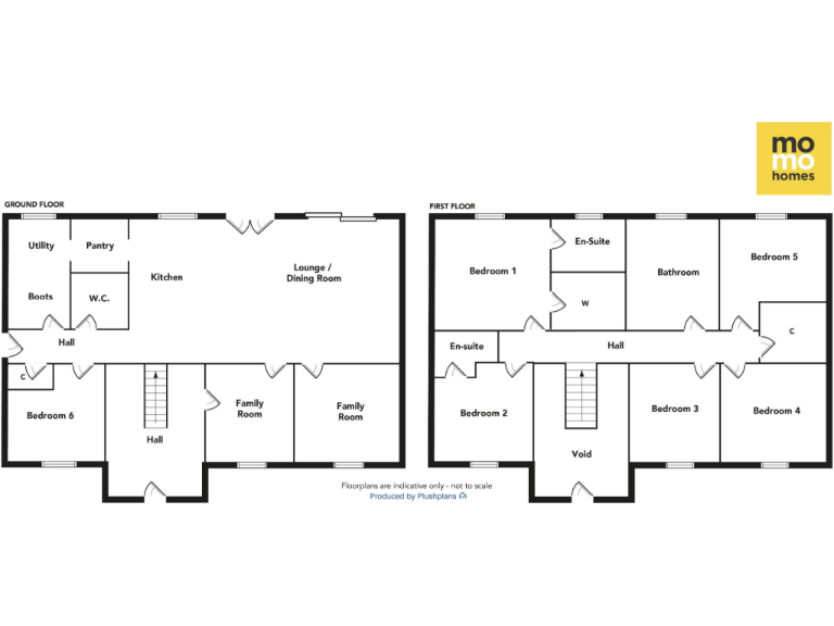
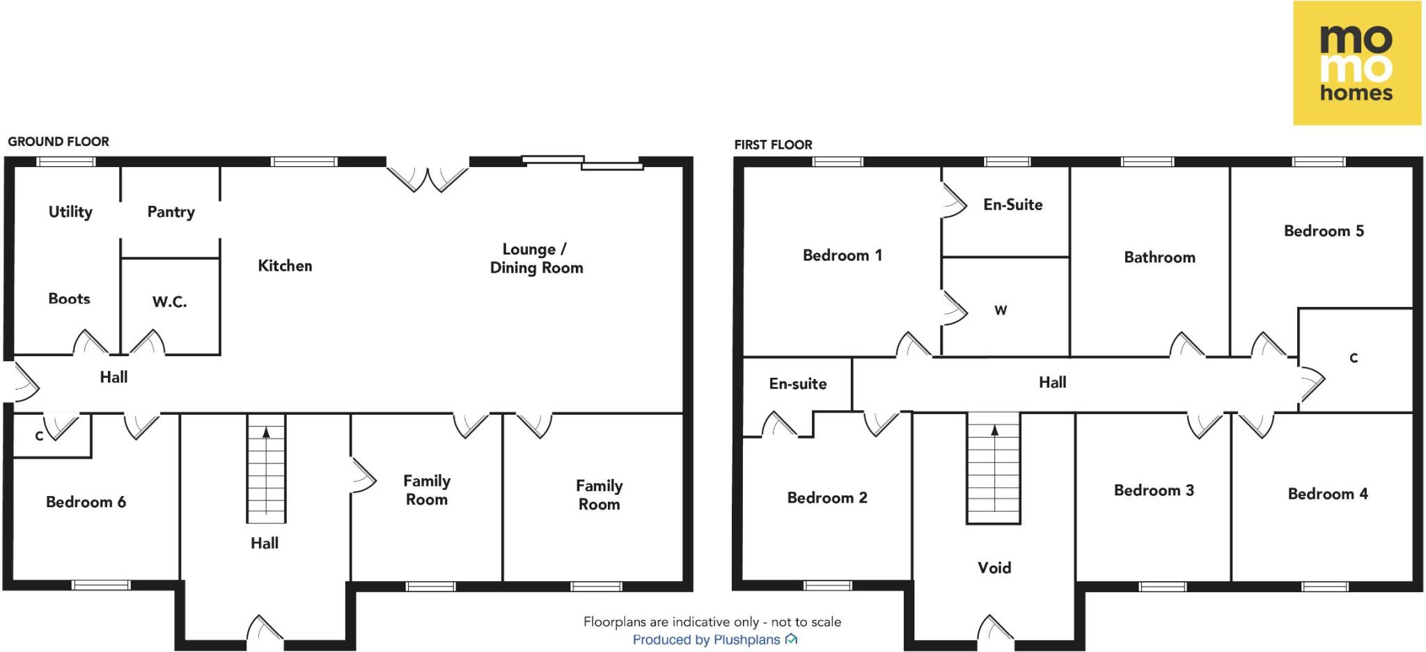
Discover a unique self-built luxury villa on Hunterlees Road in the charming village of Glassford, Strathaven. This impressive five-bedroom, four-bathroom detached home boasts a grand entrance and an expansive 3,445 sqft of living space designed with a focus on modern family living. The heart of the property lies in its state-of-the-art kitchen that seamlessly flows into entertaining spaces, complemented by a cozy lounge, a playful toy room, and functional areas like a study and utility room.
Ascend to the upper level, where you'll find five generously sized double bedrooms, including two with en-suite facilities, ensuring comfort and privacy. The striking master suite includes a luxurious four-piece bathroom, perfect for unwinding after a long day. Outside, the property excels with a spacious garden, ideal for outdoor family activities and al fresco dining amid stunning views of the countryside.
Situated within walking distance to local amenities, including restaurants and a primary school, this home is a family-friendly haven. Success in future renovations or bespoke design will enhance its value, making it an appealing choice for buyers seeking both space and style. With its luxurious offerings and potential for customization, this property won't stay on the market for long—secure your viewing today!
5 bedroom detached house for sale in Hunterlees Gardens, Glassford, ML10 — £410,000 • 5 bed • 3 bath • 2217 ft²
4 bedroom detached house for sale in Broadleaf Court, Glassford, Strathaven, ML10 — £499,000 • 4 bed • 3 bath • 2347 ft²
6 bedroom detached house for sale in Westbarns Road, Strathaven, ML10 — £499,000 • 6 bed • 5 bath • 3133 ft²
6 bedroom detached house for sale in Laigh Blackmoss, Strathaven, ML10 — £850,000 • 6 bed • 6 bath • 6566 ft²
4 bedroom detached house for sale in Twill Crescent, Strathaven, South Lanarkshire, ML10 — £385,000 • 4 bed • 4 bath • 1507 ft²
4 bedroom detached house for sale in 2 Tinto View, Heads Farm, Glassford, Strathaven, ML10 — £585,000 • 4 bed • 2 bath • 2701 ft²


















































































































































