Versatile two‑unit cottage with large garden, hill views and holiday‑let income potential.
Two linked cottages — front one‑bed holiday let, rear three‑bed family home
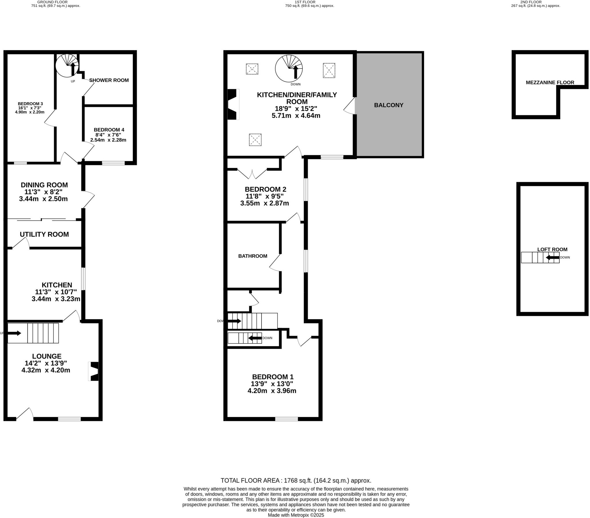
TOWNHEAD COTTAGE is a striking late‑Victorian semi‑detached cottage set in Harbottle village, offered as two interlinked units that currently generate holiday‑let income from the one‑bed cottage at the front. The rear house provides three bedrooms, generous vaulted living space, and a covered balcony with open hill views. Large, tiered gardens with a summer house and workshop extend the plot and amplify the rural outlook within the Northumberland dark‑skies area.
The property has clear investor and lifestyle potential: keep the front unit as a holiday let or re‑merge into a single family home. The rear section is comfortably appointed with underfloor heating in the shower room, a multifunctional main living room with exposed beams, and useful storage including a mezzanine and loft. Recent updates include a 4‑year‑old oil boiler and replaced mains electrics three years ago.
Buyers should note practical drawbacks that affect running costs and refurbishment scope. Heating is principally coal‑fired with oil central heating; stone walls are likely uninsulated; the EPC rating is E. The location is remote with on‑street parking only, and local area statistics show higher crime and area deprivation indicators. Viewing is recommended to appreciate the setting, garden size and the flexibility of two dwellings in one plot.
2 bedroom end of terrace house for sale in Harbottle, Morpeth, NE65 — £189,000 • 2 bed • 1 bath • 599 ft²
4 bedroom detached bungalow for sale in The Orchards, Harbottle, NE65 — £630,000 • 4 bed • 2 bath • 2092 ft²
4 bedroom bungalow for sale in Netherton, Morpeth, NE65 — £395,000 • 4 bed • 2 bath • 946 ft²
2 bedroom end of terrace house for sale in West End House, Harbottle, Morpeth, NE65 — £200,000 • 2 bed • 1 bath • 1069 ft²
6 bedroom detached house for sale in Wayside & Honeysuckle Cottages, Harbottle, NE65 — £375,000 • 6 bed • 3 bath • 2300 ft²
4 bedroom cottage for sale in Burnfoot Cottages, Netherton, Northumberland, NE65 7EY, NE65 — £395,000 • 4 bed • 2 bath • 1586 ft²


















































































































































