Chain-free freehold near Lancaster university and city amenities.
Four double bedrooms set up as an income-producing HMO
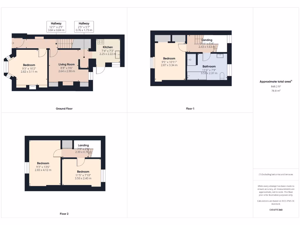
A ready-made HMO near Lancaster city centre, 29 Lune Street is a four double-bedroom mid-terrace built before 1900. Currently let to three students for 2024/25 at £120pppw (48 weeks), it produces a gross income of £17,280; with the fourth room let the gross income would be £23,040. Furniture and white goods are included; current gas safety and EICR certificates are in place.
The house is well presented for its type with bay windows, period stone frontage and double glazing installed post-2002. Accommodation spreads over three storeys plus cellar storage and a small rear yard. The property has proven letting history and suits an investor targeting student lets or parents seeking secure accommodation for a university student.
Buyers should note practical constraints: total floor area is small (circa 848 sq ft), there is a single bathroom, and the building’s stone walls are likely uninsulated. The area records high crime levels and is classed as very deprived, factors that can influence rents, insurance and management costs. Council Tax band A reduces owner costs when rooms are void.
This is a straightforward, chain-free freehold investment with scope to increase income by letting the fourth room or minor interior improvements. It will appeal to landlords experienced in student HMOs or investors comfortable managing property in a higher-need urban location.
4 bedroom terraced house for sale in St. Oswald Street, Lancaster, LA1 — £250,000 • 4 bed • 2 bath • 1288 ft²
4 bedroom terraced house for sale in Coulston Road, Lancaster, LA1 — £225,000 • 4 bed • 2 bath • 1217 ft²
5 bedroom terraced house for sale in St. Oswald Street, Lancaster, LA1 — £300,000 • 5 bed • 2 bath • 1059 ft²
4 bedroom terraced house for sale in 20 Gregson Road, Lancaster, LA1 — £175,000 • 4 bed • 1 bath • 828 ft²
7 bedroom end of terrace house for sale in Ashfield Avenue, Lancaster, LA1 — £420,000 • 7 bed • 2 bath • 1644 ft²
4 bedroom terraced house for sale in Railway Street, Lancaster, LA1 — £215,000 • 4 bed • 1 bath • 796 ft²






















































































