Move-in ready three-bedroom with summer room and workshop.
Three generous bedrooms with good natural light
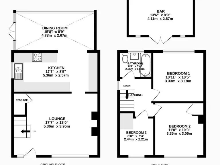
Set on a generous corner plot, this extended three-bedroom semi-detached home offers practical, move-in ready family living. Ground-floor accommodation flows from a sitting room with a feature fireplace and multi-fuel stove into a large kitchen and impressive summer/dining room — ideal for everyday family life and informal entertaining. The property has been well maintained and benefits from modern central heating and security lighting.
Outside, the rear garden is designed for low-maintenance entertaining with a purpose-built timber garden bar, paved seating area with external power and lighting, and security cameras. A wide decorative driveway provides ample off-street parking and double gates give access to a side driveway, artificial lawn and timber workshop — useful for hobbies or extra storage.
Upstairs are three generous bedrooms served by a single family bathroom. The layout suits families, professionals or buyers seeking substantial outdoor space without heavy maintenance. Local amenities and several well-regarded schools are within easy reach, and transport links are convenient for commuting.
Notable drawbacks are plain and factual: there is only one bathroom which may be limiting for larger households, and the artificial lawn may not suit buyers wanting natural turf. The garden bar, while a great social feature, has a small safety caveat noted by the current owners. Overall this is a well-presented, practical family home with strong entertaining and outdoor space potential.
3 bedroom semi-detached house for sale in Park hill, Armthorpe Lane, Barnby Dun, DN3 — £325,000 • 3 bed • 2 bath • 1475 ft²
3 bedroom semi-detached house for sale in Sledmere Road, Doncaster, DN5 — £180,000 • 3 bed • 1 bath • 840 ft²
3 bedroom semi-detached house for sale in Hill Top Crescent, Wheatley Hills, Doncaster, DN2 — £170,000 • 3 bed • 1 bath • 948 ft²
3 bedroom terraced house for sale in Norfolk Road, Doncaster, South Yorkshire, DN4 — £160,000 • 3 bed • 1 bath • 911 ft²
3 bedroom semi-detached house for sale in Burgundy Road, Balby, DONCASTER, DN4 — £210,000 • 3 bed • 2 bath
4 bedroom semi-detached house for sale in Rowena Drive, Scawsby, Doncaster, DN5 — £249,995 • 4 bed • 2 bath • 1181 ft²














































































































































