Move-in ready period home with contemporary upgrades close to town.
Newly renovated interior with stylish kitchen and shower room
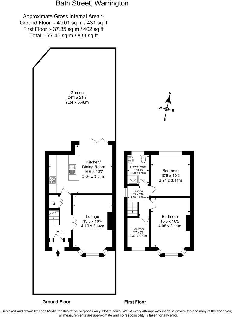
Three bedrooms, approximately 833 sq ft (moderately sized)
Off-street parking to the rear plus residents' parking nearby
Double glazing and mains gas central heating throughout
Short walk to town centre, shops, bars and two train stations
Leasehold tenure — very long lease remaining (check specifics)
Located in an area with higher crime rates and local deprivation
Single bathroom only; limited overall living space for larger families
This recently renovated three-bedroom semi-detached house blends period character with contemporary finishes. A light living room, modern kitchen with bifold doors, and a stylish shower room make it move-in ready for a small family or first-time buyer.
Practical details include double glazing, mains gas central heating, off-street parking to the rear and a modest front and rear garden. The property sits centrally in Warrington close to shops, bars, restaurants and two nearby railway stations, offering excellent transport links and fast broadband.
Buyers should note the property is leasehold (long lease remaining) and located in an area with higher crime levels and relative deprivation. The home has one bathroom and an average internal footprint (about 833 sq ft), so households needing more space or extensive outside areas may find it limited.
3 bedroom semi-detached house for sale in Amelia Street, WARRINGTON, Cheshire, WA2 — £230,000 • 3 bed • 1 bath • 948 ft²
3 bedroom semi-detached house for sale in Rylands Drive, Warrington, Cheshire, WA2 — £255,000 • 3 bed • 2 bath • 1044 ft²
3 bedroom terraced house for sale in Wilderspool Causeway, Warrington, Cheshire, WA4 — £225,000 • 3 bed • 1 bath • 1216 ft²
3 bedroom end of terrace house for sale in Regency Square, Warrington, WA5 — £240,000 • 3 bed • 2 bath • 722 ft²
3 bedroom semi-detached house for sale in Hillberry Crescent, Warrington, WA4 — £290,000 • 3 bed • 2 bath • 878 ft²
3 bedroom terraced house for sale in Holywell Drive, WARRINGTON, Cheshire, WA1 — £290,000 • 3 bed • 2 bath • 1370 ft²






















































































































































































