Chain-free two-bed bungalow with large garden and strong refurbishment potential.
Extended detached bungalow on large plot
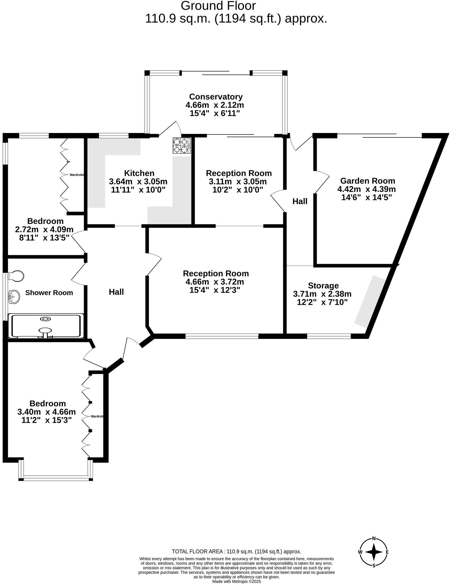
A spacious extended two-bedroom detached bungalow on a large plot, offered chain free and ready for renovation. The single-storey layout includes two reception rooms, a conservatory/lean-to and flexible garden-room/storage spaces that suit family living or a downsizing couple seeking ground-floor convenience. The property benefits from off-street parking, double glazing and mains gas central heating.
This is a renovation project throughout: fixtures, finishes and some ceilings are worn or cracked and the home requires updating to modern standards. The solid brick walls are likely uninsulated and the property will benefit from energy and cosmetic improvements — an opportunity to add value for buyers prepared to invest.
Set in a quiet cul-de-sac with easy access to local shops, buses, the A3 and several well-regarded schools, the home blends a peaceful residential setting with convenient commuting links. Offered freehold with no forward chain, it suits buyers looking for a project to personalise or investors seeking refurbishment potential.
2 bedroom bungalow for sale in Grange Road, Chessington, KT9 — £600,000 • 2 bed • 2 bath • 1116 ft²
3 bedroom semi-detached bungalow for sale in Whitehall Crescent, Chessington, KT9 — £525,000 • 3 bed • 1 bath • 969 ft²
2 bedroom bungalow for sale in Riverview Road, Epsom, Surrey, KT19 — £540,000 • 2 bed • 2 bath • 1123 ft²
2 bedroom bungalow for sale in Tolworth Road, Surbiton, KT6 — £545,000 • 2 bed • 1 bath • 1159 ft²
2 bedroom bungalow for sale in Wavendene Avenue, Egham, Surrey, TW20 — £500,000 • 2 bed • 1 bath • 1191 ft²
3 bedroom detached bungalow for sale in Warenne Road, Fetcham, KT22 — £599,950 • 3 bed • 1 bath • 1260 ft²






































