SE10 9FQ - 3 bedroom flat for sale in Dowells Street, Greenwich, Londo…

View on Property Piper

3 bedroom flat for sale in Dowells Street, Greenwich, London, SE10

Summary - 71 ADMIRALS TOWER, 8 DOWELLS STREET, GREENWICH SE10 9FQ

3 bed 2 bath Flat

Spacious 3-bed flat with balcony, near Cutty Sark and Greenwich Park.
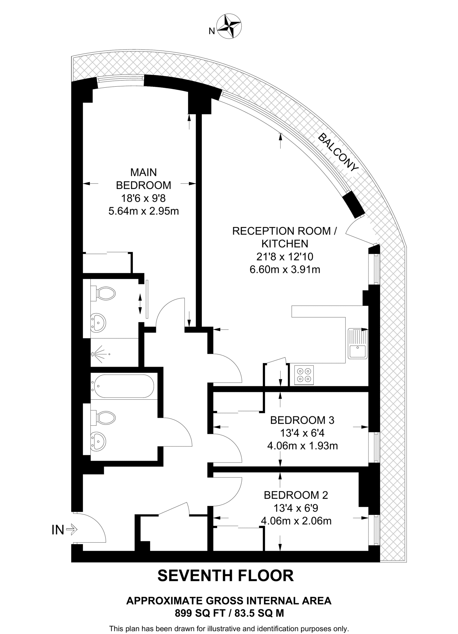
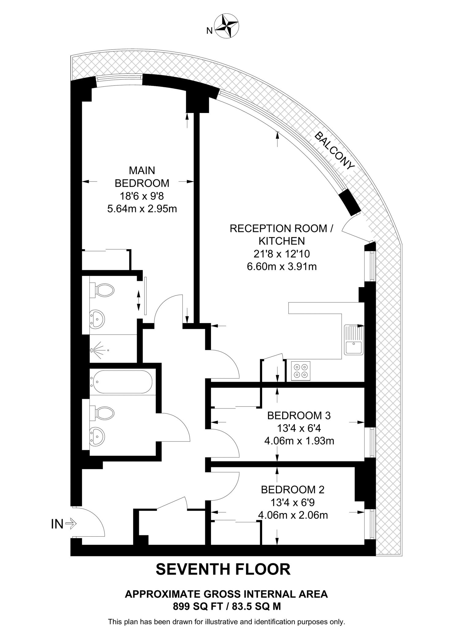
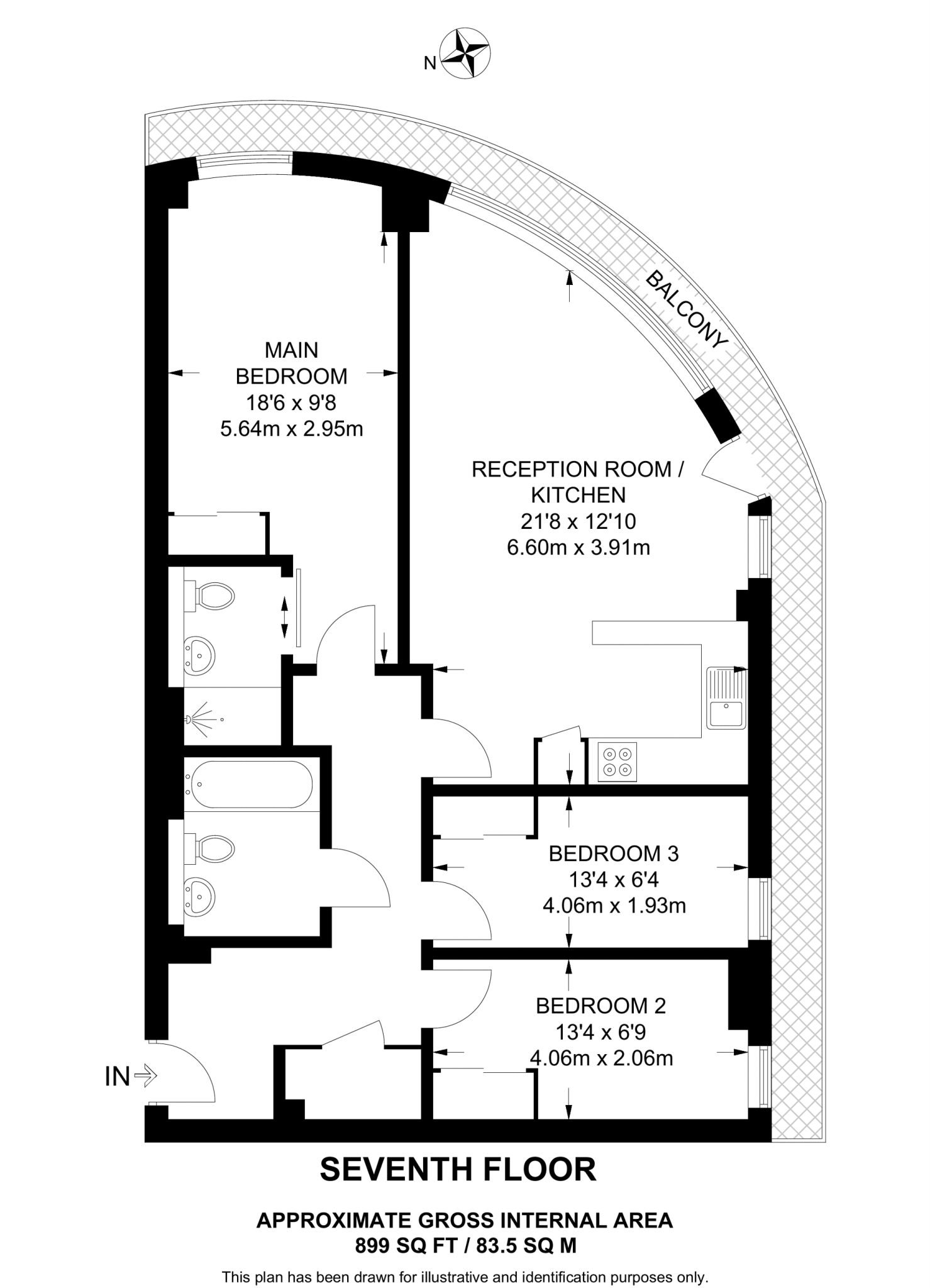
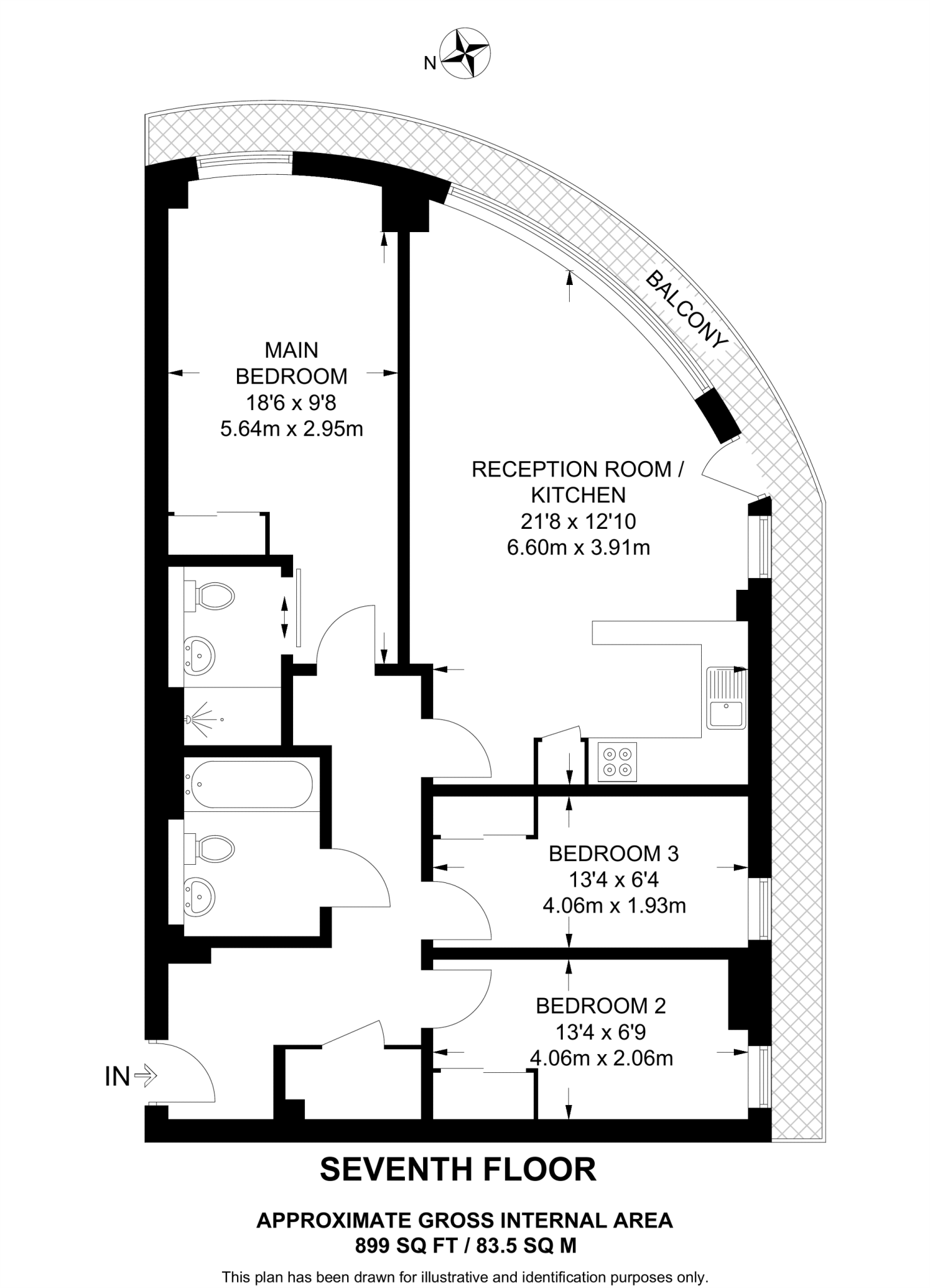
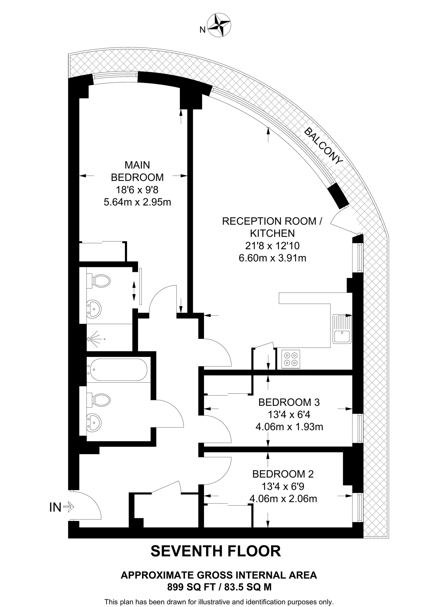
7th floor flat with private balcony and urban views
Set on the 7th floor, this stylish three-bedroom apartment offers bright, open-plan living and a private balcony with urban views. The main bedroom has an en‑suite shower room and there are two further well-presented bedrooms — a sensible layout for families or professionals sharing. At about 899 sq ft, the apartment feels roomy for a modern city flat.

The kitchen is contemporary and integrated, and the building benefits from double glazing and community mains gas heating. Transport links are strong — Cutty Sark DLR and local shops are within easy walking distance — and Greenwich Park is a short stroll away for green space and weekend relaxation. Fast broadband and nearby amenities support a convenient, connected lifestyle.

Important practical points: the property is leasehold with a very long lease (981 years) but comes with a higher-than-average service charge (£5,000 p.a.) and an average ground rent (£350). Heating is via a community scheme, which can limit individual control and may affect costs. The immediate area is inner-city cosmopolitan with average crime levels and has pockets of deprivation; buyers should factor local context into their decision.

This apartment suits families or professionals seeking a modern, low‑maintenance home close to central Greenwich attractions. It offers comfortable living and clear potential, but budget for annual service costs and communal heating arrangements.

Property Details

Image Descriptions

Floorplan Description

Rooms

Textual Property Features

Target Audience

AI Tags

Detected Visual Features

EPC Details

Nearby Schools

Nearest Bars And Restaurants

,,,,}

Nearest General Shops

,,}

Nearest Grocery shops

,,}

Nearest Supermarkets

,,}

Nearest Religious buildings

,,}

Nearest Medical buildings

,,,}

Nearest Airports

,,}

Nearest Leisure Facilities

,,,,}

Nearest Tourist attractions

,,}

Nearest Train stations

,,,,}

Nearest Bus stations and stops

,,,,}

Nearest Hotels

,,}

Tags

Local Market Stats

AirBnB Data

Similar Properties

Meta

High Res Images

Compatible Images

Low res Images

Thumbnails

Raw Images

High Res Floorplan Images

Compatible Floorplan Images

Low res Floorplan Images

FloorplanImages Thumbnail

Raw Floorplan Images