Spacious four-bedroom family home with garage, garden and NHBC remainder.
Built by Redrow in 2022, Heritage range specification
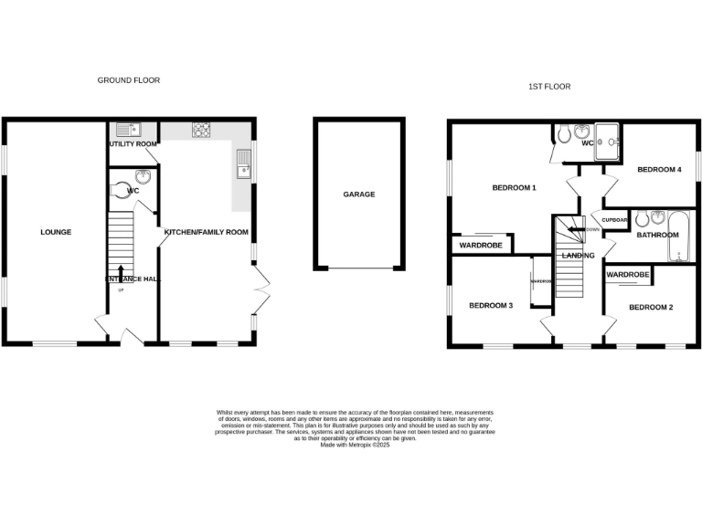
This nearly new four-bedroom detached house sits in a sought-after Berewood pocket, built by Redrow in 2022 and finished to a modern Heritage specification. The layout suits family life with a generous kitchen/family room, separate lounge, utility, cloakroom and an ensuite principal bedroom. A garage and driveway provide convenient parking, while a mature, landscaped garden offers outdoor space for children and pets.
Practical benefits include gas central heating with radiators, double glazing, an EPC B rating and the remainder of the NHBC guarantee, reducing short-term maintenance concerns. Broadband speeds are fast and mobile signal is excellent, useful for home working and streaming. Local schooling is well regarded with several 'Good' primary and secondary options nearby.
Potential buyers should note the property’s council tax band is above average for the area, which will affect running costs. The home is average in overall size for its class, with two bathrooms serving four bedrooms. There is clear scope to personalise certain finishes to taste, though major works are unlikely given the recent construction and warranty cover.
This house will suit families seeking a modern, low-maintenance home in a quiet, semi-rural development with easy amenities. Internal viewing is recommended to appreciate the flexible layout and outdoor space firsthand.
4 bedroom detached house for sale in Churchill Close, Waterlooville, Hampshire, PO7 — £540,000 • 4 bed • 2 bath • 1411 ft²
4 bedroom detached house for sale in Ainsworth Road, Berewood, PO7 — £475,000 • 4 bed • 2 bath • 883 ft²
4 bedroom detached house for sale in Berewood,
Waterlooville,
PO7 3EL, PO7 — £560,000 • 4 bed • 1 bath • 1098 ft²
3 bedroom detached house for sale in Ainsworth Road, Berewood, PO7 — £425,000 • 3 bed • 2 bath • 1066 ft²
4 bedroom detached house for sale in Berewood,
Waterlooville,
PO7 3EL, PO7 — £510,000 • 4 bed • 1 bath • 914 ft²
4 bedroom detached house for sale in Pakenham Road, Waterlooville, Hampshire, PO7 — £475,000 • 4 bed • 2 bath • 943 ft²














































































