**Standout Features:**
- Fully let to students for 2025/2026 with a rental income of over £22,000 per annum
- Central location, close to Mutley Plain and walking distance to the university and city center
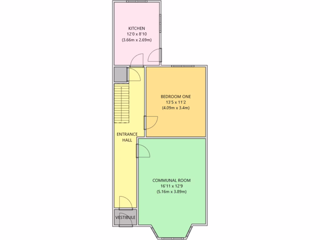
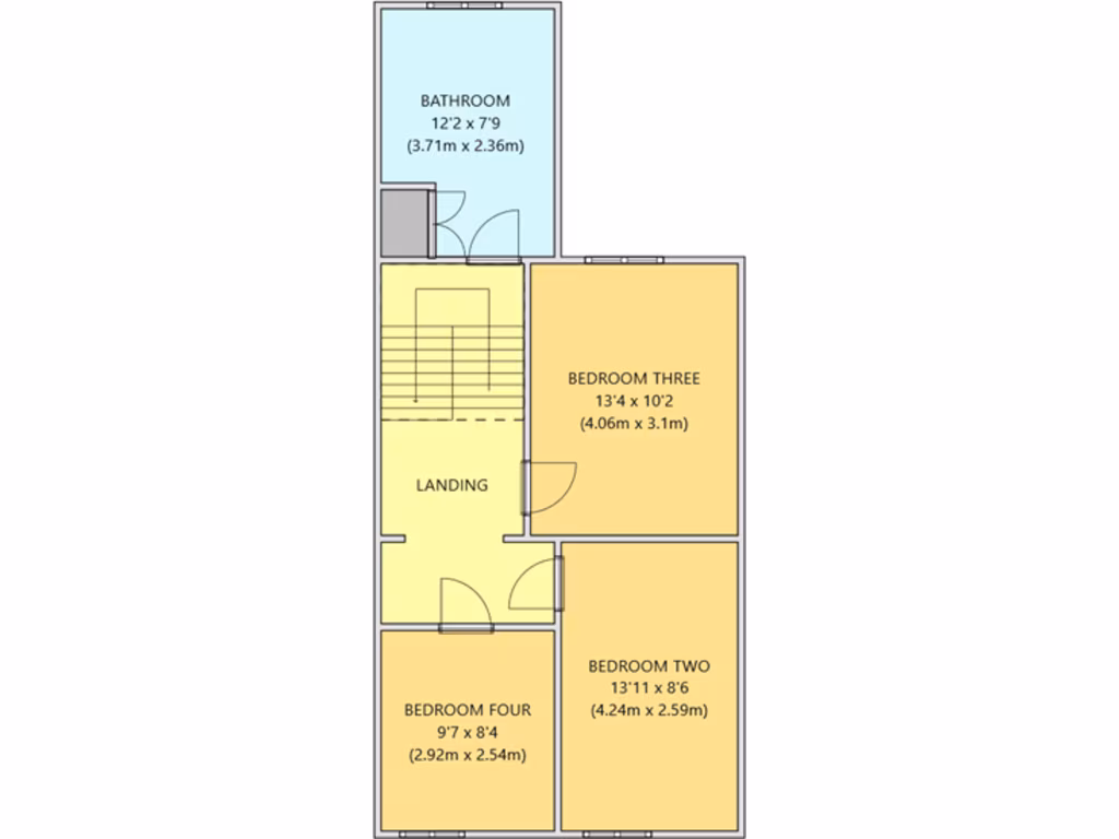
- Four spacious double bedrooms and a generously sized bathroom
- Victorian terraced house with original features, high ceilings, and natural light
- Freehold tenure with a small garden
- EPC rating: D
- Affordable council tax
**Summary:**
This charming Victorian terraced house presents an excellent investment opportunity, fully occupied by students for the upcoming academic year, ensuring a robust annual rental income exceeding £22,000. Boasting four generous double bedrooms and a sizeable modern bathroom, this property is designed for comfort, making it appealing for tenants or families. The spacious living room features a Victorian tiled fireplace and large bay windows, enhancing its inviting ambience.
Located in a vibrant student neighborhood just off Mutley Plain, this home offers the convenience of city living, with easy access to local amenities, including shops, eateries, and public transport. While the property has a solid rental history, it may present opportunities for cosmetic updates or enhancements, particularly considering its original features and potential for further development. Given its prime location and lucrative rental potential, this property is not expected to stay on the market long—seize the chance to secure your stake in this thriving community!
5 bedroom terraced house for sale in Headland Park, North Hill , Plymouth. 5 bed FULLY let STUDENT property , PL4 — £285,000 • 5 bed • 2 bath • 1585 ft²
4 bedroom maisonette for sale in Clifton Place, Greenbank. 4 bed INVESTMENT property., PL4 — £200,000 • 4 bed • 2 bath • 1119 ft²
5 bedroom terraced house for sale in Furzehill Road, Mutley, Plymouth. 5 bed FULLY LET Student investment , PL4 — £285,000 • 5 bed • 2 bath • 1205 ft²
5 bedroom terraced house for sale in Oxford Terrace, City Centre.5 bed Fully Let student HMO., PL1 — £280,000 • 5 bed • 2 bath • 1378 ft²
4 bedroom terraced house for sale in Southern Terrace, Mutley, PL4 — £210,000 • 4 bed • 1 bath • 1184 ft²
6 bedroom terraced house for sale in Cheltenham Place, Greenbank.FULLY LET 2 x 3 bed flats. STUDENT investment property, PL4 — £340,000 • 6 bed • 2 bath • 862 ft²














































