Traditional 3-bed home with large garden, garage and great commuter links.
Large established rear garden with mature planting
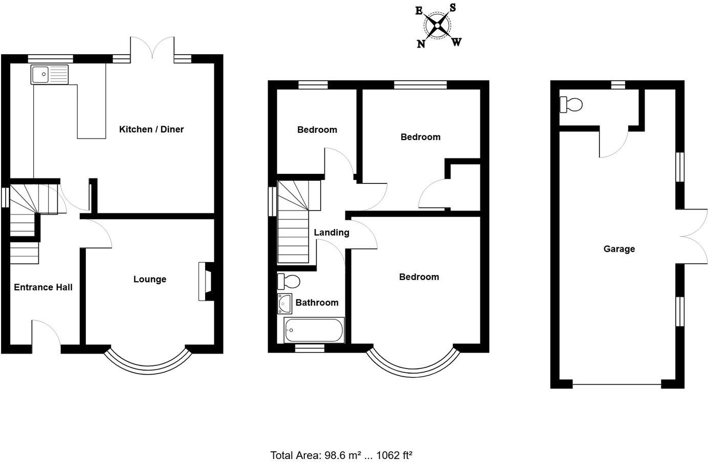
Set on the popular Crofts development, this traditional three-bedroom semi-detached home offers comfortable family living and a notably large, established garden. The ground floor has a cosy bay-front sitting room with an open fire, and a generous kitchen/dining room with breakfast bar and double doors out to the patio — ideal for family meals and entertaining. Off-street parking for three cars, a detached garage with WC and an oak-framed barn provide excellent storage and scope to reconfigure space (subject to planning).
The property is in good, traditional condition with double glazing and gas central heating throughout, and an EPC rating of C. Upstairs are three bedrooms and a single family bathroom — practical for everyday family use but with no en-suite. The house dates from the 1950s and benefits from solid mid-century construction while offering clear opportunities for cosmetic modernisation or a rear/side extension (planning required) to increase living space.
Location is a strong selling point: within walking distance of local shops and schools, very low local crime, fast broadband and excellent mobile signal, plus easy access to the A12/A14 and Ipswich town centre and rail links. Overall this is a family-focused property with good parking, flexible outbuildings and a large private garden, suited to buyers wanting a well-located home they can personalise over time.
3 bedroom semi-detached house for sale in Rosecroft Road, Ipswich, Suffolk, IP1 — £290,000 • 3 bed • 1 bath • 810 ft²
3 bedroom semi-detached house for sale in Ashcroft Road, Ipswich, IP1 — £290,000 • 3 bed • 1 bath • 904 ft²
3 bedroom semi-detached house for sale in Birchcroft Road, Ipswich, IP1 — £280,000 • 3 bed • 1 bath • 880 ft²
3 bedroom semi-detached house for sale in Fircroft Road, Ipswich, Suffolk, IP1 — £290,000 • 3 bed • 1 bath • 1026 ft²
3 bedroom semi-detached house for sale in Beechcroft Road, Ipswich, Suffolk, IP1 — £250,000 • 3 bed • 1 bath • 1034 ft²
3 bedroom semi-detached house for sale in Fircroft Road, Ipswich, IP1 — £280,000 • 3 bed • 1 bath • 762 ft²






































































