**Standout Features:**
- Spacious modern detached house with 5 bedrooms and 4 bathrooms (2 en-suites)
- Open plan kitchen/dining room with direct garden access
- Scenic lakeside views and access to a large private garden
- Driveway and a garage for ample parking
- Located in a desirable, affluent area with low crime rates and good local amenities
**Potential Concerns:**
- Council tax is relatively high (Band G)
- Maintenance for a larger home may require additional attention
**Summary Description:**
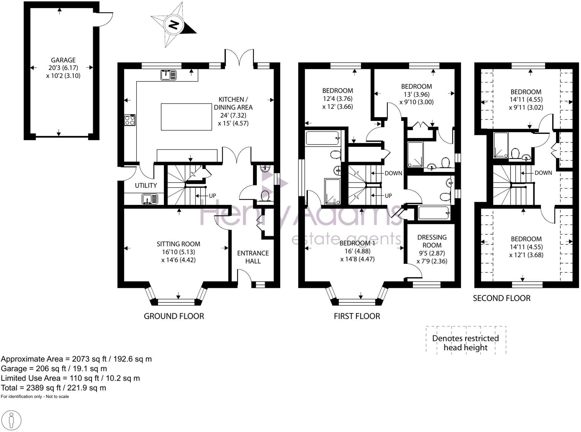
Discover the charm of this spacious modern detached home nestled in the highly sought-after Shopwyke Lakes development on the outskirts of Chichester. With over 2,073 sq. ft. of thoughtfully laid-out space across three levels, this property caters perfectly to families and those who enjoy entertaining. The open-plan kitchen and dining area is a standout feature, flooding with natural light and offering easy access to the landscaped rear garden, ideal for outdoor gatherings and leisure activities.
The first floor hosts the principal suite, complete with a large dressing room and luxurious en-suite, while an additional en-suite bedroom and another bathroom enhance family convenience. Two more spacious bedrooms and a shower room occupy the top floor, showcasing beautiful views of the lake and the South Downs.
Outside, a well-manicured garden featuring a patio area and raised flower beds complements the property's aesthetic appeal. With a driveway leading to a separate garage, this home offers all the potential for comfortable family living with room for future enhancements or personal touches. The community atmosphere, excellent broadband speeds, and high-speed mobile connectivity, combined with proximity to reputable schools, make this home a valuable investment. Don’t miss out on this unique opportunity to live by the lakeside, where comfort meets modern living!











































































