Chain-free two-bed mid-terrace; ideal first-time buy or investor refurbishment project..
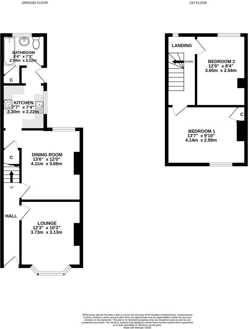
Two reception rooms and practical galley kitchen
Small rear yard and tiny front forecourt
Two bedrooms; compact but functional room sizes
Requires renovation — carpets, paintwork, repairs needed
Solid brick walls likely uninsulated (energy upgrade opportunity)
Freehold, chain-free sale; very low council tax band A
Low flood risk, low crime; excellent mobile signal, fast broadband
Small plot and inner-urban location may limit parking options
This two-bedroom mid-terrace on Clumber Street offers straightforward, affordable city living just minutes from Thoresby Primary School and Princes Avenue. The house has two reception rooms and a practical galley kitchen, making it a flexible layout for a small family or buy-to-let investor.
The property requires renovation and cosmetic updating: carpets, paintwork and some repairs are needed, and the solid brick walls are likely uninsulated. Heating is mains gas with a boiler and radiators; double glazing is present but install date is unknown. The plot is small with a modest rear yard and a small front forecourt.
Offered chain-free on freehold tenure with a very low council tax band, this home suits a first-time buyer comfortable with gradual improvement or an investor seeking a low-entry refurb project. Flooding and crime risk are low, mobile signal is excellent and broadband speeds are fast, supporting modern living and lettability.
Modest refurbishment and basic insulation/upgrades could deliver improved comfort and rental or resale value. Buyers should factor in renovation costs and consider a survey to confirm structural and services condition before committing.
2 bedroom terraced house for sale in Clumber Street, Hull, HU5 3RN, HU5 — £100,000 • 2 bed • 1 bath • 784 ft²
2 bedroom terraced house for sale in Thoresby Street, Hull, HU5 — £110,000 • 2 bed • 1 bath • 711 ft²
2 bedroom terraced house for sale in Cobden Street, Hull, HU3 — £75,000 • 2 bed • 1 bath • 667 ft²
2 bedroom end of terrace house for sale in Acland Street, HULL, HU3 — £100,000 • 2 bed • 1 bath • 915 ft²
2 bedroom terraced house for sale in Worthing Street, Hull, HU5 — £100,000 • 2 bed • 1 bath • 879 ft²
2 bedroom terraced house for sale in Wharncliffe Street, Hull, HU5 — £85,000 • 2 bed • 1 bath • 567 ft²






























































