**Standout Features:**
- New build mixed-use development
- Expansive 1,851 sq ft ground-floor retail space
- Impressive 13ft floor-to-ceiling height and large windows
- Private entrance and rear access
- Versatile Use Class E suitable for various functions
- 999-year virtual freehold tenure
- Located within walking distance of Seven Sisters Station
**Potential Concerns:**
- Offered in shell & core condition, requiring fit-out
- High crime rate in the local area
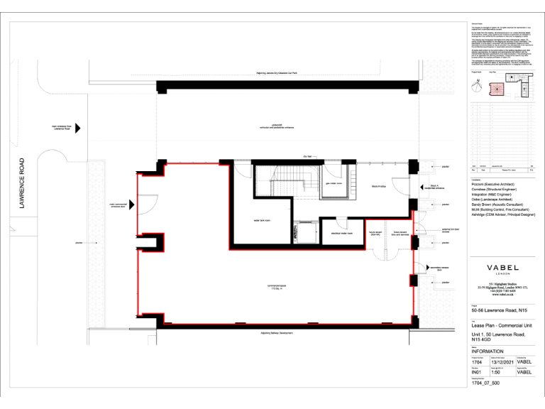
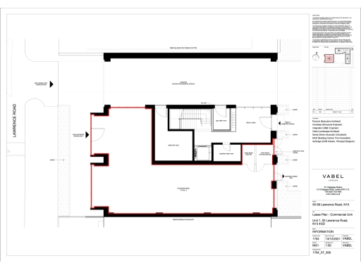
Nestled in the vibrant heart of Seven Sisters, this modern retail property at 50-52 Lawrence Road offers a unique opportunity for investors and businesses looking to establish a footprint in a bustling, culturally diverse area. The expansive 1,851 sq ft shell & core space features a striking 13ft ceiling height, allowing for an inviting and functional layout that can adapt to various uses under Class E—ranging from retail and office to medical and leisure.
Enjoy easy access to the surrounding amenities and lush landscapes, with the added benefit of a private entrance that enhances accessibility and visibility. The property benefits from exceptional transport links, just a short stroll from Seven Sisters Station, providing seamless connectivity to the rest of London. While the shell & core condition presents a blank canvas for customization, it's essential to consider local crime rates during your investment evaluation. This versatile, well-placed property won't last long, making it an attractive option for those looking to capitalize on the area's growth and vibrancy.
Commercial property for sale in Unit A&B, 67 Lawrence Road, Seven Sisters, N15 4EY, N15 — £475,000 • 1 bed • 1 bath • 1302 ft²
Commercial property for sale in Unit D&E, 67 Lawrence Road, Seven Sisters, N15 4EY, N15 — £515,000 • 1 bed • 1 bath • 1332 ft²
High street retail property for sale in Seven Sisters Road, London, N7 — £1,000,000 • 1 bed • 1 bath • 3594 ft²
High street retail property for sale in 95 Seven Sisters Road and 165 & 167 Hornsey Road, London N7 6RA, N7 — £1,200,000 • 1 bed • 1 bath • 3163 ft²
High street retail property for sale in 1 Market Road, Islington, N7 9PW, N7 — £390,000 • 1 bed • 1 bath • 700 ft²
High street retail property for sale in 541 Green Lanes, London, N8 — £450,000 • 1 bed • 1 bath • 525 ft²






















































