Spacious character home with parking and communal garden near Stamford.
Grade II listed former maltings conversion with original stone character
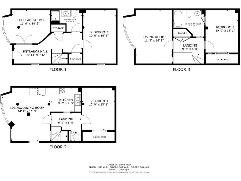
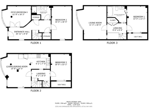
Set within an exclusive courtyard in Ketton, this Grade II listed former maltings conversion combines original stone character with contemporary interiors over three floors. The property offers versatile space — three double bedrooms plus an adaptable fourth room — and generous, light-filled living areas suited to family life or professional sharers.
Practical strengths include allocated parking for two (one covered), a communal garden, and a full service package covering external maintenance and buildings insurance (service charge currently £1,920 pa). The layout gives separation between living and sleeping areas, with a principal suite and en‑suite on the top floor for privacy and a ground-floor room ideal for a home office.
Important considerations: the building’s Grade II listed status will restrict external and many internal alterations and could complicate retrofit work; stone walls are assumed uninsulated and the property sits on a small plot with shared outside space. Buyers should review the attached material information disclosures and factor the annual service charge into ownership costs.
Overall this is a substantial, characterful home for buyers seeking a blend of period features and contemporary finish in a quiet village setting with easy access to Stamford and the A1. It will particularly suit families or professionals who value low-crime, affluent surroundings and on-site parking, but who accept listed‑building constraints and communal management arrangements.
4 bedroom detached house for sale in Aldgate, Ketton, Stamford, Rutland, PE9 — £925,000 • 4 bed • 2 bath • 2116 ft²
1 bedroom link detached house for sale in The Dovecote, Ketton,, PE9 — £295,000 • 1 bed • 1 bath • 634 ft²
4 bedroom detached house for sale in Kelthorpe Close, Ketton, Stamford, PE9 — £625,000 • 4 bed • 3 bath • 1983 ft²
6 bedroom detached house for sale in The Long Barn Mews, Ketton, Stamford, Lincolnshire, PE9 — £900,000 • 6 bed • 3 bath • 2950 ft²
3 bedroom detached house for sale in High Street, Ketton, PE9 — £600,000 • 3 bed • 2 bath • 1651 ft²
2 bedroom link detached house for sale in Aldgate, Ketton, PE9 — £450,000 • 2 bed • 2 bath • 1464 ft²






















































































