Large private garden, garage and excellent local schools for family living.
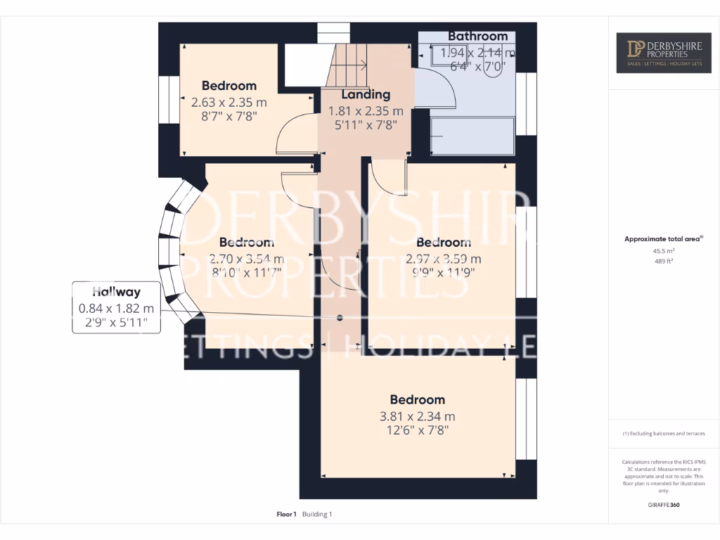
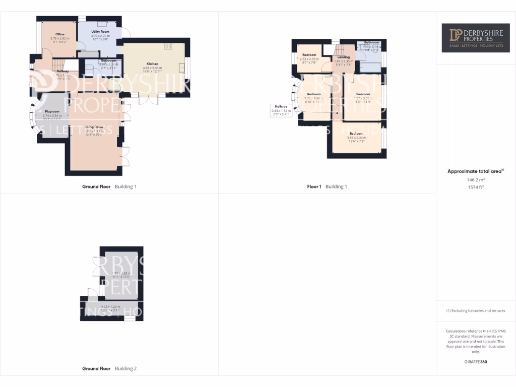
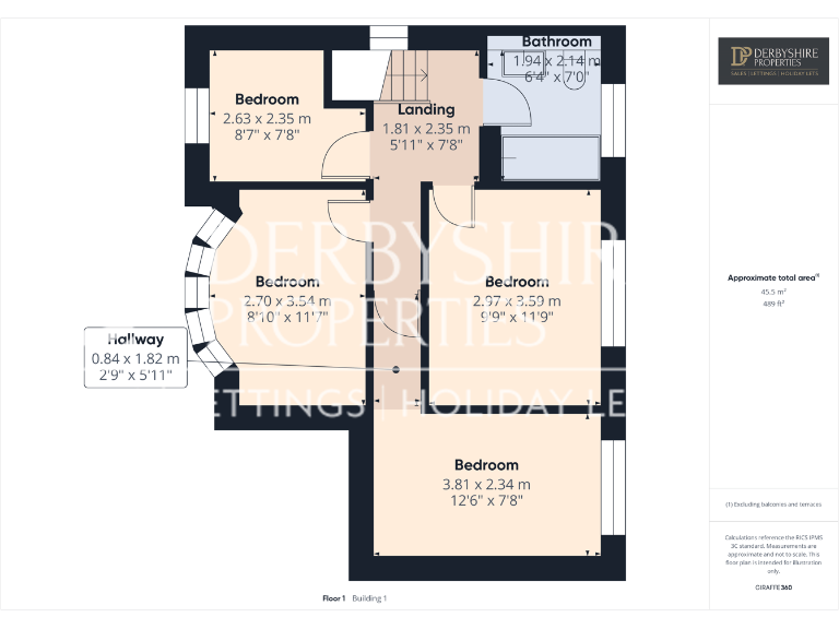
Extended detached family home with four bedrooms
This extended four-bedroom detached home sits at the end of a quiet cul-de-sac in Allestree, arranged for comfortable family living across generous reception space and a modern open-plan layout. Recent renovations deliver contemporary bathroom and shower rooms plus upgraded fixtures, making the house ready to occupy without major immediate works.
Set on a large private plot, the rear garden and outbuilding create practical outdoor space for children and entertaining; a driveway and single garage provide secure parking. The location is a key draw — highly regarded schools, nearby sports and leisure facilities, and easy road links make this especially suitable for growing families.
Buyers should note the house dates from the 1930s and has solid brick walls with assumed lack of cavity insulation, and its double glazing was installed before 2002. Combined with Council Tax band E, these factors may mean slightly higher running costs than modern builds. The property, however, benefits from mains gas heating via boiler and radiators and is in very low-crime surroundings.
Overall this is a thoughtfully extended family home offering immediate comfort, outdoor space and strong school access, with scope to improve energy performance in future renovations.
4 bedroom detached house for sale in Ford Lane, Allestree, Derby, DE22 — £595,000 • 4 bed • 3 bath • 1620 ft²
4 bedroom detached house for sale in Nether Park Drive, Allestree, Derby, DE22 — £575,000 • 4 bed • 2 bath • 1800 ft²
4 bedroom detached house for sale in Sherroside Close, Allestree, Derby, DE22 — £550,000 • 4 bed • 2 bath • 1671 ft²
4 bedroom detached house for sale in Quarndon View, Allestree, Derby, DE22 — £615,000 • 4 bed • 1 bath • 1547 ft²
4 bedroom detached house for sale in Otterburn Drive, Allestree, Derby, DE22 — £475,000 • 4 bed • 2 bath • 1455 ft²
4 bedroom detached house for sale in Woodlands Road, Allestree, DE22 — £600,000 • 4 bed • 3 bath • 4206 ft²










































































































































































