Low‑maintenance garden and nearby garage — ideal starter home for commuters.
Three bedrooms with practical, family-friendly layout
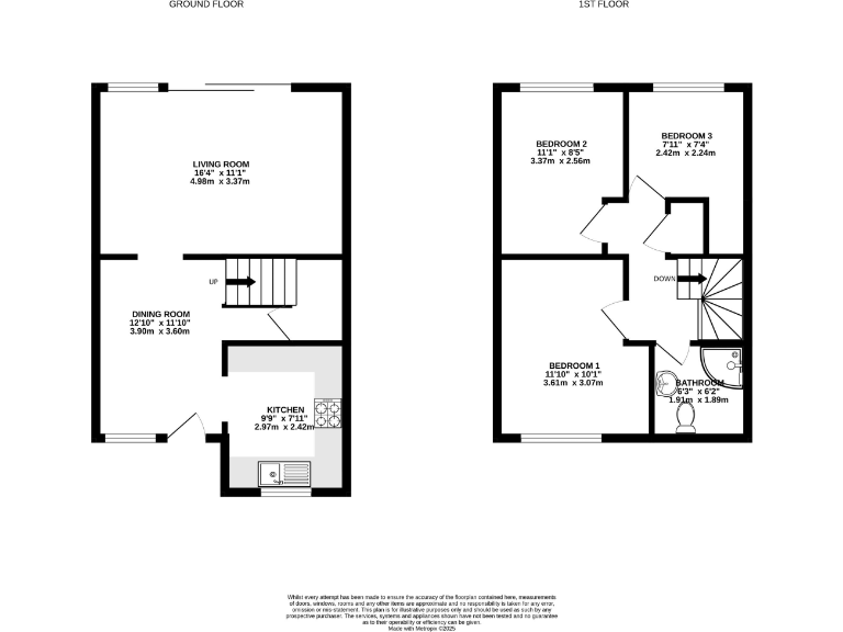
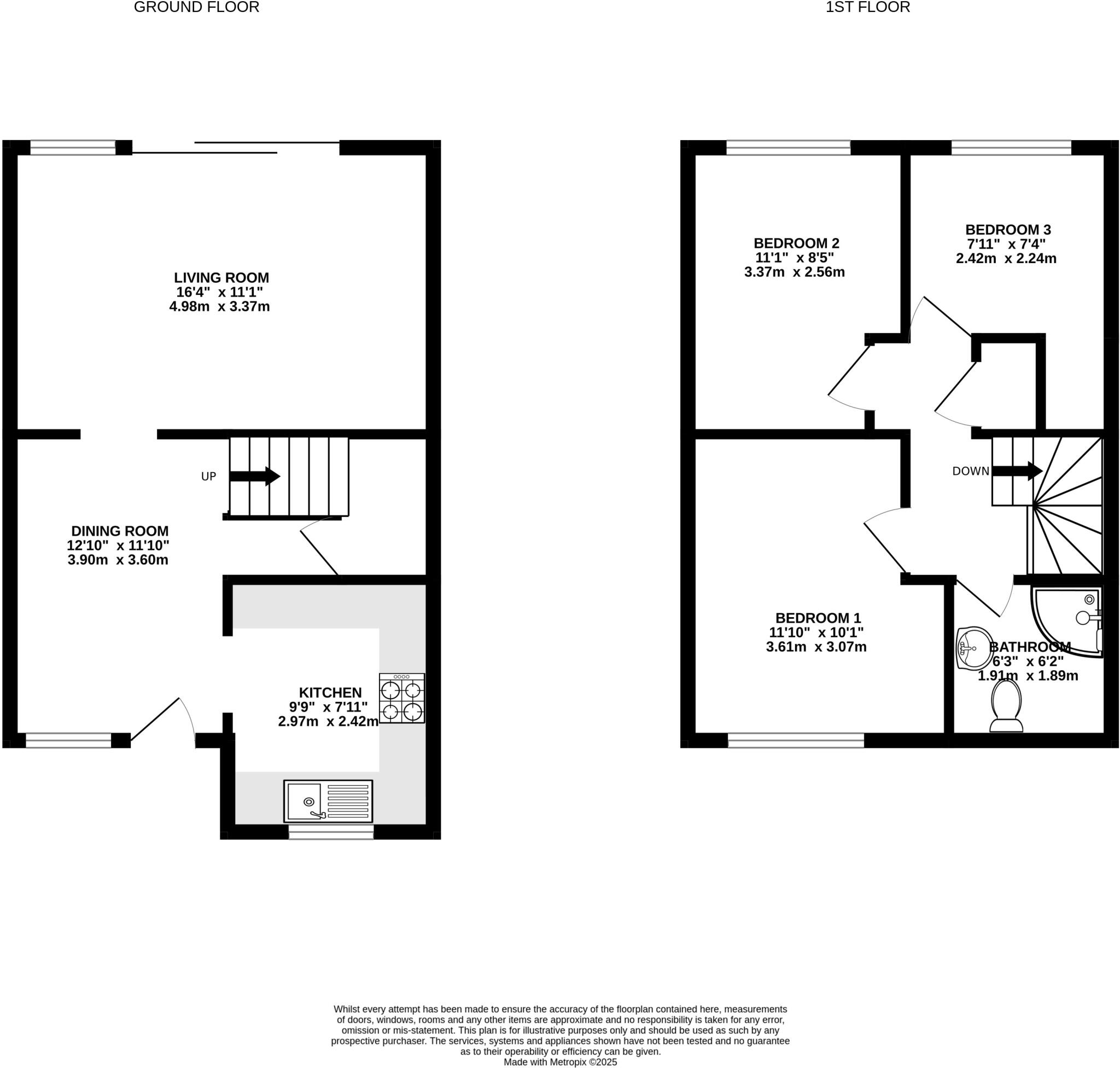
This tidy three-bedroom mid-terraced house in Foxley Close offers an accessible entry into the local market. The ground floor has a separate dining room and a bright living room that opens to a low‑maintenance landscaped rear garden with artificial lawn and smart patio — ideal for easy upkeep and alfresco dining.
Upstairs are three well-proportioned bedrooms served by a single family bathroom. Practical features include double glazing, mains gas central heating with a boiler and radiators, and a garage in a nearby block for vehicle storage. Broadband and mobile signal are strong, and the area scores highly for low crime and affluence.
Notable negatives are the relatively small overall footprint (approximately 719 sq ft) and the single bathroom, which may feel tight for larger families. The EPC rating is D (64), so there is scope to reduce running costs with energy improvements. The property is freehold and built in the late 1960s–1970s, reflecting a conventional mid‑terrace construction.
Positioned within easy reach of Blackwater station, local shops and several well-rated primary schools, the home suits first-time buyers or those seeking a manageable, commuter-friendly base. The accommodation is presented neutrally and ready for updating to personalise the space and improve energy efficiency.
3 bedroom terraced house for sale in Foxley Close, Blackwater, Camberley, Hampshire, GU17 — £350,000 • 3 bed • 1 bath • 760 ft²
3 bedroom terraced house for sale in Foxley Close, Blackwater, GU17 — £350,000 • 3 bed • 1 bath • 789 ft²
3 bedroom terraced house for sale in Quebec Gardens, Blackwater, GU17 — £395,000 • 3 bed • 1 bath • 885 ft²
3 bedroom terraced house for sale in The Glebe, Blackwater, Camberley, GU17 — £400,000 • 3 bed • 1 bath • 993 ft²
3 bedroom end of terrace house for sale in Beaulieu Gardens, Blackwater, Camberley, Hampshire, GU17 — £425,000 • 3 bed • 1 bath • 877 ft²
3 bedroom terraced house for sale in Romsey Close, Blackwater, Camberley, Hampshire, GU17 — £400,000 • 3 bed • 1 bath • 1004 ft²






















































