Ideal for professionals seeking a low-maintenance base near transport and riverside amenities.
Convenient riverside location near Canary Wharf transport and amenities
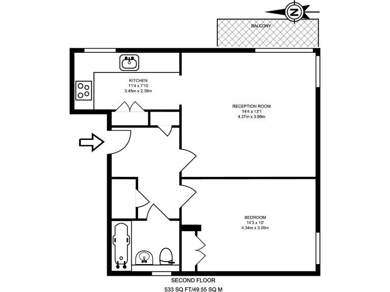
Second-floor flat with private balcony and good natural light
Separate fully fitted kitchen with built-in appliances
Good-sized bedroom with fitted wardrobe
Underground garage parking and concierge service included
Long lease (975 years) — strong tenure position
Leasehold with service charge approx £3,000 pa and ground rent £250 pa
Built 2003–2006 with double glazing and gas central heating
Bright one-bedroom flat in a quiet modern development, set a short walk from the Canary Wharf complex and riverside amenities. The reception room opens onto a private balcony, bringing light into a practical layout that suits a professional or first-time buyer seeking a low-maintenance city base.
The accommodation includes a separate fully fitted kitchen, a good-sized bedroom with fitted wardrobe and a bathroom. Built between 2003–2006 with double glazing and gas central heating, the flat is comfortable and ready to move into without major works needed.
Residents benefit from communal facilities, concierge service and an underground garage space. The long lease (975 years) is a strong ownership feature; however, the property is leasehold and carries annual charges — a service charge of around £3,000 and ground rent of £250.
Practical considerations: the area is inner-city cosmopolitan with average crime and mobile/broadband connectivity is excellent. Flooding risk is very low. Buyers looking for a central one-bedroom with parking and building services will find clear value here, but factor ongoing service charges into running costs.
1 bedroom flat for sale in Moore House, E14, Docklands, London, E14 — £350,000 • 1 bed • 1 bath • 475 ft²
1 bedroom flat for sale in Cassilis Road, Isle Of Dogs, London, E14 — £360,000 • 1 bed • 1 bath • 505 ft²
1 bedroom flat for sale in Moore House, Canary Wharf, E14 — £340,000 • 1 bed • 1 bath • 491 ft²
2 bedroom flat for sale in Millharbour, Canary Wharf, London, E14 — £475,000 • 2 bed • 2 bath • 712 ft²
1 bedroom flat for sale in Limeharbour, London, E14 — £340,000 • 1 bed • 1 bath • 530 ft²
1 bedroom flat for sale in Deauville Close, Canary Wharf, London, E14 — £385,000 • 1 bed • 1 bath • 601 ft²


































































