Three-bedroom family home with park access, parking and outbuilding — scope to modernise.
Off-street parking to front driveway
Side extension with modern kitchen
Three reception rooms plus conservatory
Outbuilding suitable for office or gym
Direct side-gate access to Victoria Park
Single family bathroom only; no en-suite
Small rear garden and modest plot size
Property from 1967–75 — updating likely required
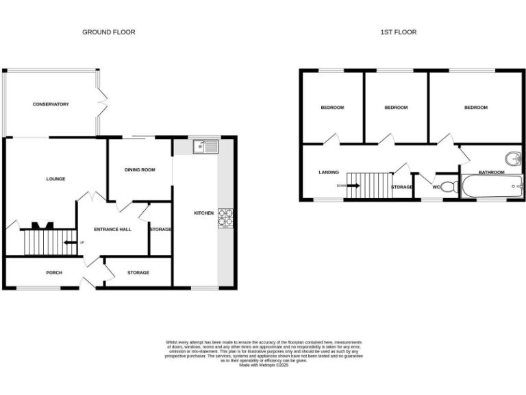
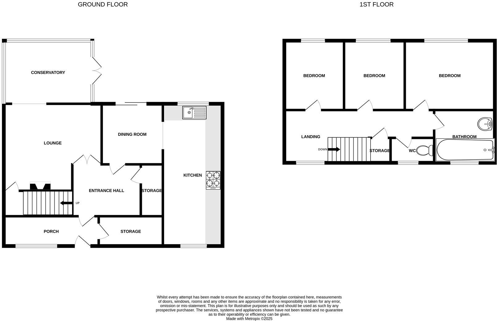
This extended three-bedroom end-of-terrace offers generous ground-floor living and direct access to Victoria Park — ideal for families who value outdoor space and flexible rooms. The side extension provides a modern kitchen and extra reception space, while a conservatory brings light into the rear living area. An outbuilding gives immediate scope for a home office, gym or hobby room.
Practical features include off-street parking, substantial ground-floor storage with scope to add a downstairs WC, double glazing and gas central heating. The house sits close to well-regarded primary schools and is around 1.3 miles from Laindon train station, making it suitable for commuting and family life. Broadband speeds are fast and mobile signal excellent.
Buyers should note material considerations: the house dates from the late 1960s–1970s so some updating may be required; cavity walls are filled and the double-glazing install date is unknown. There is a single bathroom and a relatively small rear garden/plot, and no detached garage is visible. The wider area is classed as deprived/hampered, which may affect long-term resale for some buyers.
Overall this is a practical, well-located family home with immediate usable space and clear potential to personalise. It will suit buyers seeking park-side living, extra home working space, and a property they can update over time.
3 bedroom semi-detached house for sale in Wimbourne, Basildon, SS15 — £290,000 • 3 bed • 1 bath • 591 ft²
3 bedroom semi-detached house for sale in New Century Road, Basildon, SS15 — £425,000 • 3 bed • 1 bath • 754 ft²
2 bedroom semi-detached house for sale in School Avenue, Laindon, Basildon, Essex, SS15 — £350,000 • 2 bed • 3 bath • 824 ft²
3 bedroom detached house for sale in New Century Road, Laindon, Basildon, Essex, SS15 — £550,000 • 3 bed • 2 bath • 1475 ft²
3 bedroom end of terrace house for sale in Kathleen Ferrier Crescent, Basildon, Essex, SS15 — £370,000 • 3 bed • 1 bath • 746 ft²
3 bedroom semi-detached house for sale in Great Knightleys, Basildon, Essex, SS15 — £375,000 • 3 bed • 2 bath • 1494 ft²










































































































