Large contemporary five-bed house with garden, garage and flexible living spaces.
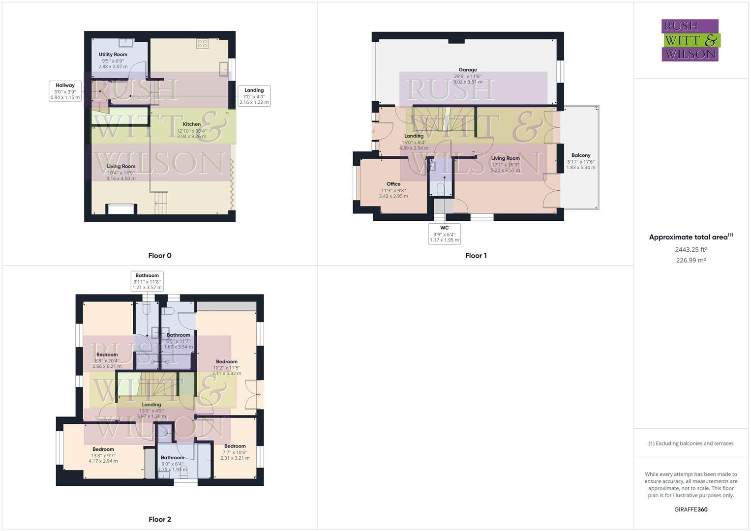
Five double bedrooms including ground-floor bedroom for accessibility or flexible use
30 ft open-plan kitchen/diner with bi-fold doors onto level rear garden
Integral tandem garage plus driveway; substantial parking for multiple cars
Built 2016 with contemporary finish, EPC B and modern heating system
Level rear garden and additional communal woodland beyond for privacy
Council Tax Band E — above-average running cost to budget for
Local area: ageing suburb, higher-than-average crime and some deprivation
Measurements given are approximate; internal inspection recommended
This substantial detached house offers generous, flexible living across three floors, designed for modern family life. Built in 2016, the property delivers bright contemporary spaces including a showpiece 30 ft open-plan kitchen/diner with bi-fold doors, separate living room with balcony access, and five double bedrooms — two with en-suite facilities. A level rear garden and a ‘secret’ communal woodland beyond create child-friendly outdoor space while the integral tandem garage and driveway provide plentiful parking.
The finish is contemporary throughout and the home benefits from practical modern refinements: gas central heating, a utility room, good broadband and an EPC B rating. One ground-floor double bedroom increases accessibility for multigenerational households or flexible use as an office or guest room. The property is freehold and has no reported flood risk.
Buyers should note several important local and cost factors. Council tax is above average (Band E). The wider area classifications indicate an ageing suburban population and higher-than-average local crime; prospective purchasers should satisfy themselves on community suitability and security measures. The surrounding area is described as deprived in parts, which may affect resale perceptions.
Measurements and some listed room dimensions are provided for guidance only; an internal inspection is recommended to confirm layout and sizes. The house is well suited to large families seeking space and contemporary living, and also offers potential for those wanting a ready-to-live-in home with room to adapt.
5 bedroom detached house for sale in Whistler Close, Hastings, TN34 — £625,000 • 5 bed • 3 bath • 2239 ft²
4 bedroom detached house for sale in Shining Cliff, Hastings, TN34 — £600,000 • 4 bed • 3 bath • 1795 ft²
5 bedroom detached house for sale in Woodlands Way, Hastings, TN34 — £625,000 • 5 bed • 3 bath • 2359 ft²
5 bedroom detached house for sale in Playden Gardens, Hastings, TN34 — £550,000 • 5 bed • 2 bath • 1056 ft²
5 bedroom detached house for sale in Ore Place, Hastings, TN34 — £750,000 • 5 bed • 4 bath • 1767 ft²
4 bedroom detached house for sale in Ewhurst Close, Hastings, TN34 — £575,000 • 4 bed • 1 bath • 1518 ft²














































































































































































































































