BN1 6GB - 3 bedroom terraced house for sale in Chester Terrace, BN1

View on Property Piper

3 bedroom terraced house for sale in Chester Terrace, BN1

Summary - 30, CHESTER TERRACE, BRIGHTON BN1 6GB

3 bed 1 bath Terraced

**Standout Features:**
- Spacious Victorian terraced house in a prime location near Preston Park.
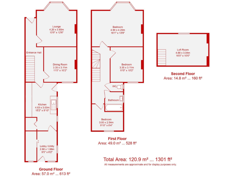
- Three well-sized bedrooms, plus a loft room with potential for conversion into a fourth bedroom (subject to necessary consents).
- Original period features including high ceilings and bay windows.
- Attractive walled rear garden with mature shrubs, greenhouse, and timber garden shed.
- Chain-free sale, offering quick occupancy.

**Concerns:**
- In need of complete modernization and refurbishment.
- Requires internal upgrades and possible structural improvements.

This charming bay-fronted Victorian family house presents a rare opportunity for buyers ready to create their dream home in one of Brighton's most desirable neighborhoods. With a generous layout that includes three bedrooms and a versatile loft room, this property offers significant potential for customization and expansion. The inviting front garden and a well-established rear garden expand your living space outdoors.

Nestled within a tree-lined street, you'll enjoy a peaceful environment while remaining close to excellent schools, shopping, and the expansive green space of Preston Park—ideal for families and outdoor enthusiasts alike. The property is being offered chain-free and awaits a savvy buyer who can see the transformation potential, ensuring this house becomes a cherished family home. Don’t miss out on this exclusive chance to invest in a sought-after area where the possibilities for renovation are endless!

Property Details

Brochure Descriptions

Image Descriptions

Floorplan Description

Rooms

Textual Property Features

Detected Visual Features

Nearby Schools

Nearest Bars And Restaurants

,,,,}

Nearest General Shops

,,}

Nearest Grocery shops

,,}

Nearest Supermarkets

,,}

Nearest Religious buildings

,,}

Nearest Medical buildings

,,,}

Nearest Leisure Facilities

,,,,}

Nearest Tourist attractions

,,}

Nearest Train stations

,,,,}

Nearest Bus stations and stops

,,,,}

Nearest Hotels

,,}

Tags

Local Market Stats

AirBnB Data

Similar Properties

Meta

High Res Images

Compatible Images

Low res Images

Thumbnails

Raw Images

High Res Floorplan Images

Compatible Floorplan Images

Low res Floorplan Images

FloorplanImages Thumbnail

Raw Floorplan Images