Bright first-floor home with long lease near top-rated schools and shops.
169-year lease, long-term security
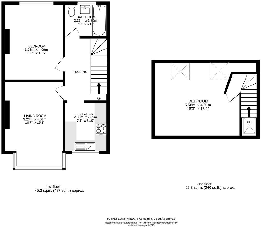
This first-floor, split-level period conversion offers two large double bedrooms and high ceilings across 728 sq ft — a comfortable family-sized layout with bright, airy rooms. The long lease (169 years) and below-average service charge make it a practical purchase for buyers seeking low running costs and long-term security.
Positioned close to Belmont Village and within excellent primary and secondary school catchments, the property suits commuters with young families who value convenience. Transport links, fast broadband and excellent mobile signal support home working and everyday connectivity.
Internally the kitchen and bathroom are described as modern and the home benefits from double glazing and mains gas heating. A modest property footprint and limited outdoor space keep maintenance low, but the building’s exterior character notes suggest some external parts may benefit from updating or cosmetic work. Buyers should note the local area is classified as deprived and crime levels are average.
Overall this is a practical, well-located period maisonette for families or first-time buyers seeking space, schools nearby and long lease security, with potential to personalise where needed.
2 bedroom maisonette for sale in Ennerdale Close, Cheam, Sutton, SM1 — £325,000 • 2 bed • 1 bath • 714 ft²
1 bedroom maisonette for sale in Landseer Road, Sutton, SM1 — £600,000 • 1 bed • 1 bath • 726 ft²
2 bedroom maisonette for sale in Langley Park Road, Sutton, SM2 — £340,000 • 2 bed • 1 bath • 777 ft²
2 bedroom maisonette for sale in Burgess Road, Sutton, Surrey, SM1 — £325,000 • 2 bed • 1 bath • 800 ft²
2 bedroom maisonette for sale in Eaton Road, Sutton, Surrey, SM2 — £350,000 • 2 bed • 1 bath • 807 ft²
2 bedroom maisonette for sale in William Road, Sutton, SM1 — £300,000 • 2 bed • 1 bath • 646 ft²


















































