**Standout Features:**
- Successful holiday let with excellent rental potential
- Breathtaking sea and harbor views
- High-end, contemporary finish with original features
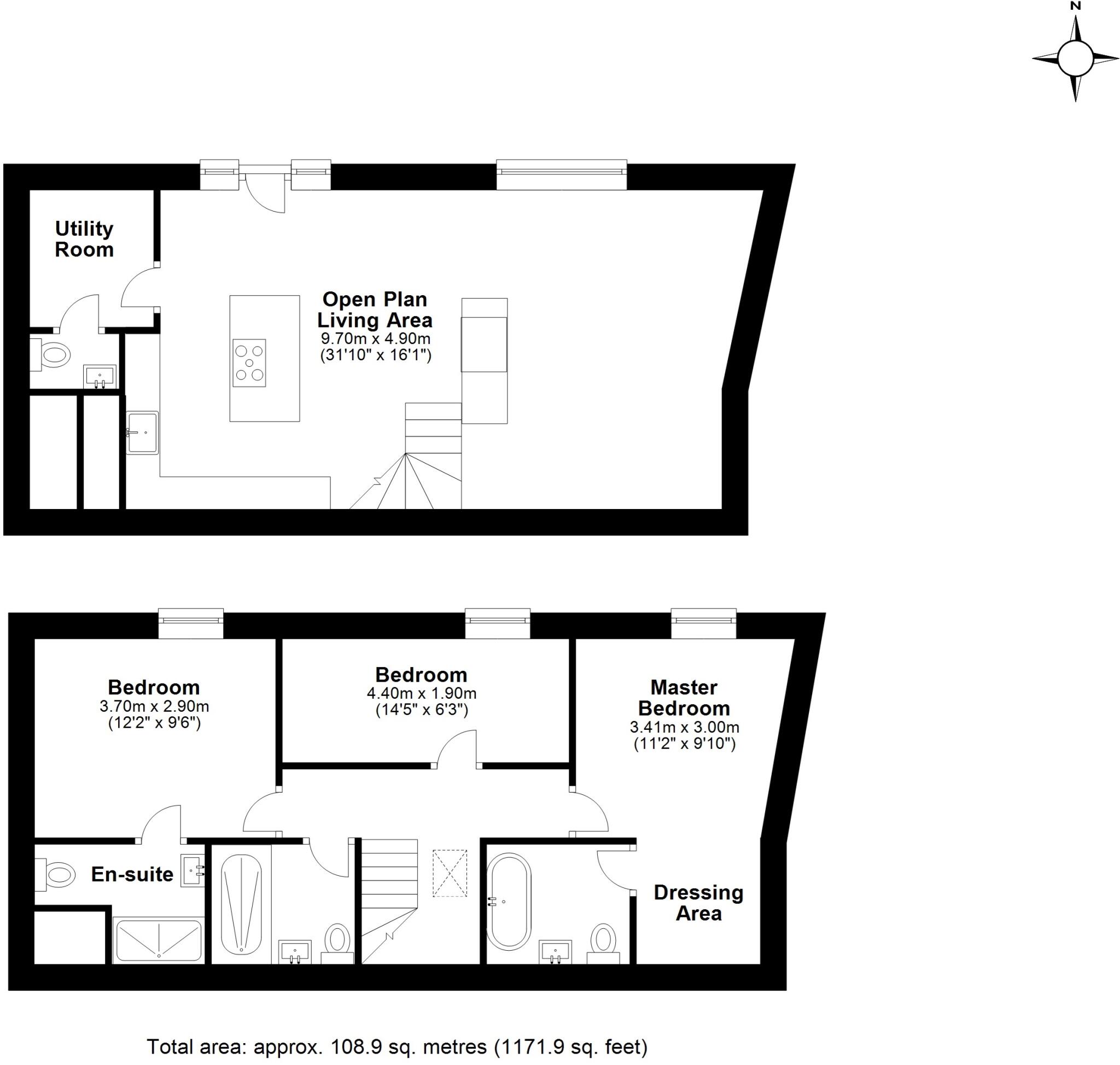
- Three spacious bedrooms, all with en-suite facilities
- Open plan kitchen, dining, and living area with integrated appliances
- Charming location in Craster near local attractions
**Concerns:**
- Small plot size
- Average broadband speeds may limit connectivity
Tom’s Hideout is a stunning semi-detached converted barn located in the picturesque fishing village of Craster, offering everything from breathtaking sea views to modern comforts. This successful holiday home features three well-proportioned bedrooms, each with its own en-suite, providing exceptional comfort for guests. The heart of the home boasts an expansive open-plan kitchen and living area, perfect for entertaining, showcasing high-end appliances and elegant finishes. Original features blend seamlessly with contemporary design, creating an inviting atmosphere.
Set in a charming village, you’ll enjoy easy access to local amenities, coastal attractions, and scenic paths leading to iconic landmarks, including Dunstanburgh Castle. With an estimated gross income of approximately £180,000 for 2025 based on past performance, this property is an enticing investment opportunity. Although the plot is small and broadband speeds are average, the potential for personal and financial growth is substantial. Don’t miss your chance to own this exquisite gem in Northumberland’s sought-after coastal community!
3 bedroom semi-detached house for sale in Maggies Den, Haven Hill, Craster, Northumberland, NE66 — £650,000 • 3 bed • 3 bath • 1441 ft²
4 bedroom house for sale in Whin Hill, Craster, Alnwick, Northumberland, NE66 — £750,000 • 4 bed • 3 bath • 1683 ft²
4 bedroom detached house for sale in Haven Hill, Craster, Alnwick, Northumberland, NE66 — £1,000,000 • 4 bed • 4 bath • 3440 ft²
3 bedroom semi-detached house for sale in Heugh Wynd, Craster, Alnwick, Northumberland, NE66 — £275,000 • 3 bed • 1 bath
4 bedroom detached house for sale in Whinstone House, Parkburn Court, Craster, Alnwick, Northumberland, NE66 — £499,950 • 4 bed • 2 bath • 1035 ft²
2 bedroom apartment for sale in Cragg End, 12 Crewe Street, Seahouses, Northumberland, NE68 — £355,000 • 2 bed • 2 bath • 812 ft²






























































































































